Ellis & Co says ..
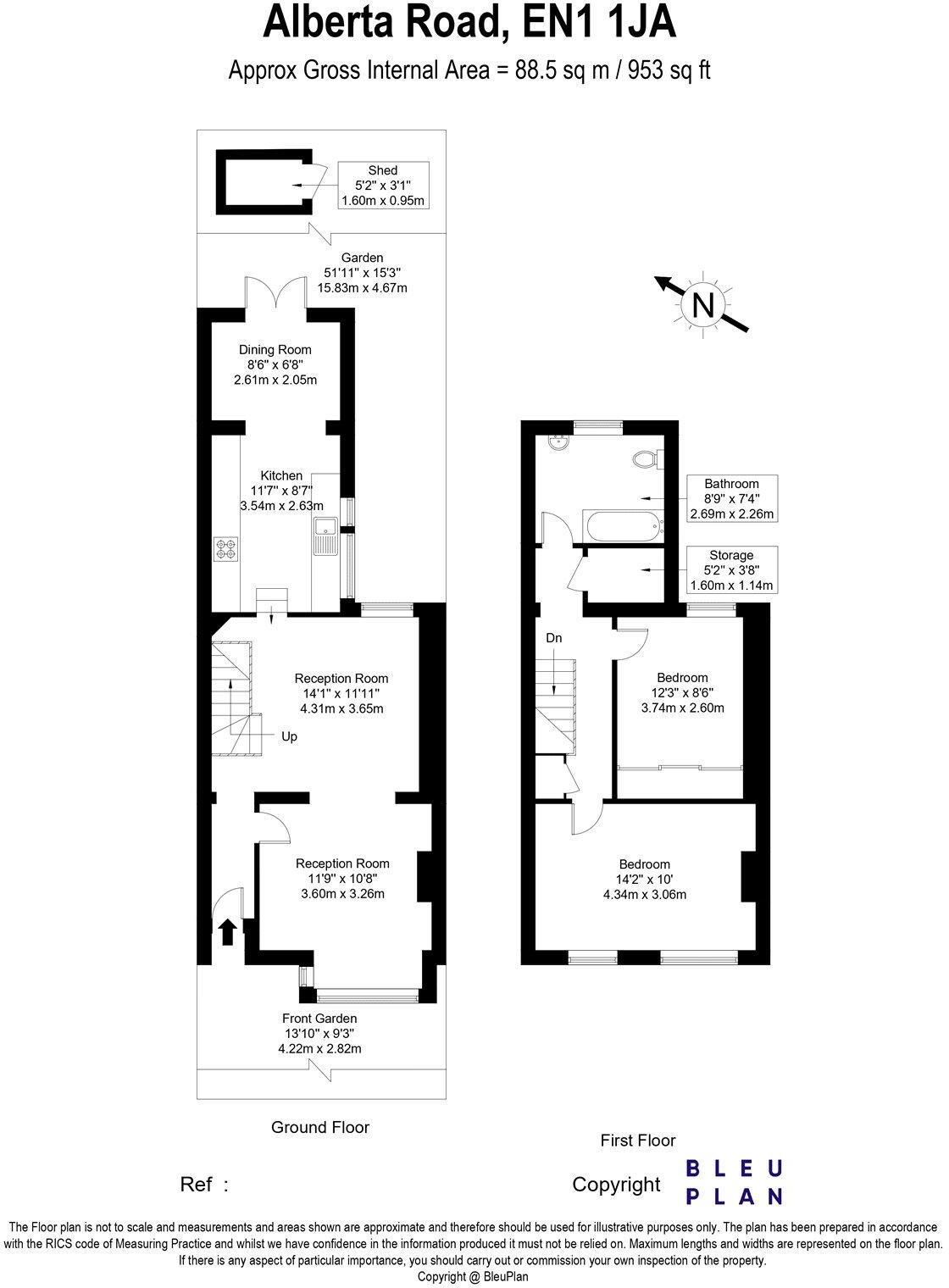
Offered For Sale on a Chain Free basis, Ellis & Co are delighted to present this immaculate two double bedroom, mid-terraced home, nestled in a quiet cul-de-sac within walking distance of Bush Hill Park Station. Beautifully improved by the current owners, this stunning property offers sp...
Property Oracle says ..
Therefore, we give this property 8 / 10. *Disclaimer: This is our option and does constitute a recommendation or financial advice. Do your own research. *
- Price
- 9
- Condition
- 8
- Location
- 8
- Land
- 7
- Bedrooms
- 2
- Bathrooms
- 1
- Sqft (est)
- 1,726.64
The heatmap indicates the level of crime in the area. The color of the heatmap indicates the crime severity and recency.
Metrics Year-on-Year
- Average area value
- 681,429.00 £Increased by 14.18 %
- Est sale value
- 1,167,208.64 £Increased by 59.81 %
- Average area rental value
- 1,986.00 £/moDecreased by 15.60 %
- Est letting value
- 1,726.64 £/moUnchanged by 0.00 %
- Est rental Yield
- 3.50 %Decreased by 26.00 %
- Crime Rate
- 2.00 %Unchanged by 0.00 %
from 596,801.00 £
from 730,368.72 £
from 2,353.00 £/mo
from 1,726.64 £/mo
from 4.73 %
from 2.00 %
Agent Activity
Ellis & Co created the listing.
Nearby Schools
| Name | Type | Ofsted | Distance |
|---|---|---|---|
| Bush Hill Park Primary School | Community School | Good | 0.37 KM |
| Bush Hill Park Children'S Centre | Children's Centre | 0.47 KM | |
| Galliard Children'S Centre | Children's Centre | 0.71 KM | |
| Galliard Primary School | Academy Converter | 0.71 KM | |
| Kingsmead School | Academy Converter | Good | 1.04 KM |
Images
Nearby Streets
| Name | Average Price | Average Sqft | Distance |
|---|---|---|---|
| Leighton Road | £ 335,000 | 0 | 0.00 KM |
| Great Cambridge Road | £ 550,000 | 0 | 0.00 KM |
| Woodgrange Terrace | £ 475,000 | 0 | 0.00 KM |
| Lee Road | £ 0 | 0 | 0.00 KM |
| St Mark's Road | £ 370,000 | 0 | 0.00 KM |
Nearby Transport
| Name | NLC | TLC | Distance |
|---|---|---|---|
| Bush Hill Park | 6913 | BHK | 0.57 KM |
| Southbury | 6947 | SBU | 1.49 KM |
| Edmonton Green | 6941 | EDR | 1.93 KM |
| Enfield Town | 6959 | ENF | 2.02 KM |
| Silver Street | 6972 | SLV | 3.06 KM |
Nearby Listings
| Address | Price | Type | Score | Distance |
|---|---|---|---|---|
| Alberta Road, Enfield, EN1 | £ 499,950 | BUY | 8 / 10 | 0.00 KM |
| Alberta Road, London, EN1 | £ 235,000 | BUY | Unknown | 0.05 KM |
| Hazelwood Road, Enfield | £ 625,000 | BUY | 7 / 10 | 0.09 KM |
| Leighton Road, Enfield | £ 510,000 | BUY | Unknown | 0.09 KM |
| Hazelwood Road, Enfield, EN1 | £ 565,000 | BUY | 7 / 10 | 0.10 KM |
Nearby Properties
| Address | Price | Distance |
|---|---|---|
| 47 Alberta Road | £ 350,000 | 0.01 KM |
| 71 Alberta Road | £ 362,000 | 0.01 KM |
| 93a Alberta Road | £ 225,000 | 0.01 KM |
| 45 Alberta Road | £ 338,000 | 0.01 KM |
| 27 Alberta Road | £ 110,000 | 0.01 KM |