Lichfield Road, Bow, E3
By Huttons & Partners
£ 1,100,000
Reviews
3 out of 5 stars
Huttons & Partners says ..
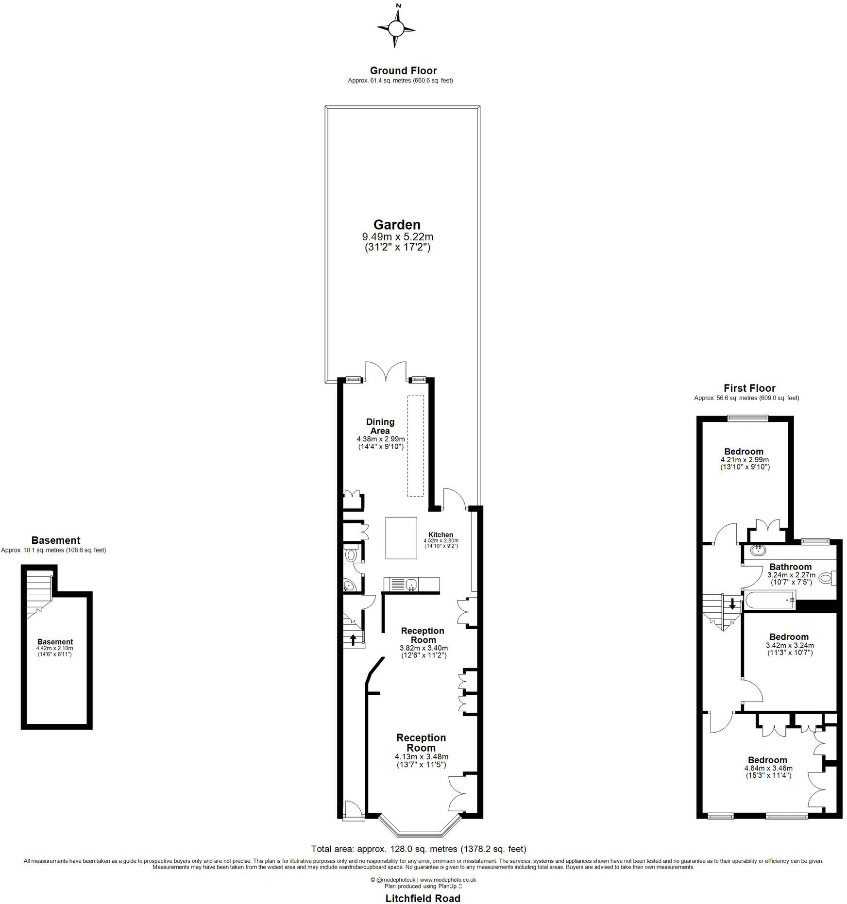
Positioned in the heart of the Tredegar Square Conservation Area, this 1378 sqft Victorian home offers three bedrooms, generous living space and a private garden — combining classic period character with comfortable family living. The property has been well maintained with thoughtful updates to t...
Property Oracle says ..
This is a terraced house located in Bow, London. The property offers three bedrooms and two bathrooms, with a total square footage of 1,377.78 sqft. While the property benefits from a garden, it requires some modernisation and landscaping. The location is convenient, with several schools and transport links nearby. The asking price of £1,100,000 appears reasonable when compared to similar properties in the area, taking into account the condition and potential for improvement.
Therefore, we give this property 6 / 10. *Disclaimer: This is our option and does constitute a recommendation or financial advice. Do your own research. *
- Price
- 7
- Condition
- 5
- Location
- 7
- Land
- 6
- Bedrooms
- 3
- Bathrooms
- 2
- Sqft (est)
- 1,377.78
The heatmap indicates the level of crime in the area. The color of the heatmap indicates the crime severity and recency.
Metrics Year-on-Year
- Average area value
- 1,191,667.00 £Increased by 41.72 %
- Est sale value
- 1,153,201.86 £Decreased by 13.08 %
- Average area rental value
- 2,142.00 £/moDecreased by 20.75 %
- Est letting value
- 1,377.78 £/moDecreased by 66.67 %
- Est rental Yield
- 2.16 %Decreased by 44.04 %
- Crime Rate
- 3.00 %Unchanged by 0.00 %
Agent Activity
Huttons & Partners created the listing.
Nearby Schools
| Name | Type | Ofsted | Distance |
|---|---|---|---|
| Malmesbury Primary School | Community School | Good | 0.30 KM |
| Central Foundation Girls' School | Voluntary Aided School | Good | 0.42 KM |
| Old Ford Primary - A Paradigm Academy | Academy Converter | 0.51 KM | |
| Olga Children'S Centre | Children's Centre Linked Site | 0.51 KM | |
| Olga Primary School | Community School | Good | 0.51 KM |
Images
Nearby Streets
| Name | Average Price | Average Sqft | Distance |
|---|---|---|---|
| Malmesbury Road | £ 475,000 | 0 | 0.00 KM |
| Balmer Road | £ 0 | 0 | 0.00 KM |
| Rhondda Grove | £ 0 | 0 | 0.00 KM |
| Coborn Mews | £ 0 | 0 | 0.00 KM |
| Dane Place | £ 0 | 0 | 0.00 KM |
Nearby Transport
| Name | NLC | TLC | Distance |
|---|---|---|---|
| Hackney Wick | 6978 | HKW | 1.82 KM |
| Limehouse | 7491 | LHS | 2.00 KM |
| Homerton | 6979 | HMN | 2.33 KM |
| Cambridge Heath | 6962 | CBH | 2.81 KM |
| Bethnal Green Rail | 6961 | BET | 3.08 KM |
Nearby Listings
| Address | Price | Type | Score | Distance |
|---|---|---|---|---|
| Lichfield Road, Bow, E3 | £ 1,100,000 | BUY | 6 / 10 | 0.00 KM |
| Coborn Road, Bow, London, E3 | £ 750,000 | BUY | Unknown | 0.05 KM |
| Tredegar Terrace, Bow | £ 1,250,000 | BUY | 7 / 10 | 0.06 KM |
| Coborn Road, Mile End, E3 | £ 475,000 | BUY | 6 / 10 | 0.06 KM |
| Montague Mews, London, E3 | £ 850,000 | BUY | 6 / 10 | 0.07 KM |
Nearby Properties
| Address | Price | Distance |
|---|---|---|
| 70 Lichfield Road | £ 850,000 | 0.06 KM |
| 51 Lichfield Road | £ 1,236,000 | 0.06 KM |
| 62 Lichfield Road | £ 915,000 | 0.06 KM |
| 75 Lichfield Road | £ 499,000 | 0.06 KM |
| 77 Lichfield Road | £ 375,000 | 0.06 KM |