Chequers Walk, Waltham Abbey, Essex
By Keller Williams
£ 400,000
Reviews
3 out of 5 stars
Keller Williams says ..
Daniel Thomas powered by KW present this three bedroom Family Home with Exceptional Features. This well-presented house offers everything you need for modern living, coupled with potential for future expansion.
Property Oracle says ..
This three-bedroom terraced house in Waltham Abbey, Essex, presents a potentially appealing option for families. The property’s proximity to well-regarded primary and secondary schools is a significant advantage. The images reveal a recently updated kitchen and bathroom, suggesting a comfortable and relatively modern interior. The garden, though compact, appears well-maintained and provides some outdoor space. However, further details are needed to assess its full potential. The property’s location near train stations offers good transport links, making commuting easier. The overall condition is good but could benefit from further enhancement to maximize its value. The price is a key consideration; while the provided information suggests it might be on the higher side compared to some nearby listings, the lack of sufficient comparative data hinders a conclusive assessment. A detailed survey and a thorough understanding of local market trends are necessary to determine the true market value.
Therefore, we give this property 6 / 10. *Disclaimer: This is our option and does constitute a recommendation or financial advice. Do your own research. *
- Price
- 6
- Condition
- 7
- Location
- 7
- Land
- 4
- Bedrooms
- 3
- Bathrooms
- 1
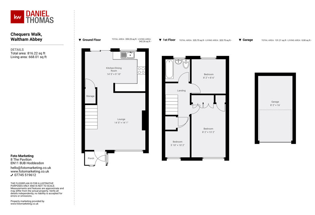
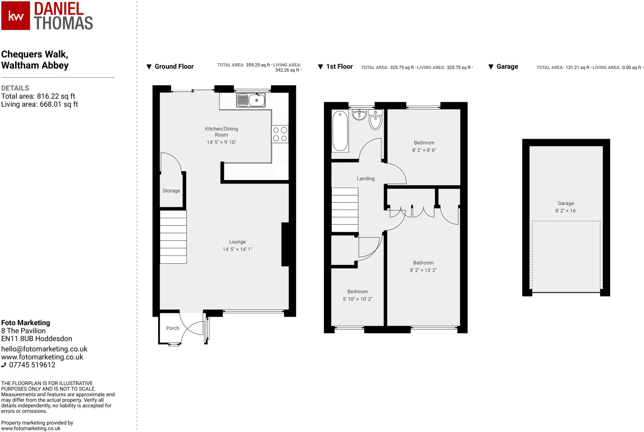
- Sqft (est)
- 816.22
The heatmap indicates the level of crime in the area. The color of the heatmap indicates the crime severity and recency.
Metrics Year-on-Year
- Average area value
- 416,740.00 £Increased by 13.45 %
- Est sale value
- 383,623.40 £Increased by 37.03 %
- Average area rental value
- 1,435.00 £/moDecreased by 27.89 %
- Est letting value
- 816.22 £/moUnchanged by 0.00 %
- Est rental Yield
- 4.13 %Decreased by 36.46 %
- Crime Rate
- 21.00 %Unchanged by 0.00 %
Agent Activity
Keller Williams created the listing.
Nearby Schools
| Name | Type | Ofsted | Distance |
|---|---|---|---|
| Leverton Primary School | Foundation School | Good | 0.41 KM |
| King Harold Business & Enterprise Academy | Academy Converter | Good | 0.42 KM |
| Epp1 Hazelwood Family Hub Delivery Site | Children's Centre Linked Site | 0.53 KM | |
| Hillhouse Cofe Primary School | Academy Converter | 0.65 KM | |
| Waltham Holy Cross Primary Academy | Academy Sponsor Led | 1.29 KM |
Images
Nearby Streets
| Name | Average Price | Average Sqft | Distance |
|---|---|---|---|
| Newhall Court | £ 231,399 | 0 | 0.00 KM |
| Brookside | £ 0 | 0 | 0.00 KM |
| Drayson Close | £ 475,000 | 0 | 0.00 KM |
| Hawk Close | £ 0 | 0 | 0.00 KM |
| Elm Close | £ 525,000 | 0 | 0.00 KM |
Nearby Transport
| Name | NLC | TLC | Distance |
|---|---|---|---|
| Waltham Cross | 6823 | WLC | 4.81 KM |
| Cheshunt | 6814 | CHN | 4.88 KM |
| Enfield Lock | 6815 | ENL | 5.30 KM |
| Theobalds Grove | 6949 | TEO | 5.76 KM |
| Chingford | 6914 | CHI | 5.96 KM |
Nearby Listings
| Address | Price | Type | Score | Distance |
|---|---|---|---|---|
| Chequers Walk, Waltham Abbey, Essex | £ 400,000 | BUY | 6 / 10 | 0.00 KM |
| Chequers Walk, Waltham Abbey, EN9 | £ 425,000 | BUY | 7 / 10 | 0.01 KM |
| Chequers Walk, Waltham Abbey, Essex | £ 400,000 | BUY | Unknown | 0.03 KM |
| Chequers Walk, Waltham Abbey, Essex | £ 264,500 | BUY | Unknown | 0.03 KM |
| Chequers Walk, Waltham Abbey | £ 399,950 | BUY | 7 / 10 | 0.03 KM |
Nearby Properties
| Address | Price | Distance |
|---|---|---|
| 9 Chequers Walk | £ 300,000 | 0.03 KM |
| 41 Chequers Walk | £ 222,500 | 0.03 KM |
| 6 Chequers Walk | £ 347,000 | 0.03 KM |
| 39 Chequers Walk | £ 179,000 | 0.03 KM |
| 14 Chequers Walk | £ 300,000 | 0.03 KM |