Newsome Homes says ..
NO ONWARD CHAIN | IDEAL FIRST TIME PROPERTY | CUL-DE-SAC. This three-bedroom semi-detached house is situated within a cul-de-sac and is being offered to the market with NO ONWARD CHAIN.
Property Oracle says ..
This property is a 3-bedroom semi-detached house located in Greenfield, Flintshire. The house is situated on Rhodfa Wenlo and benefits from a garden. Based on the images, the property appears to be in reasonable condition, although some modernisation may be desirable. The asking price of £160,000 is slightly below the average price for the area, which is £223,121. However, the average price per square foot in the area is £228, and this property is smaller than average. Considering its location, condition, and size, the price seems reasonable.
Therefore, we give this property 6 / 10. *Disclaimer: This is our option and does constitute a recommendation or financial advice. Do your own research. *
- Price
- 7
- Condition
- 6
- Location
- 7
- Land
- 7
- Bedrooms
- 3
- Bathrooms
- 1
- Sqft (est)
- 848.12
- Lot (est)
- 1,024.63
The heatmap indicates the level of crime in the area. The color of the heatmap indicates the crime severity and recency.
Metrics Year-on-Year
- Average area value
- 243,333.00 £Increased by 2.42 %
- Est sale value
- 212,878.12 £Decreased by 0.40 %
- Average area rental value
- 825.00 £/moDecreased by 8.13 %
- Est letting value
- 0.00 £/mo
- Est rental Yield
- 4.07 %Decreased by 10.35 %
- Crime Rate
- 11.00 %Unchanged by 0.00 %
Agent Activity
Newsome Homes created the listing.
Nearby Schools
| Name | Type | Ofsted | Distance |
|---|---|---|---|
| Greenfield C.P. School | Welsh Establishment | 0.75 KM | |
| Ysgol Treffynnon | Welsh Establishment | 0.84 KM | |
| St Winefrides R.C. School | Welsh Establishment | 1.24 KM | |
| Ysgol Gwenffrwd | Welsh Establishment | 1.26 KM | |
| Brynford C.P. School | Welsh Establishment | 2.72 KM |
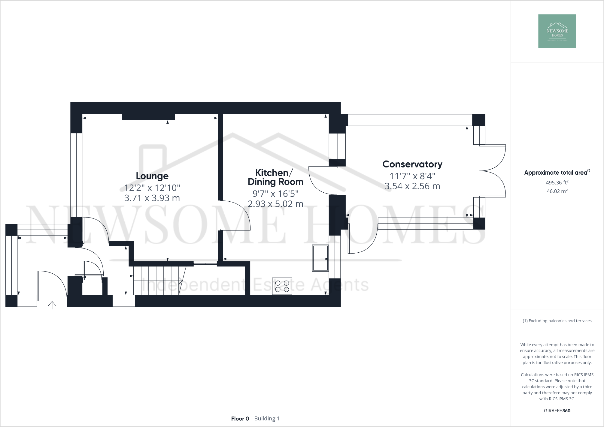
Images
Nearby Streets
| Name | Average Price | Average Sqft | Distance |
|---|---|---|---|
| Bryn Celyn | £ 0 | 0 | 0.00 KM |
| Greenfield Road | £ 95,000 | 0 | 0.00 KM |
| Queen's Road | £ 130,000 | 0 | 0.00 KM |
| Tan-y-Bryn | £ 0 | 0 | 0.00 KM |
| The Close | £ 149,950 | 0 | 0.00 KM |
Nearby Listings
| Address | Price | Type | Score | Distance |
|---|---|---|---|---|
| Rhodfa Wenlo, Greenfield | £ 160,000 | BUY | 6 / 10 | 0.00 KM |
| Tan Y Felin, Greenfield | £ 210,000 | BUY | 6 / 10 | 0.07 KM |
| Ffordd Dwyfor, Greenfield | £ 299,950 | BUY | Unknown | 0.09 KM |
| Tan Y Felin, Greenfield | £ 210,000 | BUY | Unknown | 0.12 KM |
| Cae Y Dderwen, Greenfield, Holywell | £ 250,000 | BUY | 7 / 10 | 0.22 KM |
Nearby Properties
| Address | Price | Distance |
|---|---|---|
| 7 Rhodfa Wenlo | £ 155,000 | 0.00 KM |
| 2 Rhodfa Wenlo | £ 69,950 | 0.00 KM |
| 16 Rhodfa Wenlo | £ 72,000 | 0.00 KM |
| 17 Rhodfa Wenlo | £ 110,000 | 0.00 KM |
| 14 Rhodfa Wenlo | £ 92,000 | 0.00 KM |