55, Pauline Street,, Ipswich,, IP2 8DL
By Under The Hammer
£ 29,000
Reviews
3 out of 5 stars
Under The Hammer says ..
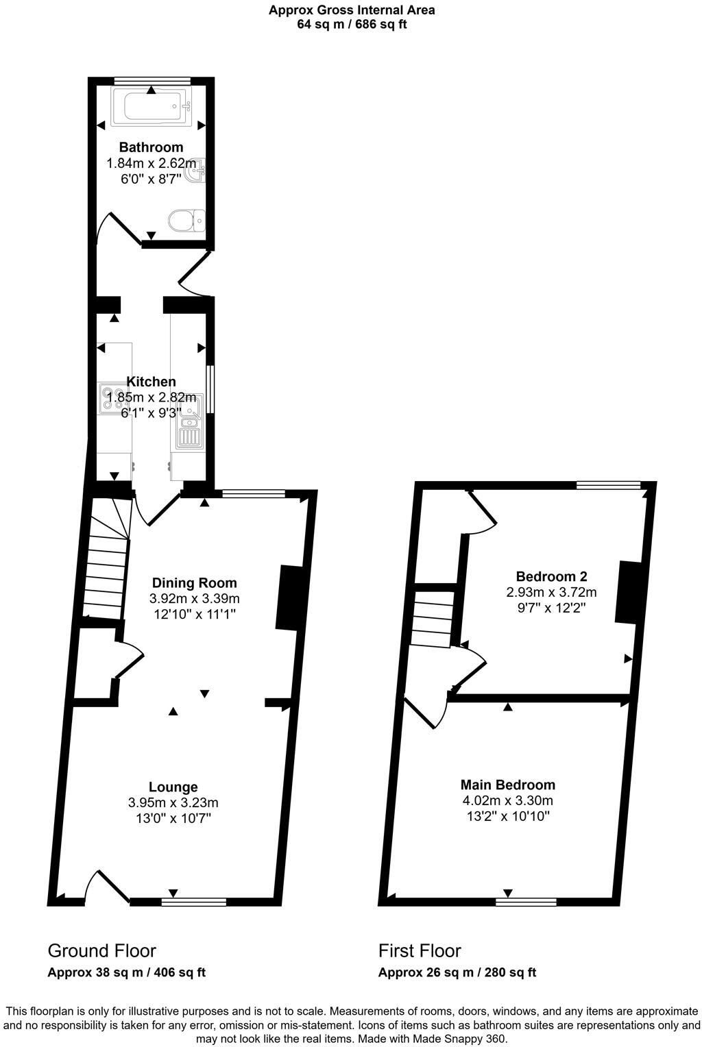
For sale by Under the Hammer online auction on Thursday 18th December 2025.A vacant freehold two bedroom property located in Ipswich.The property has a lounge, dining room, kitchen, two bedrooms and a bathroom.Externally the property benefits driveway and to the rear a turfe
Property Oracle says ..
This end-of-terrace property at 55 Pauline Street, Ipswich, presents a unique opportunity for buyers. While the property requires renovation, its attractive list price of £29,000 makes it a potentially lucrative investment. The property is located in a convenient area, close to transportation and local amenities. The house has two bedrooms and one bathroom, with a total square footage of 648.64 SQFT. The property also benefits from a garden, although it needs some attention. The condition of the property suggests that it needs a full renovation. Despite the condition, the low price point makes this property an attractive option for investors or first-time buyers willing to undertake a renovation project.
Therefore, we give this property 6 / 10. *Disclaimer: This is our option and does constitute a recommendation or financial advice. Do your own research. *
- Price
- 9
- Condition
- 4
- Location
- 6
- Land
- 6
- Bedrooms
- 2
- Bathrooms
- 1
- Sqft (est)
- 648.64
The heatmap indicates the level of crime in the area. The color of the heatmap indicates the crime severity and recency.
Metrics Year-on-Year
- Average area value
- 320,968.00 £Decreased by 12.07 %
- Est sale value
- 228,969.92 £Decreased by 10.63 %
- Average area rental value
- 1,437.00 £/moDecreased by 3.56 %
- Est letting value
- 648.64 £/moUnchanged by 0.00 %
- Est rental Yield
- 5.37 %Increased by 9.59 %
- Crime Rate
- 11.00 %Unchanged by 0.00 %
Agent Activity
Under The Hammer created the listing.
Nearby Schools
| Name | Type | Ofsted | Distance |
|---|---|---|---|
| Hillside Primary School | Academy Sponsor Led | Requires improvement | 0.50 KM |
| Hillside Children'S Centre | Children's Centre | 0.67 KM | |
| Stoke High School - Ormiston Academy | Academy Sponsor Led | Requires improvement | 0.75 KM |
| University Of Suffolk | Higher Education Institutions | Requires improvement | 1.17 KM |
| Learning Support, Southern Area Education Office | Miscellaneous | 1.37 KM |
Images
Nearby Streets
| Name | Average Price | Average Sqft | Distance |
|---|---|---|---|
| Vernon Street | £ 0 | 0 | 0.00 KM |
| Roanoke Walk | £ 0 | 0 | 0.00 KM |
| Bridge Street | £ 0 | 0 | 0.00 KM |
| Quadling Street | £ 222,000 | 0 | 0.00 KM |
| St. Peters Street | £ 0 | 0 | 0.00 KM |
Nearby Transport
| Name | NLC | TLC | Distance |
|---|---|---|---|
| Ipswich | 7217 | IPS | 1.13 KM |
| Derby Road (Ipswich) | 7212 | DBR | 3.17 KM |
| Westerfield | 7226 | WFI | 3.95 KM |
Nearby Listings
| Address | Price | Type | Score | Distance |
|---|---|---|---|---|
| 55, Pauline Street,, Ipswich,, IP2 8DL | £ 29,000 | BUY | 6 / 10 | 0.00 KM |
| Pauline Street, Ipswich | £ 150,000 | BUY | 7 / 10 | 0.02 KM |
| Pauline Street, Ipswich, Suffolk, IP2 | £ 160,000 | BUY | 5 / 10 | 0.02 KM |
| Hartley Street, Ipswich, Suffolk, IP2 | £ 155,000 | BUY | 5 / 10 | 0.07 KM |
| Croft Street, Ipswich, Suffolk, IP2 | £ 110,000 | BUY | 5 / 10 | 0.07 KM |
Nearby Properties
| Address | Price | Distance |
|---|---|---|
| 49 Pauline Street | £ 114,000 | 0.02 KM |
| 35 Pauline Street | £ 100,000 | 0.02 KM |
| 42 Pauline Street | £ 155,000 | 0.02 KM |
| 40 Pauline Street | £ 74,995 | 0.02 KM |
| 60 Pauline Street | £ 104,000 | 0.02 KM |