7 Birnam Grove, Heywood, OL10 3RX
By McHugh & Co
£ 70,000
Reviews
2 out of 5 stars
McHugh & Co says ..
LOT 112 **FOR SALE BY ONLINE AUCTION** on 11th February 2025 Six Week Completion or Earlier Freehold House Vacant Possession
Property Oracle says ..
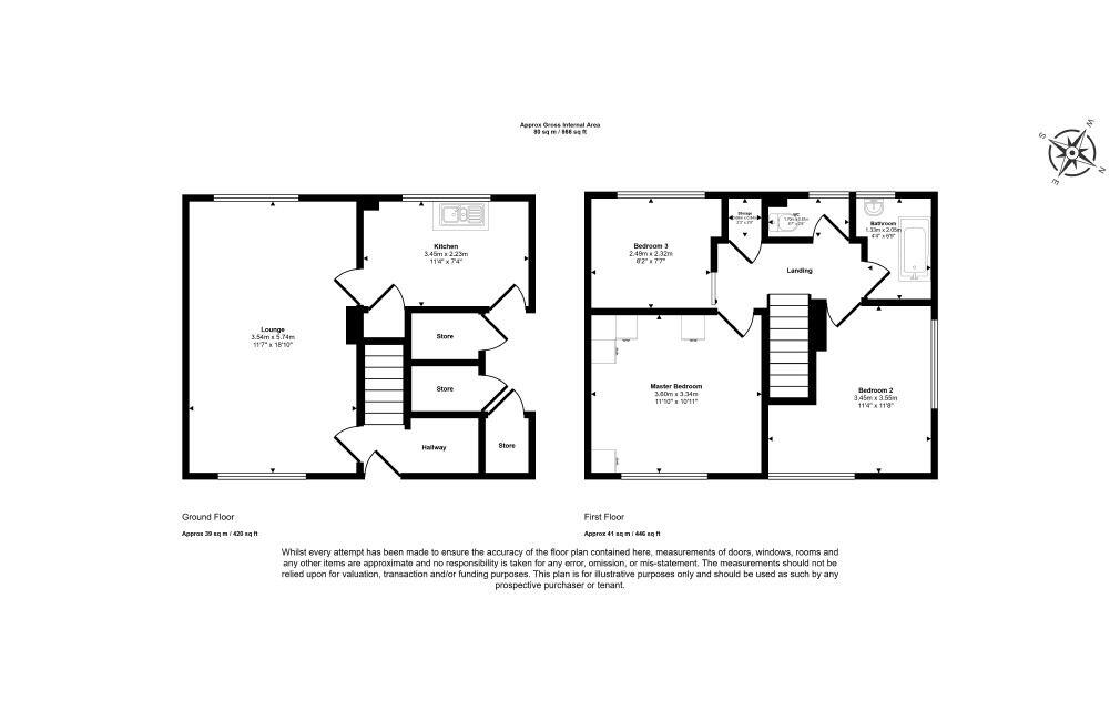
7 Birnam Grove is a three-bedroom terraced house located in Heywood, Greater Manchester. The property is currently listed at £70,000. Based on the images, the property is in significant need of renovation. The interior features outdated carpets, wallpaper, and fixtures, and there is evidence suggesting potential damp issues. The kitchen and bathroom appear particularly dated and require complete refurbishment. While the exterior appears structurally sound, a substantial amount of work would be needed before the property becomes habitable to modern standards. The property does, however, possess a small garden space. The location is relatively convenient, with local primary schools rated ‘Good’ by Ofsted and train stations within a reasonable distance. Determining the property’s overall value is difficult due to the lack of specified square footage and plot size; however, the list price may be considered appropriate given its condition and the relatively lower prices in the immediate area. The property presents a significant project for any potential buyer, but the comparatively low purchase price may offset the cost of the necessary renovations for buyers seeking a fixer-upper in a reasonably located area.
Therefore, we give this property 5 / 10. *Disclaimer: This is our option and does constitute a recommendation or financial advice. Do your own research. *
- Price
- 7
- Condition
- 3
- Location
- 6
- Land
- 4
- Bedrooms
- 3
- Bathrooms
- 0
The heatmap indicates the level of crime in the area. The color of the heatmap indicates the crime severity and recency.
Metrics Year-on-Year
- Average area value
- 511,000.00 £Increased by 12.42 %
- Average area rental value
- 1,413.00 £/moDecreased by 25.47 %
- Est rental Yield
- 3.32 %Decreased by 33.73 %
- Crime Rate
- 0.00 %
Agent Activity
McHugh & Co created the listing.
Nearby Schools
| Name | Type | Ofsted | Distance |
|---|---|---|---|
| St Margaret'S Church Of England Primary School | Voluntary Aided School | Good | 0.16 KM |
| Woodland Community Primary School | Community School | Good | 0.64 KM |
| Woodland Children'S Centre | Children's Centre | 0.80 KM | |
| Derby Street Children'S Centre | Children's Centre | 1.01 KM | |
| Our Lady & St Paul'S Rc Primary School, A Voluntary Academy | Academy Sponsor Led | 1.38 KM |
Images
Nearby Streets
| Name | Average Price | Average Sqft | Distance |
|---|---|---|---|
| Balmoral Drive | £ 143,500 | 0 | 0.00 KM |
| Dunoon Close | £ 0 | 0 | 0.00 KM |
| Devonshire Close | £ 0 | 0 | 0.00 KM |
| Kent Walk | £ 0 | 0 | 0.00 KM |
| Todd Street | £ 0 | 0 | 0.00 KM |
Nearby Transport
| Name | NLC | TLC | Distance |
|---|---|---|---|
| Castleton (Manchester) | 2919 | CAS | 6.71 KM |
| Mills Hill (Manchester) | 2920 | MIH | 8.53 KM |
| Rochdale | 2924 | RCD | 9.74 KM |
Nearby Listings
| Address | Price | Type | Score | Distance |
|---|---|---|---|---|
| Durness Place, Heywood | £ 280,000 | BUY | 6 / 10 | 0.21 KM |
| Balmoral Drive, Heywood, Greater Manchester, OL10 | £ 145,000 | BUY | 7 / 10 | 0.25 KM |
| Ogden Close, Heywood, Greater Manchester, OL10 | £ 235,000 | BUY | 7 / 10 | 0.29 KM |
| Heys Lane, Heywood, OL10 | £ 275,000 | BUY | 7 / 10 | 0.30 KM |
| Lochawe Close, Heywood, Greater Manchester, UK, OL10 3NP | £ 150,000 | BUY | Unknown | 0.33 KM |
Nearby Properties
| Address | Price | Distance |
|---|---|---|
| 6 Brechin Way | £ 65,000 | 0.12 KM |
| 4 Brechin Way | £ 57,500 | 0.12 KM |
| 12 Brechin Way | £ 137,000 | 0.12 KM |
| 11 Angus Avenue | £ 185,000 | 0.16 KM |
| 101a Argyle Street | £ 109,000 | 0.22 KM |