Julian Marks says ..
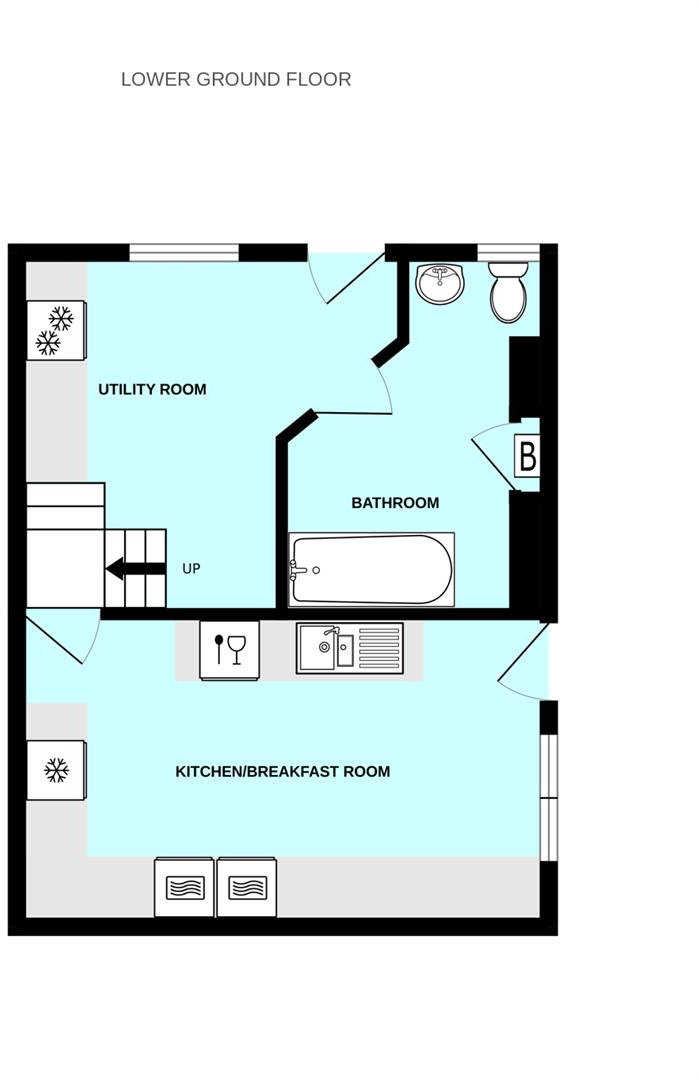
Well presented characterful home arranged over 3 storeys. Deceptively spacious. Generously proportioned accommodation. uPVC double-glazed & centrally heated. Good-sized lounge with fireplace & archway into the generous-sized dining room. Lower ground floor level, large modern fitted integrated ki...
Property Oracle says ..
This three-bedroom, two-bathroom house in Lower Compton, Plymouth, presents as a well-maintained family home. The interior photographs showcase a recently updated kitchen and bathrooms, suggesting that significant investment has been made in modernising the property. The interior rooms are presented well with period features such as high ceilings and wood flooring. The property benefits from a manageable garden with artificial turf and a small patio area. The lack of detailed information on plot size and the average price per square foot in the area hinders a complete valuation, however based on nearby properties and current market trends, the asking price appears competitive within the context of the Plymouth property market, considering the age and condition of the property. The close proximity to a ‘Good’ Ofsted rated primary school and reasonably convenient access to Plymouth city centre add to its appeal. Potential buyers should, however, consider the need for any future maintenance or upgrades to the exterior of the property. The photos suggest the property has been well looked after however additional details around structural and age related maintenance would give greater clarity and confidence for buyers.
Therefore, we give this property 6 / 10. *Disclaimer: This is our option and does constitute a recommendation or financial advice. Do your own research. *
- Price
- 7
- Condition
- 7
- Location
- 7
- Land
- 4
- Bedrooms
- 3
- Bathrooms
- 2
- Sqft (est)
- 930.75
The heatmap indicates the level of crime in the area. The color of the heatmap indicates the crime severity and recency.
Metrics Year-on-Year
- Average area value
- 332,250.00 £Increased by 4.68 %
- Est sale value
- 307,147.50 £Increased by 22.22 %
- Average area rental value
- 769.00 £/moIncreased by 6.81 %
- Est letting value
- 0.00 £/mo
- Est rental Yield
- 2.78 %Increased by 2.21 %
- Crime Rate
- 1.00 %Unchanged by 0.00 %
Agent Activity
Julian Marks created the listing.
Nearby Schools
| Name | Type | Ofsted | Distance |
|---|---|---|---|
| Compton Cofe Primary School | Voluntary Controlled School | Good | 0.44 KM |
| Sweet Peas Peverell Children'S Centre | Children's Centre | 0.48 KM | |
| Lipson Vale Primary School | Community School | Good | 1.04 KM |
| Lipson Co-Operative Academy | Academy Converter | Requires improvement | 1.04 KM |
| Eggbuckland Community College | Academy Converter | Requires improvement | 1.16 KM |
Images
Nearby Streets
| Name | Average Price | Average Sqft | Distance |
|---|---|---|---|
| Park Road | £ 350,000 | 0 | 0.00 KM |
| Compton Leigh | £ 0 | 0 | 0.00 KM |
| Courtfield Road | £ 0 | 0 | 0.00 KM |
| Elm Crescent | £ 0 | 0 | 0.00 KM |
| Harlech Close | £ 0 | 0 | 0.00 KM |
Nearby Transport
| Name | NLC | TLC | Distance |
|---|---|---|---|
| Plymouth | 3580 | PLY | 2.58 KM |
| Devonport | 3579 | DPT | 5.38 KM |
| Dockyard (Devonport) | 3588 | DOC | 5.87 KM |
| Keyham | 3571 | KEY | 6.22 KM |
| St Budeaux Ferry Road | 3590 | SBF | 7.14 KM |
Nearby Listings
| Address | Price | Type | Score | Distance |
|---|---|---|---|---|
| Lower Compton, Plymouth | £ 325,000 | BUY | 6 / 10 | 0.00 KM |
| Lower Compton, Plymouth | £ 340,000 | BUY | 7 / 10 | 0.01 KM |
| Park Road, Plymouth | £ 290,000 | BUY | 7 / 10 | 0.07 KM |
| Lower Compton, Plymouth | £ 240,000 | BUY | Unknown | 0.07 KM |
| Hartley Avenue, Plymouth, Devon, PL3 | £ 440,000 | BUY | 7 / 10 | 0.08 KM |
Nearby Properties
| Address | Price | Distance |
|---|---|---|
| 16 Priory Road | £ 140,000 | 0.06 KM |
| 22 Priory Road | £ 128,000 | 0.06 KM |
| 24 Priory Road | £ 120,000 | 0.06 KM |
| 35 Priory Road | £ 180,000 | 0.06 KM |
| 11 Priory Road | £ 162,000 | 0.06 KM |