Holme Grove, Burley In Wharfedale, Ilkley, West Yorkshire, LS29
By Dale Eddison
£ 385,000
Reviews
3 out of 5 stars
Dale Eddison says ..
* SEMI DETACHED DORMER BUNGALOW * THREE BEDROOMS * GARDENS GARAGE AND DRIVEWAY * SOUGHT AFTER LOCATION *
Property Oracle says ..
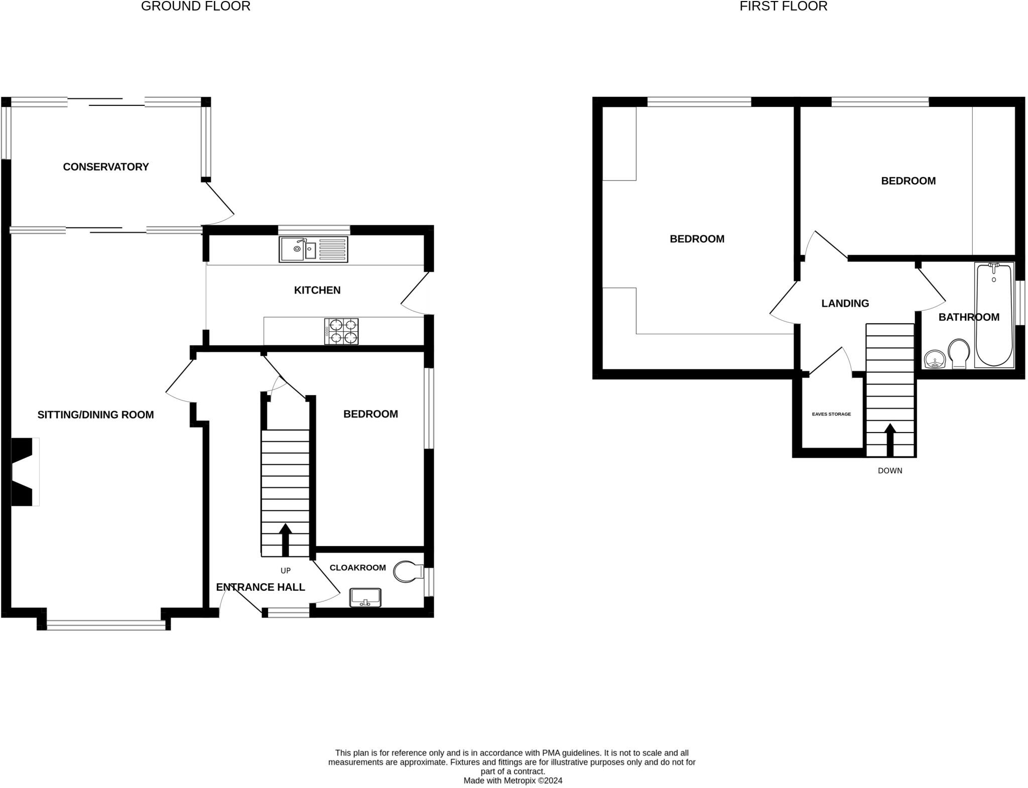
This three-bedroom semi-detached dormer bungalow in Burley in Wharfedale presents a comfortable family home. Located on Holme Grove, it benefits from the village’s attractive setting and convenient access to both highly-rated primary schools and the train station. The property offers a good layout, including a living room with a wood-burning stove, a kitchen with garden access, and three bedrooms. The garden is a definite plus, providing outdoor space for relaxation and family activities. While the kitchen could benefit from a modern update, the overall condition of the property appears good. The listing price appears competitive considering the location and similar properties sold recently in the area. However, a lack of detailed square footage information for comparable properties hampers a precise price-per-square-foot comparison, which would provide a more accurate assessment of value.
Therefore, we give this property 6 / 10. *Disclaimer: This is our option and does constitute a recommendation or financial advice. Do your own research. *
- Price
- 7
- Condition
- 6
- Location
- 7
- Land
- 5
- Bedrooms
- 3
- Bathrooms
- 1
- Sqft (est)
- 920.00
The heatmap indicates the level of crime in the area. The color of the heatmap indicates the crime severity and recency.
Metrics Year-on-Year
- Average area value
- 474,196.00 £Decreased by 8.85 %
- Est sale value
- 333,040.00 £Decreased by 11.71 %
- Average area rental value
- 1,571.00 £/moIncreased by 10.17 %
- Est letting value
- 920.00 £/moUnchanged by 0.00 %
- Est rental Yield
- 3.98 %Increased by 20.97 %
- Crime Rate
- 3.00 %Unchanged by 0.00 %
Agent Activity
Dale Eddison created the listing.
Nearby Schools
| Name | Type | Ofsted | Distance |
|---|---|---|---|
| Burley And Woodhead Cofe Primary School | Voluntary Controlled School | Good | 0.40 KM |
| Burley Oaks Primary School | Community School | Outstanding | 0.73 KM |
| Menston Primary School | Community School | Good | 1.76 KM |
| Ghyll Royd School And Pre-School | Other Independent School | 2.06 KM | |
| Askwith Community Primary School | Academy Converter | 3.02 KM |
Images
Nearby Streets
| Name | Average Price | Average Sqft | Distance |
|---|---|---|---|
| Holme Park | £ 450,000 | 0 | 0.00 KM |
| Millstone Close | £ 0 | 0 | 0.00 KM |
| Clarence Drive | £ 3,750,000 | 0 | 0.00 KM |
| Elm Grove | £ 349,950 | 0 | 0.00 KM |
| Foster Close | £ 399,950 | 0 | 0.00 KM |
Nearby Transport
| Name | NLC | TLC | Distance |
|---|---|---|---|
| Burley-In-Wharfedale | 8565 | BUW | 0.94 KM |
| Menston | 8574 | MNN | 1.76 KM |
| Guiseley | 8567 | GSY | 4.65 KM |
| Baildon | 8552 | BLD | 6.09 KM |
| Ben Rhydding | 8564 | BEY | 6.18 KM |
Nearby Listings
| Address | Price | Type | Score | Distance |
|---|---|---|---|---|
| Holme Grove, Burley-in-Wharfedale | £ 850,000 | BUY | 8 / 10 | 0.04 KM |
| Holme Grove, Burley In Wharfedale | £ 480,000 | BUY | 8 / 10 | 0.14 KM |
| Holme Grove, Burley In Wharfedale, Ilkley, West Yorkshire, LS29 | £ 625,000 | BUY | Unknown | 0.14 KM |
| Hawthorne Grove, Burley in Wharfedale | £ 365,000 | BUY | 7 / 10 | 0.16 KM |
| Sandholme Drive, Burley in Wharfedale | £ 510,000 | BUY | Unknown | 0.21 KM |
Nearby Properties
| Address | Price | Distance |
|---|---|---|
| 33 Holme Grove | £ 300,000 | 0.00 KM |
| 31 Holme Grove | £ 350,000 | 0.00 KM |
| 11 Holme Grove | £ 263,000 | 0.00 KM |
| 39 Holme Grove | £ 282,000 | 0.00 KM |
| 29 Holme Grove | £ 320,000 | 0.00 KM |