61 Rishworth Mill Lane, Rishworth HX6 4RZ
By V G Estate Agent
£ 260,000
Reviews
3 out of 5 stars
V G Estate Agent says ..
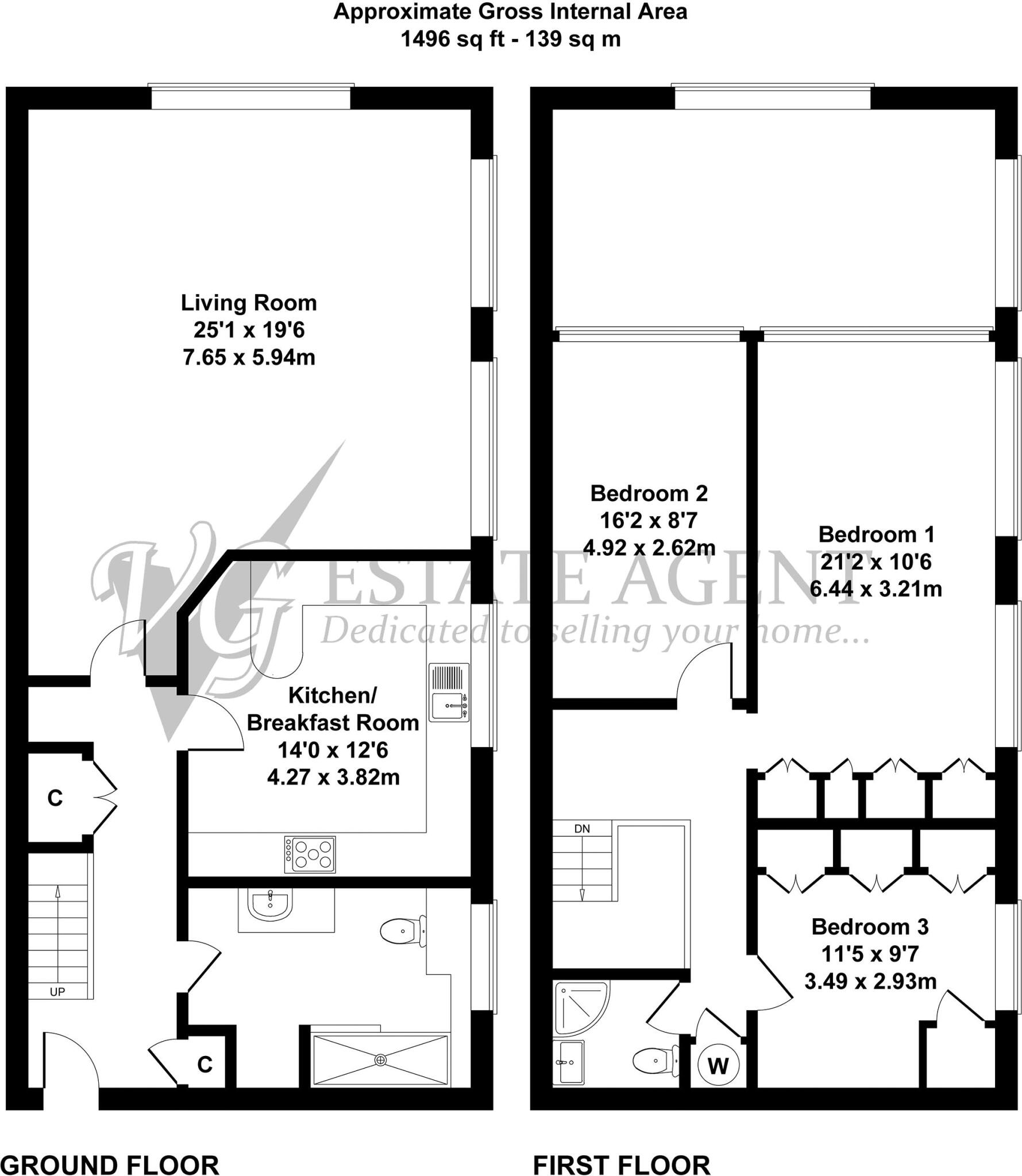
This beautifully presented second floor duplex apartment offers contemporary living with high quality fixtures and fittings throughout and is tucked away towards the rear of this popular converted mill enjoying far-reaching rural views. The immaculately presented accommodation includes a dual ...
Property Oracle says ..
This property is a 3 bedroom, 2 bathroom apartment situated in Rishworth, Calderdale. The apartment is part of a converted mill and benefits from modern fixtures and fittings throughout. The open-plan living space is bright and airy, with large windows offering views of the surrounding countryside. The kitchen is well-equipped and the bathrooms are modern. There is also a small private patio area. The property is conveniently located close to local amenities and transport links. The average price per sqft for similar properties in the area is £720, and this property is listed at £260,000. The property is in good condition and appears to be well-maintained.
Therefore, we give this property 6 / 10. *Disclaimer: This is our option and does constitute a recommendation or financial advice. Do your own research. *
- Price
- 7
- Condition
- 9
- Location
- 8
- Land
- 3
- Bedrooms
- 3
- Bathrooms
- 2
- Sqft (est)
- 1,496.00
The heatmap indicates the level of crime in the area. The color of the heatmap indicates the crime severity and recency.
Metrics Year-on-Year
- Average area value
- 482,500.00 £Decreased by 52.31 %
- Est sale value
- 1,226,720.00 £Increased by 5.53 %
- Average area rental value
- 2,188.00 £/moIncreased by 5.19 %
- Est letting value
- 4,488.00 £/moIncreased by 200.00 %
- Est rental Yield
- 5.44 %Increased by 120.24 %
- Crime Rate
- 7.00 %Unchanged by 0.00 %
Agent Activity
V G Estate Agent marked this listing as sold.
V G Estate Agent created the listing.
Nearby Schools
| Name | Type | Ofsted | Distance |
|---|---|---|---|
| St John'S Primary School In Rishworth | Academy Converter | Good | 0.66 KM |
| Rishworth School | Other Independent School | 0.70 KM | |
| Riverbank Primary School | Other Independent Special School | Good | 1.95 KM |
| Ripponden Junior And Infant School | Community School | Good | 2.32 KM |
| St Mary'S Cofe (Vc) J And I School | Voluntary Controlled School | Outstanding | 3.42 KM |
Images
Nearby Streets
| Name | Average Price | Average Sqft | Distance |
|---|---|---|---|
| St John's Close | £ 135,000 | 0 | 0.00 KM |
| Hall Green Lane | £ 0 | 0 | 0.00 KM |
| Cliffe Lane | £ 0 | 0 | 0.00 KM |
| Broad Street | £ 0 | 0 | 0.00 KM |
| Quakers Lane | £ 0 | 0 | 0.00 KM |
Nearby Transport
| Name | NLC | TLC | Distance |
|---|---|---|---|
| Marsden (Yorks) | 8445 | MSN | 6.34 KM |
| Sowerby Bridge | 8527 | SOW | 7.11 KM |
| Slaithwaite | 8450 | SWT | 8.16 KM |
| Mytholmroyd | 8526 | MYT | 8.78 KM |
Nearby Listings
| Address | Price | Type | Score | Distance |
|---|---|---|---|---|
| 61 Rishworth Mill Lane, Rishworth HX6 4RZ | £ 260,000 | BUY | 6 / 10 | 0.00 KM |
| 87 Rishworth Mill, Rishworth, HX6 4RZ | £ 250,000 | BUY | 7 / 10 | 0.00 KM |
| 66 Rishworth Mill, Rishworth, HX6 4RZ | £ 200,000 | BUY | Unknown | 0.01 KM |
| Rishworth Mill Lane, Rishworth, Sowerby Bridge | £ 220,000 | BUY | 6 / 10 | 0.03 KM |
| The Gatehouse, Rishworth HX6 4QE | £ 650,000 | BUY | 7 / 10 | 0.03 KM |
Nearby Properties
| Address | Price | Distance |
|---|---|---|
| 304 Oldham Road | £ 195,000 | 0.28 KM |
| 308 Oldham Road | £ 148,000 | 0.28 KM |
| 139 Oldham Road | £ 150,000 | 0.28 KM |
| 147 Oldham Road | £ 190,000 | 0.29 KM |
| 143 Oldham Road | £ 210,000 | 0.29 KM |