Littlewoods says ..
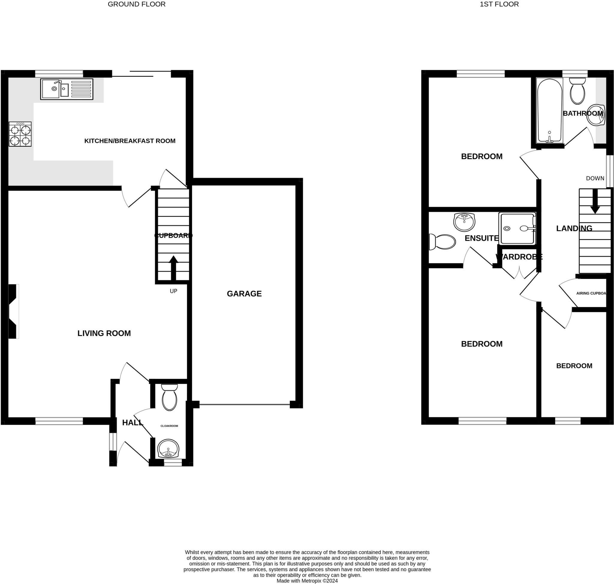
An opportunity to purchase this delightful, 3 bedroom, semi-detached, family home situated on this modern development approximately a mile and a half from New Milton town centre. The property was believed to have been built in the early 2000’s and enjoys spacious, well-planned accommodation, with...
Property Oracle says ..
This three-bedroom semi-detached house in Earlswood Park, New Milton, offers a comfortable family home. The property is situated within easy reach of schools, shops and transport connections. The interior shows a functional layout, though the decor appears somewhat dated and might benefit from modernising. The kitchen and bathrooms are seemingly in good working order. The house benefits from a modest garden, providing some outdoor space. The property’s list price aligns with other comparable properties in the locality, suggesting it presents reasonable value for money. While the property is habitable and functional as presented, potential buyers may wish to factor in the cost of updating the decor and potentially some landscaping to meet their individual preferences. The lack of plot size data in the listing hinders a more precise assessment of the property’s value.
Therefore, we give this property 6 / 10. *Disclaimer: This is our option and does constitute a recommendation or financial advice. Do your own research. *
- Price
- 7
- Condition
- 6
- Location
- 7
- Land
- 4
- Bedrooms
- 3
- Bathrooms
- 2
- Sqft (est)
- 1,000.00
The heatmap indicates the level of crime in the area. The color of the heatmap indicates the crime severity and recency.
Metrics Year-on-Year
- Average area value
- 413,623.00 £Decreased by 6.20 %
- Est sale value
- 494,000.00 £Increased by 32.09 %
- Average area rental value
- 1,217.00 £/moDecreased by 13.57 %
- Est letting value
- 1,000.00 £/moUnchanged by 0.00 %
- Est rental Yield
- 3.53 %Decreased by 7.83 %
- Crime Rate
- 35.00 %Unchanged by 0.00 %
Agent Activity
Littlewoods created the listing.
Nearby Schools
| Name | Type | Ofsted | Distance |
|---|---|---|---|
| Ashley Infant School | Community School | Good | 0.79 KM |
| Ashley Junior School | Foundation School | Good | 0.81 KM |
| Tiptoe Primary School | Community School | Good | 1.89 KM |
| Ballard School | Other Independent School | 2.05 KM | |
| New Milton Junior School | Community School | Good | 2.80 KM |
Images
Nearby Streets
| Name | Average Price | Average Sqft | Distance |
|---|---|---|---|
| Hermitage Close | £ 1,000,000 | 0 | 0.00 KM |
| Park Road | £ 0 | 0 | 0.00 KM |
| The Parade | £ 0 | 0 | 0.00 KM |
| Hilton Road | £ 0 | 0 | 0.00 KM |
| Meadow Road | £ 0 | 0 | 0.00 KM |
Nearby Transport
| Name | NLC | TLC | Distance |
|---|---|---|---|
| New Milton | 5881 | NWM | 2.10 KM |
| Sway | 5884 | SWY | 4.12 KM |
| Hinton Admiral | 5880 | HNA | 8.25 KM |
| Brockenhurst | 5886 | BCU | 9.50 KM |
Nearby Listings
| Address | Price | Type | Score | Distance |
|---|---|---|---|---|
| New Milton | £ 379,950 | BUY | 6 / 10 | 0.00 KM |
| Hermitage Close, New Milton, BH25 | £ 1,000,000 | BUY | 7 / 10 | 0.12 KM |
| Hermitage Close, Ashley, New Milton, Hampshire, BH25 | £ 1,000,000 | BUY | 8 / 10 | 0.12 KM |
| 1 Forest Edge New Milton BH25 5GT | £ 650,000 | BUY | 7 / 10 | 0.18 KM |
| Earlswood Park, New Milton, Hampshire, BH25 | £ 600,000 | BUY | 8 / 10 | 0.19 KM |
Nearby Properties
| Address | Price | Distance |
|---|---|---|
| 57 Earlswood Park | £ 385,000 | 0.01 KM |
| 49 Earlswood Park | £ 245,000 | 0.01 KM |
| 47 Earlswood Park | £ 345,000 | 0.01 KM |
| 10 Earlswood Park | £ 194,000 | 0.01 KM |
| 29 Earlswood Park | £ 235,000 | 0.01 KM |