Hunters says ..
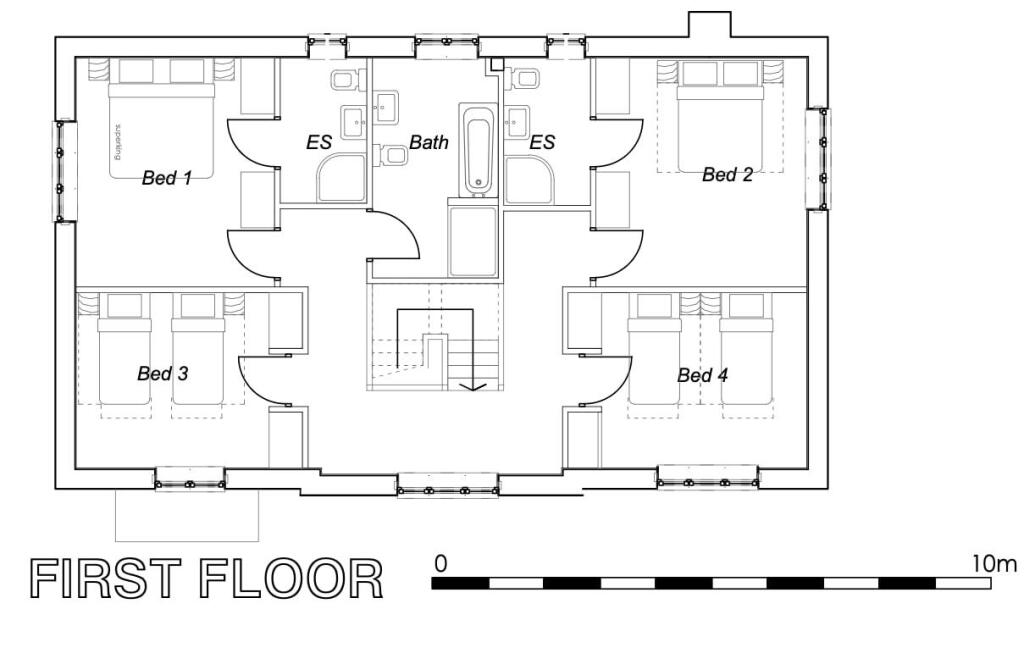
A rare opportunity to acquire a building plot with full detailed planning in the sought after area of Webheath. The good size plot offers planning permission for a detached two storey, four bedroom house with internal accommodation of approximately 2080 sqft with additional detached doub...
Property Oracle says ..
This is a plot of land for sale in Redditch, Worcestershire. The location is favorable due to its proximity to good schools and transportation links. The architectural drawings suggest a modern build. The price seems reasonable compared to the average property price in the area, making it an attractive opportunity for building a new home.
Therefore, we give this property 7 / 10. *Disclaimer: This is our option and does constitute a recommendation or financial advice. Do your own research. *
- Price
- 9
- Condition
- 8
- Location
- 7
- Land
- 7
- Bedrooms
- 4
- Bathrooms
- 3
The heatmap indicates the level of crime in the area. The color of the heatmap indicates the crime severity and recency.
Metrics Year-on-Year
- Average area value
- 502,500.00 £Increased by 40.73 %
- Average area rental value
- 961.00 £/moDecreased by 1.13 %
- Est rental Yield
- 2.29 %Decreased by 29.97 %
- Crime Rate
- 8.00 %Unchanged by 0.00 %
Agent Activity
Hunters created the listing.
Nearby Schools
| Name | Type | Ofsted | Distance |
|---|---|---|---|
| Our Lady Of Mount Carmel Catholic First School | Academy Converter | Good | 0.83 KM |
| Webheath Academy Primary School | Academy Converter | Good | 1.13 KM |
| Cherry Trees Children'S Centre | Children's Centre | 1.59 KM | |
| Batchley First And Nursery School | Community School | Good | 1.65 KM |
| Pitcheroak School | Community Special School | Good | 1.80 KM |
Images
Nearby Streets
| Name | Average Price | Average Sqft | Distance |
|---|---|---|---|
| Foxlydate Lane | £ 0 | 0 | 0.00 KM |
| Churchview Court | £ 0 | 0 | 0.00 KM |
| Cur Lane | £ 0 | 0 | 0.00 KM |
| Newgate Close | £ 399,000 | 0 | 0.00 KM |
| Bromsgrove Road | £ 0 | 0 | 0.00 KM |
Nearby Transport
| Name | NLC | TLC | Distance |
|---|---|---|---|
| Redditch | 1208 | RDC | 3.52 KM |
| Alvechurch | 1198 | ALV | 4.89 KM |
| Barnt Green | 1096 | BTG | 6.68 KM |
| Bromsgrove | 4715 | BMV | 8.08 KM |
Nearby Listings
| Address | Price | Type | Score | Distance |
|---|---|---|---|---|
| Foxlydiate Lane, Redditch B97 | £ 300,000 | BUY | 7 / 10 | 0.00 KM |
| Foxlydiate Lane, Redditch, Worcestershire, B97 | £ 525,000 | BUY | Unknown | 0.07 KM |
| Foxlydiate Lane, Redditch, B97 | £ 395,000 | BUY | 7 / 10 | 0.08 KM |
| Birchfield Road, Redditch, B97 | £ 235,000 | BUY | 7 / 10 | 0.15 KM |
| Reynard Close, Webheath, Redditch, Worcestershire, B97 | £ 450,000 | BUY | 6 / 10 | 0.15 KM |
Nearby Properties
| Address | Price | Distance |
|---|---|---|
| 41 Reynard Close | £ 251,000 | 0.17 KM |
| 61 Reynard Close | £ 287,000 | 0.17 KM |
| 31 Reynard Close | £ 308,000 | 0.17 KM |
| 65 Reynard Close | £ 265,500 | 0.17 KM |
| 77 Reynard Close | £ 195,000 | 0.17 KM |