Chancellors says ..
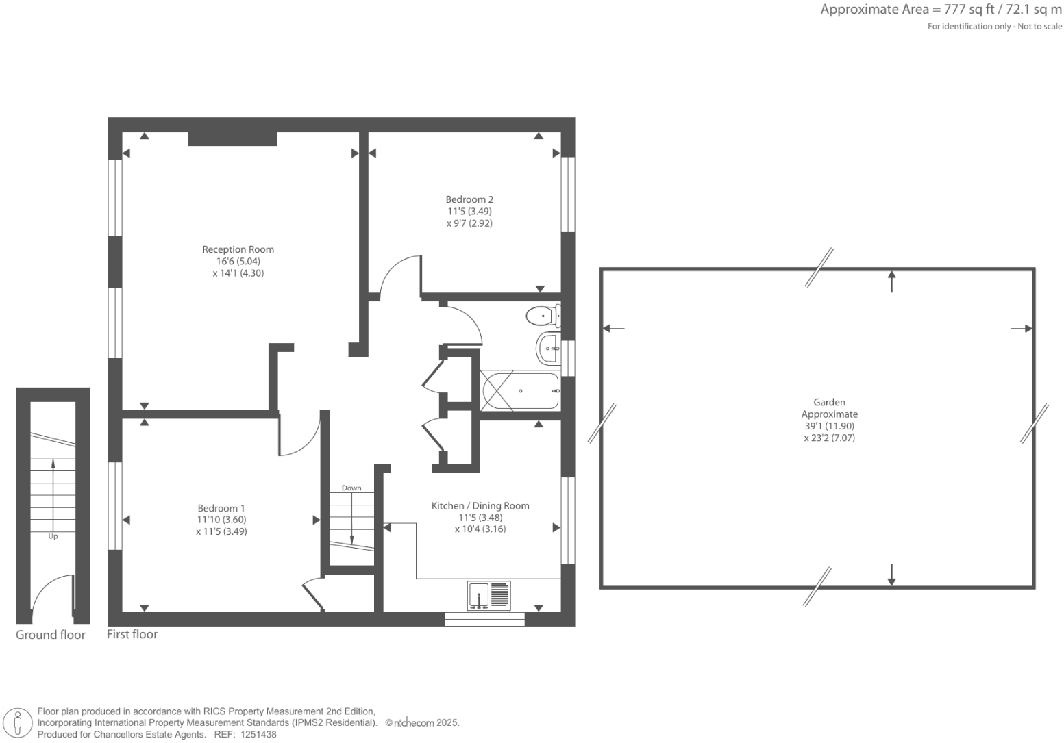
Situated on a corner plot this 2 double bedroom first floor maisonette benefits from its own private garden and the possibility of off-street parking via a dropped kerb. Would make an ideal first time buy or rental investment.
Property Oracle says ..
This property is a 2 bedroom, 1 bathroom house located in Harrow, London. The property is listed at £400,000 and has 1,496 sqft of living space and a 777 sqft plot. The average price for a property in the area is £334,550 with an average price per sqft of £328. The property appears to be in good condition, with a well-maintained garden. The location is convenient, with nearby transportation links and schools. Given the condition, location, and land size, the list price seems reasonable, slightly above average but justifiable considering the additional space and garden.
Therefore, we give this property 7 / 10. *Disclaimer: This is our option and does constitute a recommendation or financial advice. Do your own research. *
- Price
- 7
- Condition
- 7
- Location
- 8
- Land
- 7
- Bedrooms
- 2
- Bathrooms
- 1
- Sqft (est)
- 1,496.00
- Lot (est)
- 777.00
The heatmap indicates the level of crime in the area. The color of the heatmap indicates the crime severity and recency.
Metrics Year-on-Year
- Average area value
- 341,429.00 £Increased by 9.95 %
- Est sale value
- 468,248.00 £Decreased by 25.65 %
- Average area rental value
- 875.00 £/moDecreased by 18.53 %
- Est letting value
- 0.00 £/moDecreased by 100.00 %
- Est rental Yield
- 3.08 %Decreased by 25.78 %
- Crime Rate
- 0.00 %
Agent Activity
Chancellors created the listing.
Nearby Schools
| Name | Type | Ofsted | Distance |
|---|---|---|---|
| Priestmead Primary School And Nursery | Academy Converter | 0.38 KM | |
| St Joseph'S Catholic Primary School | Academy Converter | 0.66 KM | |
| Stanburn Primary School | Community School | Good | 1.07 KM |
| Belmont School | Community School | Outstanding | 1.38 KM |
| Park High School | Academy Converter | Outstanding | 1.42 KM |
Images
Nearby Streets
| Name | Average Price | Average Sqft | Distance |
|---|---|---|---|
| Clifton Avenue | £ 0 | 0 | 0.00 KM |
| Kenton Lane | £ 0 | 0 | 0.00 KM |
| Greenacres Drive | £ 0 | 0 | 0.00 KM |
| Alcuin Court | £ 0 | 0 | 0.00 KM |
| Burnham Close | £ 0 | 0 | 0.00 KM |
Nearby Transport
| Name | NLC | TLC | Distance |
|---|---|---|---|
| Kenton | 1399 | KNT | 1.93 KM |
| Harrow And Wealdstone | 1397 | HRW | 2.29 KM |
| South Kenton | 1453 | SOK | 3.29 KM |
| Harrow-On-The-Hill | 598 | HOH | 3.30 KM |
| North Wembley | 1422 | NWB | 4.23 KM |
Nearby Listings
| Address | Price | Type | Score | Distance |
|---|---|---|---|---|
| Harrow, London, HA3 | £ 400,000 | BUY | 7 / 10 | 0.00 KM |
| Elmore Close, Harrow, Middlesex | £ 735,000 | BUY | 7 / 10 | 0.03 KM |
| Elmore Close, Harrow, HA3 | £ 775,000 | BUY | 7 / 10 | 0.06 KM |
| Tenby Avenue, Harrow, HA3 | £ 600,000 | BUY | 6 / 10 | 0.08 KM |
| Kenton Lane Farm, Kenton Lane, Harrow, Greater London, HA3 | £ 895,000 | BUY | 5 / 10 | 0.09 KM |
Nearby Properties
| Address | Price | Distance |
|---|---|---|
| 351 Kenton Lane | £ 142,500 | 0.03 KM |
| 335 Kenton Lane | £ 325,000 | 0.03 KM |
| 328 Kenton Lane | £ 278,000 | 0.12 KM |
| 320 Kenton Lane | £ 81,000 | 0.12 KM |
| 318 Kenton Lane | £ 580,000 | 0.12 KM |