Alexandra Road, Six Bells, Abertillery
By Louvain Properties
£ 240,000
Reviews
2 out of 5 stars
Louvain Properties says ..
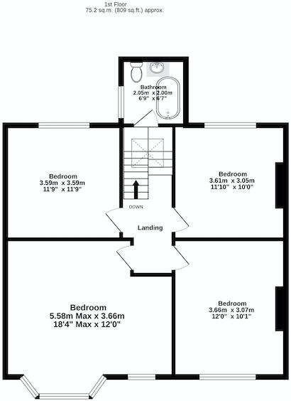
**SEMI DETACHED**DOUBLE FRONTED**4 BEDROOMS**LARGE LOUNGE AND DINING ROOM**OAK FITTED KITCHEN**PATIO FRONT GARDEN WITH GLASS BALUSTRADES AROUND**LARGE REAR GARDEN**DOUBLE GARAGE WITH ELECTRIC ROLLER SHUTTER DOOR**NEAR TOWN CENTRE**
Property Oracle says ..
A semi-detached property located on Alexandra Road, Six Bells, Abertillery. The property features four bedrooms and one bathroom, with a total square footage of 322.92. The interior photos reveal a traditionally styled home with some modern updates. Externally, the property includes a patio area and garden.
Therefore, we give this property 5 / 10. *Disclaimer: This is our option and does constitute a recommendation or financial advice. Do your own research. *
- Price
- 3
- Condition
- 6
- Location
- 6
- Land
- 6
- Bedrooms
- 4
- Bathrooms
- 1
- Sqft (est)
- 322.92
The heatmap indicates the level of crime in the area. The color of the heatmap indicates the crime severity and recency.
Metrics Year-on-Year
- Average area value
- 300,000.00 £Decreased by 22.28 %
- Est sale value
- 136,595.16 £Decreased by 3.86 %
- Average area rental value
- 1,073.00 £/moDecreased by 13.47 %
- Est letting value
- 322.92 £/moUnchanged by 0.00 %
- Est rental Yield
- 4.29 %Increased by 11.43 %
- Crime Rate
- 9.00 %Unchanged by 0.00 %
Agent Activity
Louvain Properties created the listing.
Nearby Schools
| Name | Type | Ofsted | Distance |
|---|---|---|---|
| Trinant Primary School | Welsh Establishment | 3.50 KM | |
| Sofrydd C.P. School | Welsh Establishment | 4.64 KM | |
| St Illtyd'S | Welsh Establishment | 5.28 KM | |
| Ystruth Primary | Welsh Establishment | 5.47 KM | |
| Crumlin High Level Primary School | Welsh Establishment | 5.53 KM |
Images
Nearby Streets
| Name | Average Price | Average Sqft | Distance |
|---|---|---|---|
| Ebbw fach Trail | £ 95,000 | 0 | 0.00 KM |
| Vivian Street | £ 0 | 0 | 0.00 KM |
| Cwmcottage Road | £ 184,143 | 0 | 0.00 KM |
| Old Barn Way | £ 130,000 | 0 | 0.00 KM |
| Old Barn Way | £ 120,000 | 0 | 0.00 KM |
Nearby Transport
| Name | NLC | TLC | Distance |
|---|---|---|---|
| Llanhilleth | 9916 | LTH | 2.78 KM |
| Newbridge | 9919 | NBE | 6.71 KM |
| Ebbw Vale Parkway | 9915 | EBV | 8.23 KM |
| Ebbw Vale Town | 3628 | EBB | 9.97 KM |
Nearby Listings
| Address | Price | Type | Score | Distance |
|---|---|---|---|---|
| Alexandra Road, Six Bells, Abertillery | £ 240,000 | BUY | 5 / 10 | 0.00 KM |
| Alexandra Road, Six Bells, NP13 | £ 245,000 | BUY | Unknown | 0.03 KM |
| Alexandra Road, Six Bells, NP13 | £ 240,000 | BUY | 6 / 10 | 0.03 KM |
| Alexandra Road, Six Bells, Abertillery | £ 109,995 | BUY | 5 / 10 | 0.04 KM |
| Alexandra Road, Six Bells, Abertillery | £ 70,000 | BUY | 5 / 10 | 0.04 KM |
Nearby Properties
| Address | Price | Distance |
|---|---|---|
| Hillcrest | £ 158,500 | 0.04 KM |
| 130 Alexandra Road | £ 85,000 | 0.04 KM |
| 108 Alexandra Road | £ 145,000 | 0.04 KM |
| 97 Alexandra Road | £ 80,000 | 0.04 KM |
| 120 Alexandra Road | £ 89,950 | 0.04 KM |