Alfonso Close, Aldershot, Hampshire, GU12
By Bridges Estate Agents
£ 375,000
Reviews
3 out of 5 stars
Bridges Estate Agents says ..
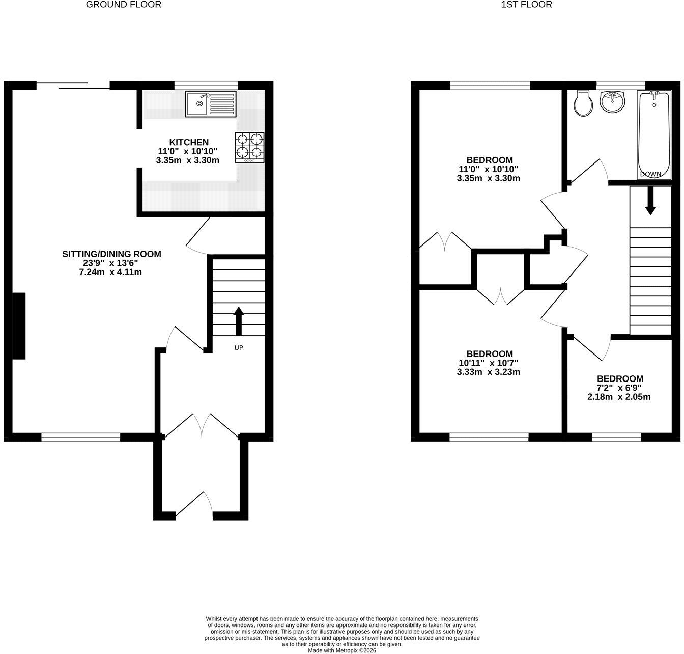
Bridges are proud to present this three bedroom, terraced family home, positioned in one of Aldershot's most sought after locations. Set over two floors, the property benefits from three bedrooms and an open plan living/dining area, as well as a garage. The ground floor boasts a welcoming entranc...
Property Oracle says ..
This is a three-bedroom terraced house in Aldershot, Hampshire. The property benefits from a garden and is located near schools and transport links. While the house is in generally good condition, the kitchen could use updating. The asking price seems reasonable given the location and the current market.
Therefore, we give this property 6 / 10. *Disclaimer: This is our option and does constitute a recommendation or financial advice. Do your own research. *
- Price
- 7
- Condition
- 7
- Location
- 7
- Land
- 6
- Bedrooms
- 3
- Bathrooms
- 1
- Sqft (est)
- 722.27
The heatmap indicates the level of crime in the area. The color of the heatmap indicates the crime severity and recency.
Metrics Year-on-Year
- Average area value
- 250,000.00 £Increased by 29.42 %
- Est sale value
- 215,958.73 £Increased by 32.89 %
- Average area rental value
- 833.00 £/moDecreased by 23.08 %
- Est letting value
- 0.00 £/moDecreased by 100.00 %
- Est rental Yield
- 4.00 %Decreased by 40.56 %
- Crime Rate
- 7.00 %Unchanged by 0.00 %
Agent Activity
Bridges Estate Agents created the listing.
Nearby Schools
| Name | Type | Ofsted | Distance |
|---|---|---|---|
| St Michael'S Church Of England Controlled Junior School | Voluntary Controlled School | Requires improvement | 0.65 KM |
| Park Primary School | Community School | Good | 0.67 KM |
| Sunflowers Children'S Centre | Children's Centre Linked Site | 0.81 KM | |
| St Michael'S Church Of England Controlled Infant School | Voluntary Controlled School | Outstanding | 0.89 KM |
| Maple Vue Children'S Centre | Children's Centre | 0.94 KM |
Images
Nearby Streets
| Name | Average Price | Average Sqft | Distance |
|---|---|---|---|
| Orchard Way | £ 400,000 | 0 | 0.00 KM |
| Hop Kiln Villas | £ 0 | 0 | 0.00 KM |
| Newport Road | £ 307,778 | 0 | 0.00 KM |
| Church Road | £ 395,000 | 0 | 0.00 KM |
| Churchill Avenue | £ 566,667 | 0 | 0.00 KM |
Nearby Transport
| Name | NLC | TLC | Distance |
|---|---|---|---|
| Aldershot | 5623 | AHT | 1.39 KM |
| Ash | 5641 | ASH | 4.06 KM |
| North Camp | 5636 | NCM | 4.32 KM |
| Ash Vale | 5547 | AHV | 4.58 KM |
| Farnham | 5545 | FNH | 5.83 KM |
Nearby Listings
| Address | Price | Type | Score | Distance |
|---|---|---|---|---|
| Alfonso Close, Aldershot, Hampshire, GU12 | £ 375,000 | BUY | 6 / 10 | 0.00 KM |
| Alfonso Close, Aldershot, GU12 | £ 385,000 | BUY | 6 / 10 | 0.04 KM |
| Alfonso close, Aldershot, GU12 | £ 385,000 | BUY | 6 / 10 | 0.04 KM |
| Gillian Avenue, Aldershot, Hampshire, GU12 | £ 500,000 | BUY | 7 / 10 | 0.06 KM |
| Gillian Close, Aldershot | £ 350,000 | BUY | 6 / 10 | 0.06 KM |
Nearby Properties
| Address | Price | Distance |
|---|---|---|
| 6 Alfonso Close | £ 244,000 | 0.04 KM |
| 16 Alfonso Close | £ 300,000 | 0.04 KM |
| 48 Alfonso Close | £ 250,000 | 0.04 KM |
| 40 Alfonso Close | £ 395,000 | 0.04 KM |
| 12 Alfonso Close | £ 281,750 | 0.04 KM |