Coombe Lane West, Kingston Upon Thames, Surrey, KT2
By Land and New Homes
£ 2,250,000
Land and New Homes says ..
Set in the Royal Borough of Kingston-upon-Thames, a unique development in a convenient location overlooking Malden Golf Course
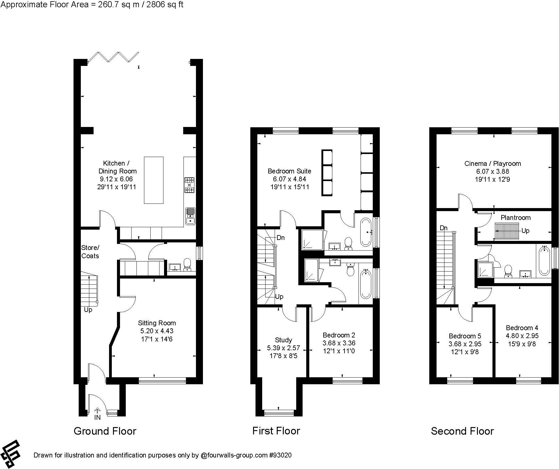
- Bedrooms
- 5
- Bathrooms
- 3
The heatmap indicates the level of crime in the area. The color of the heatmap indicates the crime severity and recency.
Metrics Year-on-Year
- Average area value
- 1,213,333.00 £Decreased by 19.80 %
- Average area rental value
- 6,408.00 £/moIncreased by 114.10 %
- Est rental Yield
- 6.34 %Increased by 167.51 %
- Crime Rate
- 1.00 %Unchanged by 0.00 %
from 1,512,950.00 £
from 2,993.00 £/mo
from 2.37 %
from 1.00 %
Agent Activity
Land and New Homes created the listing.
Nearby Schools
| Name | Type | Ofsted | Distance |
|---|---|---|---|
| Coombe Girls' School | Academy Converter | Outstanding | 0.93 KM |
| Coombe Hill Infant School | Community School | Good | 1.05 KM |
| Coombe Hill Junior School | Community School | Outstanding | 1.05 KM |
| Marymount International School | Other Independent School | 1.29 KM | |
| Robin Hood Primary And Nursery School | Academy Converter | 1.47 KM |
Images
Nearby Streets
| Name | Average Price | Average Sqft | Distance |
|---|---|---|---|
| Steps | £ 0 | 0 | 0.00 KM |
| Coombe Lane Flyover | £ 0 | 0 | 0.00 KM |
| Cambridge Avenue | £ 750,000 | 0 | 0.00 KM |
| Preston Road | £ 3,083,333 | 0 | 0.00 KM |
| Ely Close | £ 753,488 | 0 | 0.00 KM |
Nearby Transport
| Name | NLC | TLC | Distance |
|---|---|---|---|
| New Malden | 5567 | NEM | 1.34 KM |
| Norbiton | 5568 | NBT | 2.99 KM |
| Motspur Park | 5645 | MOT | 3.04 KM |
| Raynes Park | 5569 | RAY | 3.09 KM |
| Berrylands | 5581 | BRS | 3.22 KM |
Nearby Listings
| Address | Price | Type | Score | Distance |
|---|---|---|---|---|
| Coombe Lane West, Kingston Upon Thames, Surrey, KT2 | £ 2,250,000 | BUY | 7 / 10 | 0.00 KM |
| Coombe Lane West, Kingston Upon Thames, Surrey, KT2 | £ 2,250,000 | BUY | 8 / 10 | 0.00 KM |
| Coombe Lane West, Kingston Upon Thames, Surrey, KT2 | £ 2,425,000 | BUY | 7 / 10 | 0.00 KM |
| Coombe Lane West, Kingston Upon Thames, Surrey, KT2 | £ 2,250,000 | BUY | Unknown | 0.00 KM |
| Coombe Lane West, Kingston Upon Thames, Surrey, KT2 | £ 2,325,000 | BUY | 7 / 10 | 0.01 KM |
Nearby Properties
| Address | Price | Distance |
|---|---|---|
| 158 Coombe Lane West | £ 1,750,000 | 0.01 KM |
| 176 Coombe Lane West | £ 575,000 | 0.01 KM |
| 152 Coombe Lane West | £ 2,325,200 | 0.01 KM |
| 150 Coombe Lane West | £ 2,062,500 | 0.01 KM |
| 168 Coombe Lane West | £ 2,500,000 | 0.01 KM |