GR
Caledonian Road, London, N1
By Griffin Property Co.
£ 750,000
Reviews
3 out of 5 stars
Griffin Property Co. says ..
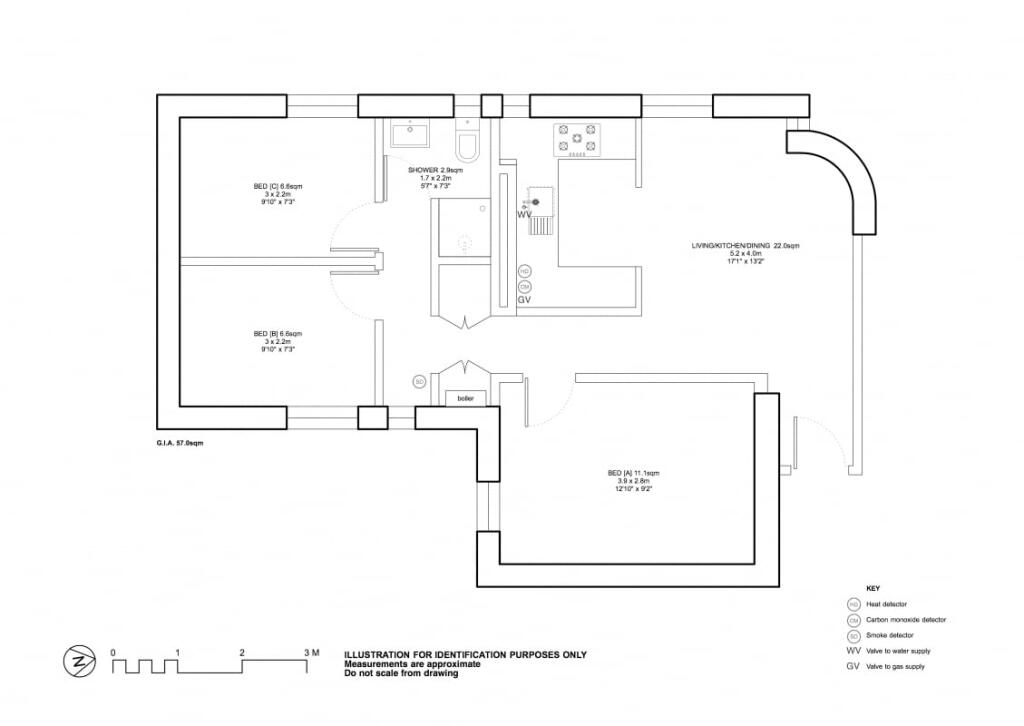
Property ownership information Tenure: Leasehold with share of freehold Council tax band: E Annual ground rent: No ground rent Ground rent review period: No review period Annual service charge: £4000 Service charge review period: Annually Years left on lease: 962 years Note:
Property Oracle says ..
Therefore, we give this property 6 / 10. *Disclaimer: This is our option and does constitute a recommendation or financial advice. Do your own research. *
- Price
- 5
- Condition
- 7
- Location
- 8
- Land
- 6
- Bedrooms
- 3
- Bathrooms
- 1
The heatmap indicates the level of crime in the area. The color of the heatmap indicates the crime severity and recency.
Metrics Year-on-Year
- Average area value
- 1,063,462.00 £Decreased by 18.47 %
- Average area rental value
- 2,925.00 £/moIncreased by 11.30 %
- Est rental Yield
- 3.30 %Increased by 36.36 %
- Crime Rate
- 2.00 %Unchanged by 0.00 %
from 1,304,313.00 £
from 2,628.00 £/mo
from 2.42 %
from 2.00 %
Agent Activity
Griffin Property Co. created the listing.
Nearby Schools
| Name | Type | Ofsted | Distance |
|---|---|---|---|
| Copenhagen Primary School | Community School | Good | 0.24 KM |
| Winton Primary School | Community School | Good | 0.30 KM |
| Blessed Sacrament Rc Primary School | Voluntary Aided School | Good | 0.31 KM |
| Vittoria Primary School | Community School | Good | 0.39 KM |
| St Andrew'S (Barnsbury) Church Of England Primary School | Voluntary Aided School | Good | 0.45 KM |
Images
Nearby Streets
| Name | Average Price | Average Sqft | Distance |
|---|---|---|---|
| Regent's Canal towpath | £ 0 | 0 | 0.00 KM |
| Affleck Street | £ 0 | 0 | 0.00 KM |
| Killick Street | £ 0 | 0 | 0.00 KM |
| Weston Rise | £ 600,000 | 0 | 0.00 KM |
| Pembroke Avenue | £ 0 | 0 | 0.00 KM |
Nearby Transport
| Name | NLC | TLC | Distance |
|---|---|---|---|
| King'S Cross | 6121 | KGX | 0.80 KM |
| Caledonian Road And Barnsbury | 1439 | CIR | 0.92 KM |
| St Pancras | 1555 | STP | 1.18 KM |
| Highbury And Islington | 6009 | HHY | 1.92 KM |
| Euston | 1444 | EUS | 2.03 KM |
Nearby Listings
| Address | Price | Type | Score | Distance |
|---|---|---|---|---|
| Caledonian Road, London, N1 | £ 750,000 | BUY | 6 / 10 | 0.00 KM |
| The Moorings, Fife Terrace, N1 | £ 325,000 | BUY | 7 / 10 | 0.07 KM |
| Thornhill Bridge Wharf, Caledonian Road, London, N1 | £ 520,000 | BUY | 5 / 10 | 0.11 KM |
| Caledonian Road, London, N1 | £ 350,000 | BUY | 6 / 10 | 0.12 KM |
| Caledonian Road, Islington | £ 525,000 | BUY | Unknown | 0.13 KM |
Nearby Properties
| Address | Price | Distance |
|---|---|---|
| 90 Muriel Street | £ 360,000 | 0.16 KM |
| 60 Muriel Street | £ 375,000 | 0.16 KM |
| 56 Muriel Street | £ 320,000 | 0.16 KM |
| 84 Muriel Street | £ 434,000 | 0.16 KM |
| 76 Muriel Street | £ 365,000 | 0.16 KM |