Spencer Jakeman says ..
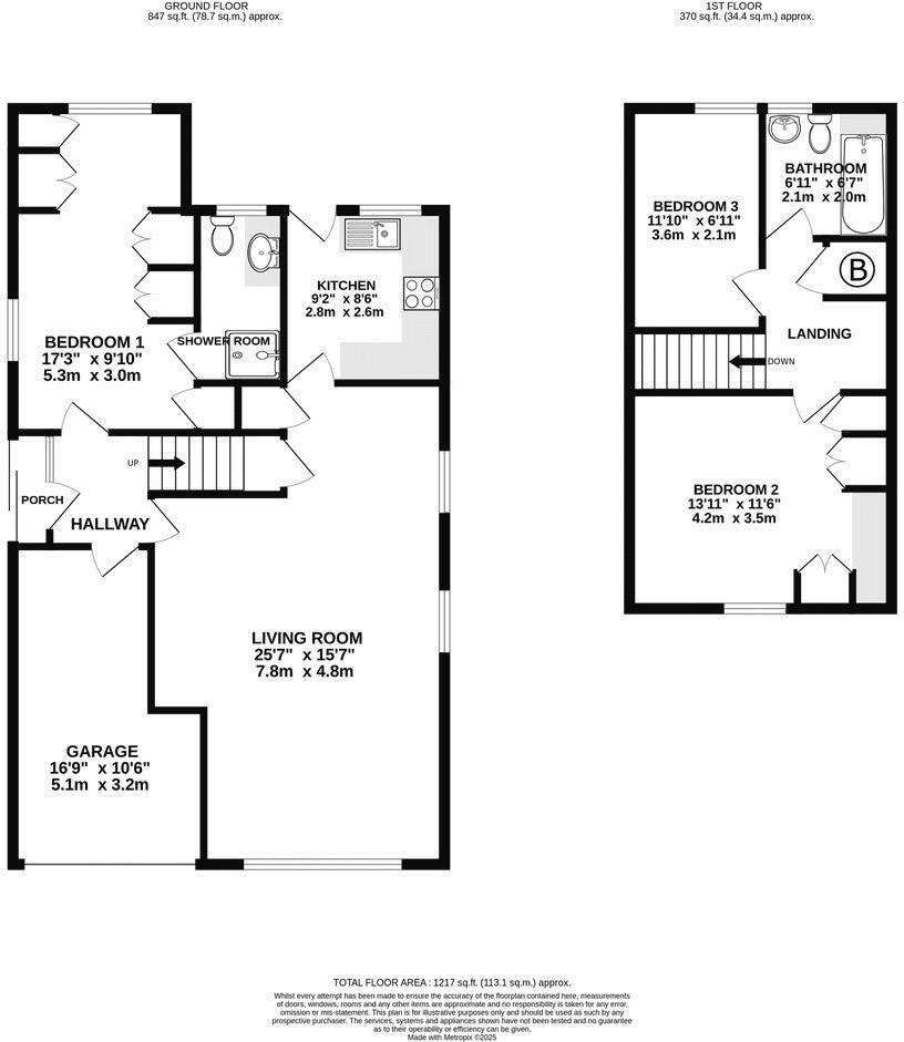
A detached dormer style bungalow offering a potential purchaser scope to personalise to fully appreciate the potential accommodation on offer. The versatile property briefly comprising an entrance porch, hallway with access to the garage, spacious sitting/dining room, kitchen with access to the r...
Property Oracle says ..
This is a three-bedroom detached bungalow located on Sutton Lane, Shrewsbury. The property is in a desirable location, close to local schools and amenities, and has good transport links. The property is in need of some modernisation, but it is structurally sound and has a good-sized garden. The property is listed for sale at £379,995, which is a reasonable price considering its location and size.
Therefore, we give this property 6 / 10. *Disclaimer: This is our option and does constitute a recommendation or financial advice. Do your own research. *
- Price
- 7
- Condition
- 5
- Location
- 7
- Land
- 7
- Bedrooms
- 3
- Bathrooms
- 2
- Sqft (est)
- 1,217.00
The heatmap indicates the level of crime in the area. The color of the heatmap indicates the crime severity and recency.
Metrics Year-on-Year
- Average area value
- 407,999.00 £Increased by 23.61 %
- Est sale value
- 438,120.00 £Increased by 32.35 %
- Average area rental value
- 914.00 £/moDecreased by 30.65 %
- Est letting value
- 0.00 £/moDecreased by 100.00 %
- Est rental Yield
- 2.69 %Decreased by 43.84 %
- Crime Rate
- 3.00 %Unchanged by 0.00 %
Agent Activity
Spencer Jakeman created the listing.
Nearby Schools
| Name | Type | Ofsted | Distance |
|---|---|---|---|
| Coleham Primary School | Academy Converter | 0.92 KM | |
| Prestfelde School | Other Independent School | 1.51 KM | |
| St Winefride'S Convent School | Other Independent School | 1.60 KM | |
| Mereside Church Of England Primary Academy | Academy Converter | 1.75 KM | |
| Shrewsbury High School | Other Independent School | 1.90 KM |
Images
Nearby Streets
| Name | Average Price | Average Sqft | Distance |
|---|---|---|---|
| Lavender Way | £ 0 | 0 | 0.00 KM |
| Grove Road | £ 0 | 0 | 0.00 KM |
| Walton Road | £ 0 | 0 | 0.00 KM |
| Millmeadow | £ 0 | 0 | 0.00 KM |
| The Limes | £ 0 | 0 | 0.00 KM |
Nearby Transport
| Name | NLC | TLC | Distance |
|---|---|---|---|
| Shrewsbury | 4387 | SHR | 1.73 KM |
Nearby Listings
| Address | Price | Type | Score | Distance |
|---|---|---|---|---|
| Sutton Lane, Shrewsbury | £ 379,995 | BUY | 6 / 10 | 0.00 KM |
| Stephenson Drive, Belle Vue, Shrewsbury | £ 130,000 | BUY | 6 / 10 | 0.12 KM |
| Brunel Way, Shrewsbury | £ 140,000 | BUY | Unknown | 0.17 KM |
| Lavender Way, Sutton Park, Shrewsbury, SY3 7TS | £ 175,000 | BUY | 7 / 10 | 0.18 KM |
| Pemberton Way, Belle Vue, Shrewsbury, SY3 7AY | £ 230,000 | BUY | 5 / 10 | 0.20 KM |
Nearby Properties
| Address | Price | Distance |
|---|---|---|
| 17 Stephenson Drive | £ 170,000 | 0.15 KM |
| 19 Stephenson Drive | £ 46,000 | 0.15 KM |
| 13 Stephenson Drive | £ 148,000 | 0.15 KM |
| 3 Stephenson Drive | £ 102,000 | 0.15 KM |
| 2 Lavender Way | £ 78,000 | 0.18 KM |