Acorn says ..
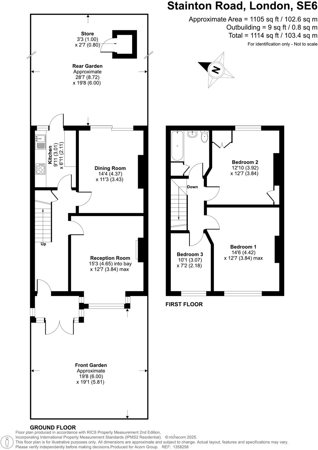
Guide Price £525,000 - £550,000. Acorn are delighted to welcome to the market this spacious family home, located well for ample transport links and amenities. Offered to the market in good order, the ground floor accommodation comprises large front lounge, separa...
Property Oracle says ..
This terraced house on Stainton Road, Lewisham, offers three bedrooms and one bathroom. The property is located in a well-connected area with good access to transportation and schools. While the house requires some renovation, it presents an opportunity for buyers to update and personalize the space. The garden, though in need of attention, provides valuable outdoor space. The price appears reasonable given the location and size of the property.
Therefore, we give this property 6 / 10. *Disclaimer: This is our option and does constitute a recommendation or financial advice. Do your own research. *
- Price
- 7
- Condition
- 5
- Location
- 7
- Land
- 6
- Bedrooms
- 3
- Bathrooms
- 1
- Sqft (est)
- 850.48
The heatmap indicates the level of crime in the area. The color of the heatmap indicates the crime severity and recency.
Metrics Year-on-Year
- Average area value
- 474,750.00 £Increased by 4.39 %
- Est sale value
- 542,606.24 £Increased by 19.25 %
- Average area rental value
- 2,030.00 £/moIncreased by 10.33 %
- Est letting value
- 1,700.96 £/moUnchanged by 0.00 %
- Est rental Yield
- 5.13 %Increased by 5.77 %
- Crime Rate
- 2.00 %Unchanged by 0.00 %
Agent Activity
Acorn created the listing.
Nearby Schools
| Name | Type | Ofsted | Distance |
|---|---|---|---|
| The Young Women'S Hub | Other Independent Special School | Requires improvement | 0.35 KM |
| Brindishe Green School | Community School | Outstanding | 0.62 KM |
| Sandhurst Primary School | Community School | Good | 0.63 KM |
| Torridon Primary School | Community School | Outstanding | 1.08 KM |
| Education-My Life Matters | Other Independent School | Requires improvement | 1.24 KM |
Images
Nearby Streets
| Name | Average Price | Average Sqft | Distance |
|---|---|---|---|
| Oakley Drive | £ 0 | 0 | 0.00 KM |
| Broadfield Road | £ 0 | 0 | 0.00 KM |
| Arlington Close | £ 0 | 0 | 0.00 KM |
| Orchard Mews | £ 475,000 | 0 | 0.00 KM |
| Greenside Close | £ 450,000 | 0 | 0.00 KM |
Nearby Transport
| Name | NLC | TLC | Distance |
|---|---|---|---|
| Hither Green | 5107 | HGR | 0.85 KM |
| Ladywell | 5057 | LAD | 1.90 KM |
| Bellingham | 5062 | BGM | 2.10 KM |
| Catford Bridge | 5047 | CFB | 2.14 KM |
| Lee | 5110 | LEE | 2.14 KM |
Nearby Listings
| Address | Price | Type | Score | Distance |
|---|---|---|---|---|
| Stainton Road, London | £ 525,000 | BUY | 6 / 10 | 0.00 KM |
| Stainton Road, Catford, London, SE6 | £ 550,000 | BUY | 5 / 10 | 0.03 KM |
| 4A The Woodlands, London, SE13 6TY | £ 382,500 | BUY | 5 / 10 | 0.04 KM |
| Brownhill Road, London, SE6 | £ 550,000 | BUY | 6 / 10 | 0.10 KM |
| Brownhill Road, Hither Green | £ 300,000 | BUY | 6 / 10 | 0.10 KM |
Nearby Properties
| Address | Price | Distance |
|---|---|---|
| 30 Stainton Road | £ 366,000 | 0.03 KM |
| 42 Stainton Road | £ 330,000 | 0.03 KM |
| 48 Stainton Road | £ 378,100 | 0.03 KM |
| 24 Stainton Road | £ 615,000 | 0.03 KM |
| 54 Stainton Road | £ 385,000 | 0.03 KM |