MI
Primrose Road, Longridge, Preston, PR3
By Michael Bailey Estate Agent, Powered by Keller Williams
£ 230,000
Reviews
3 out of 5 stars
Michael Bailey Estate Agent, Powered by Keller Williams says ..
Some People Don’t Like Modern Estates Or Townhouses…That’s Such A Shame As There’s Lots To Love Here
Property Oracle says ..
Therefore, we give this property 7 / 10. *Disclaimer: This is our option and does constitute a recommendation or financial advice. Do your own research. *
- Price
- 9
- Condition
- 8
- Location
- 7
- Land
- 7
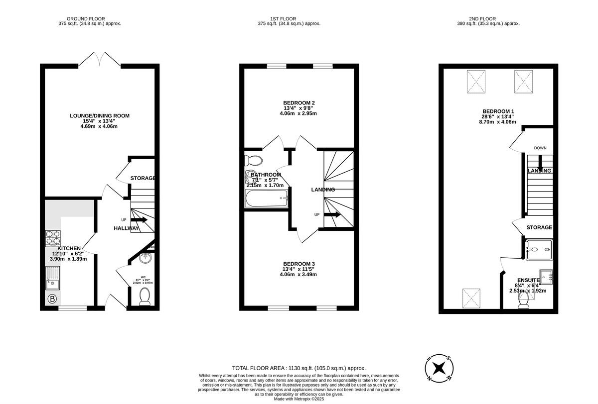
- Bedrooms
- 3
- Bathrooms
- 2
- Sqft (est)
- 1,038.00
The heatmap indicates the level of crime in the area. The color of the heatmap indicates the crime severity and recency.
Metrics Year-on-Year
- Average area value
- 233,429.00 £Increased by 4.08 %
- Est sale value
- 375,756.00 £Increased by 27.92 %
- Average area rental value
- 826.00 £/moIncreased by 3.51 %
- Est letting value
- 1,038.00 £/moUnchanged by 0.00 %
- Est rental Yield
- 4.25 %Decreased by 0.47 %
- Crime Rate
- 14.00 %Unchanged by 0.00 %
from 224,271.00 £
from 293,754.00 £
from 798.00 £/mo
from 1,038.00 £/mo
from 4.27 %
from 14.00 %
Agent Activity
Michael Bailey Estate Agent, Powered by Keller Williams marked this listing as sold.
Michael Bailey Estate Agent, Powered by Keller Williams created the listing.
Nearby Schools
| Name | Type | Ofsted | Distance |
|---|---|---|---|
| Barnacre Road Primary School | Foundation School | Good | 0.43 KM |
| Longridge St Wilfrid'S Roman Catholic Primary School | Voluntary Aided School | Good | 0.50 KM |
| Willows Park Children'S Centre | Children's Centre | 0.72 KM | |
| Longridge Church Of England Primary School | Voluntary Aided School | Good | 0.84 KM |
| Longridge High School | Community School | Requires improvement | 1.15 KM |
Images
Nearby Streets
| Name | Average Price | Average Sqft | Distance |
|---|---|---|---|
| Foxglove Drive | £ 168,475 | 0 | 0.00 KM |
| Carnation Drive | £ 0 | 0 | 0.00 KM |
| St Mary's Close | £ 0 | 0 | 0.00 KM |
| Stanley Street | £ 0 | 0 | 0.00 KM |
| Birchfield Drive | £ 0 | 0 | 0.00 KM |
Nearby Listings
| Address | Price | Type | Score | Distance |
|---|---|---|---|---|
| Primrose Road, Longridge, Preston, PR3 | £ 230,000 | BUY | 7 / 10 | 0.00 KM |
| Primrose Road, Longridge, Preston, LancS, PR3 | £ 155,000 | BUY | 7 / 10 | 0.01 KM |
| Foxglove Drive, Longridge, Preston | £ 160,000 | BUY | Unknown | 0.05 KM |
| Primrose Road, Longridge, PR3 | £ 255,000 | BUY | 7 / 10 | 0.07 KM |
| Primrose Road, Longridge, PR3 | £ 231,750 | BUY | 7 / 10 | 0.07 KM |
Nearby Properties
| Address | Price | Distance |
|---|---|---|
| 3 Crumpax Meadows | £ 199,950 | 0.22 KM |
| 5 Crumpax Meadows | £ 210,000 | 0.22 KM |
| 2 Crumpax Meadows | £ 180,000 | 0.22 KM |
| 16 Crumpax Meadows | £ 245,000 | 0.22 KM |
| 14 Crumpax Meadows | £ 150,000 | 0.22 KM |