33a Silver Street, Godmanchester, Cambridgeshire. PE29 2HR
By Gatehouse Estates
£ 400,000
Reviews
2 out of 5 stars
Gatehouse Estates says ..
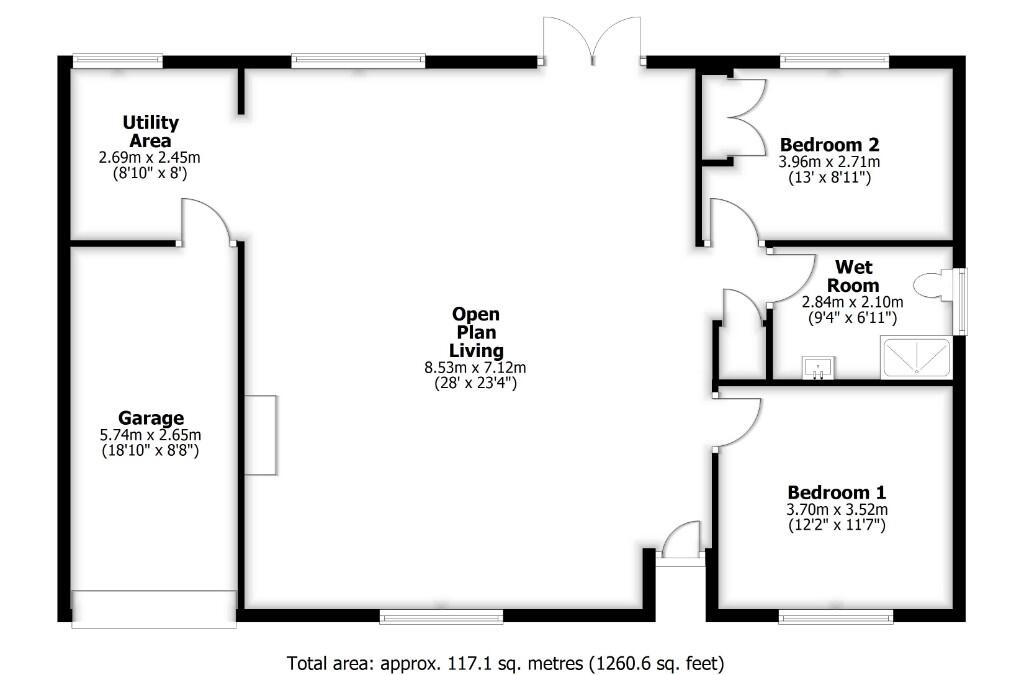
Located just off Silver Street this detached bungalow with south facing garden is only a short walk from all the town's amenities, the river and open countryside. The accommodation is currently very open plan with two bedrooms, a wet room, a utility area and a garage. The open plan area could easil
Property Oracle says ..
Godmanchester is a desirable village location in Cambridgeshire, close to good schools and Huntingdon for amenities and transport. The property needs significant modernisation; walls show damage and damp, and the overall finish is tired. The garden is present but unkempt. The £400,000 price is slightly above average but the needed renovation justifies it, though extensive work is required.
Therefore, we give this property 5 / 10. *Disclaimer: This is our option and does constitute a recommendation or financial advice. Do your own research. *
- Price
- 5
- Condition
- 3
- Location
- 8
- Land
- 5
- Bedrooms
- 2
- Bathrooms
- 1
- Sqft (est)
- 1,260.45
The heatmap indicates the level of crime in the area. The color of the heatmap indicates the crime severity and recency.
Metrics Year-on-Year
- Average area value
- 265,066.00 £Increased by 22.85 %
- Est sale value
- 548,295.75 £Increased by 59.34 %
- Average area rental value
- 1,330.00 £/moIncreased by 2.94 %
- Est letting value
- 2,520.90 £/moIncreased by 100.00 %
- Est rental Yield
- 6.02 %Decreased by 16.27 %
- Crime Rate
- 2.00 %Unchanged by 0.00 %
Agent Activity
Gatehouse Estates created the listing.
Nearby Schools
| Name | Type | Ofsted | Distance |
|---|---|---|---|
| St Anne'S Cofe Primary School | Voluntary Aided School | Good | 0.57 KM |
| Godmanchester Community Academy | Academy Converter | Good | 0.78 KM |
| Godmanchester Bridge Academy | Academy Sponsor Led | Good | 1.28 KM |
| Hartford Junior School | Academy Sponsor Led | Good | 2.47 KM |
| Hartford Infant School | Academy Converter | 2.48 KM |
Images
Nearby Streets
| Name | Average Price | Average Sqft | Distance |
|---|---|---|---|
| Stocks Lane | £ 0 | 0 | 0.00 KM |
| The Maltings | £ 0 | 0 | 0.00 KM |
| St Anne's Court | £ 0 | 0 | 0.00 KM |
| Mill Yard | £ 595,000 | 0 | 0.00 KM |
| The Close | £ 0 | 0 | 0.00 KM |
Nearby Transport
| Name | NLC | TLC | Distance |
|---|---|---|---|
| Huntingdon | 6108 | HUN | 2.53 KM |
Nearby Listings
| Address | Price | Type | Score | Distance |
|---|---|---|---|---|
| 33a Silver Street, Godmanchester, Cambridgeshire. PE29 2HR | £ 400,000 | BUY | 5 / 10 | 0.00 KM |
| Duck End, Godmanchester, Huntingdon, PE29 | £ 575,000 | BUY | 7 / 10 | 0.05 KM |
| 46 London Street, Godmanchester, Cambridgeshire. PE29 2HX | £ 325,000 | BUY | 7 / 10 | 0.07 KM |
| 48 London Street, Godmanchester, Cambridgeshire. PE29 2HX | £ 280,000 | BUY | 7 / 10 | 0.09 KM |
| London Street, Godmanchester, Huntingdon, Cambridgeshire, PE29 2HU | £ 450,000 | BUY | 6 / 10 | 0.12 KM |
Nearby Properties
| Address | Price | Distance |
|---|---|---|
| 6 Duck End | £ 390,000 | 0.07 KM |
| 8 Duck End | £ 420,000 | 0.07 KM |
| 28 Silver Street | £ 300,000 | 0.09 KM |
| 25a Silver Street | £ 448,000 | 0.09 KM |
| 43 Silver Street | £ 399,000 | 0.09 KM |