Cross Street, Camborne, Cornwall
BR

Cross Street, Camborne, Cornwall

By Bradleys

£ 210,000

Reviews

3 out of 5 stars

Bradleys says ..

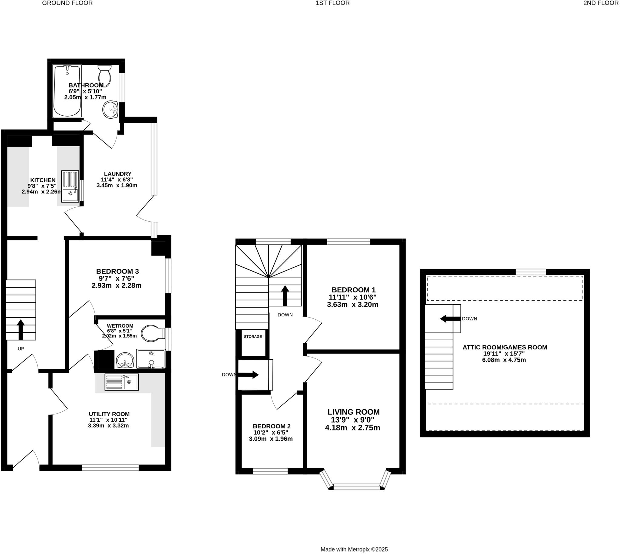
CHAIN FREE A deceptively spacious home that offers great versatility in living and sleeping accommodation. Boasting a self-contained area with wet room opening the home up to multi-generational living. Benefitting from a private and low maintenance garden to the rear and utility room....

Property Oracle says ..

This is a three-bedroom terraced property located on Cross Street in Camborne, Cornwall. The property is within walking distance of the train station and several schools. The property has a good-sized garden. The property appears to be in reasonable condition, but could benefit from some modernisation. The listing price of £210,000 seems reasonable given the location, condition, and size of the property.

Therefore, we give this property 7 / 10. *Disclaimer: This is our option and does constitute a recommendation or financial advice. Do your own research. *

Price
8
Condition
6
Location
7
Land
7
Bedrooms
3
Bathrooms
2
Sqft (est)
1,032.90

The heatmap indicates the level of crime in the area. The color of the heatmap indicates the crime severity and recency.

Metrics Year-on-Year

Average area value
380,500.00 £
Decreased by 7.95 %
from 413,363.00 £
Est sale value
315,034.50 £
Increased by 0.66 %
from 312,968.70 £
Average area rental value
1,550.00 £/mo
Increased by 31.91 %
from 1,175.00 £/mo
Est letting value
1,032.90 £/mo
from 0.00 £/mo
Est rental Yield
4.89 %
Increased by 43.40 %
from 3.41 %
Crime Rate
56.00 %
Unchanged by 0.00 %
from 56.00 %

Agent Activity

  • Bradleys created the listing.

Nearby Schools

NameTypeOfstedDistance
Trevithick Learning AcademyAcademy Converter0.44 KM
St John'S Catholic Primary School, CamborneAcademy ConverterGood0.52 KM
St Meriadoc Cofe Infant AcademyAcademy ConverterGood0.59 KM
Camborne Nursery SchoolLocal Authority Nursery SchoolOutstanding0.60 KM
Weeth Community Primary SchoolAcademy ConverterGood1.03 KM

Images

Picture No. 33 Picture No. 10 Picture No. 22 Picture No. 26 Picture No. 30 Picture No. 32 Picture No. 14 Picture No. 12 Picture No. 23 Picture No. 34 Picture No. 02 Picture No. 01 Picture No. 03 Picture No. 04 Picture No. 05 Picture No. 06 Picture No. 07 Picture No. 08 Picture No. 09 Picture No. 11 Picture No. 13 Picture No. 15 Picture No. 21 Picture No. 24 Picture No. 25 Picture No. 31 Picture No. 35 Picture No. 36

Nearby Streets

NameAverage PriceAverage SqftDistance
Mitchell Lane £ 000.00 KM
Adelaide Street £ 000.00 KM
Albert Place £ 99,00000.00 KM
Rectory Road £ 220,00000.00 KM
St Martin's Crescent £ 190,00000.00 KM

Nearby Transport

NameNLCTLCDistance
Camborne3504CBN0.25 KM
Redruth3530RED8.42 KM

Nearby Listings

AddressPriceTypeScoreDistance
Cross Street, Camborne, Cornwall £ 210,000BUY7 / 100.00 KM
Victoria Street, Camborne, Cornwall, TR14 £ 150,000BUY5 / 100.04 KM
Land Lying To The West Of, Victoria Street, Camborne, Cornwall, TR14 £ 220,000BUYUnknown0.06 KM
Land Lying To The West Of, Victoria Street, Camborne, Cornwall, TR14 £ 220,000BUY5 / 100.06 KM
Victoria Street, Camborne, TR14 £ 225,000BUY6 / 100.09 KM

Nearby Properties

AddressPriceDistance
23a Cross Street £ 84,0000.01 KM
15 Cross Street £ 120,0000.01 KM
41 Cross Street £ 76,0000.01 KM
32a Cross Street £ 112,5000.03 KM
28b Cross Street £ 105,0000.03 KM