White Acres Road, Mytchett, Camberley, Surrey, GU16
By Vickery
£ 450,000
Reviews
3 out of 5 stars
Vickery says ..
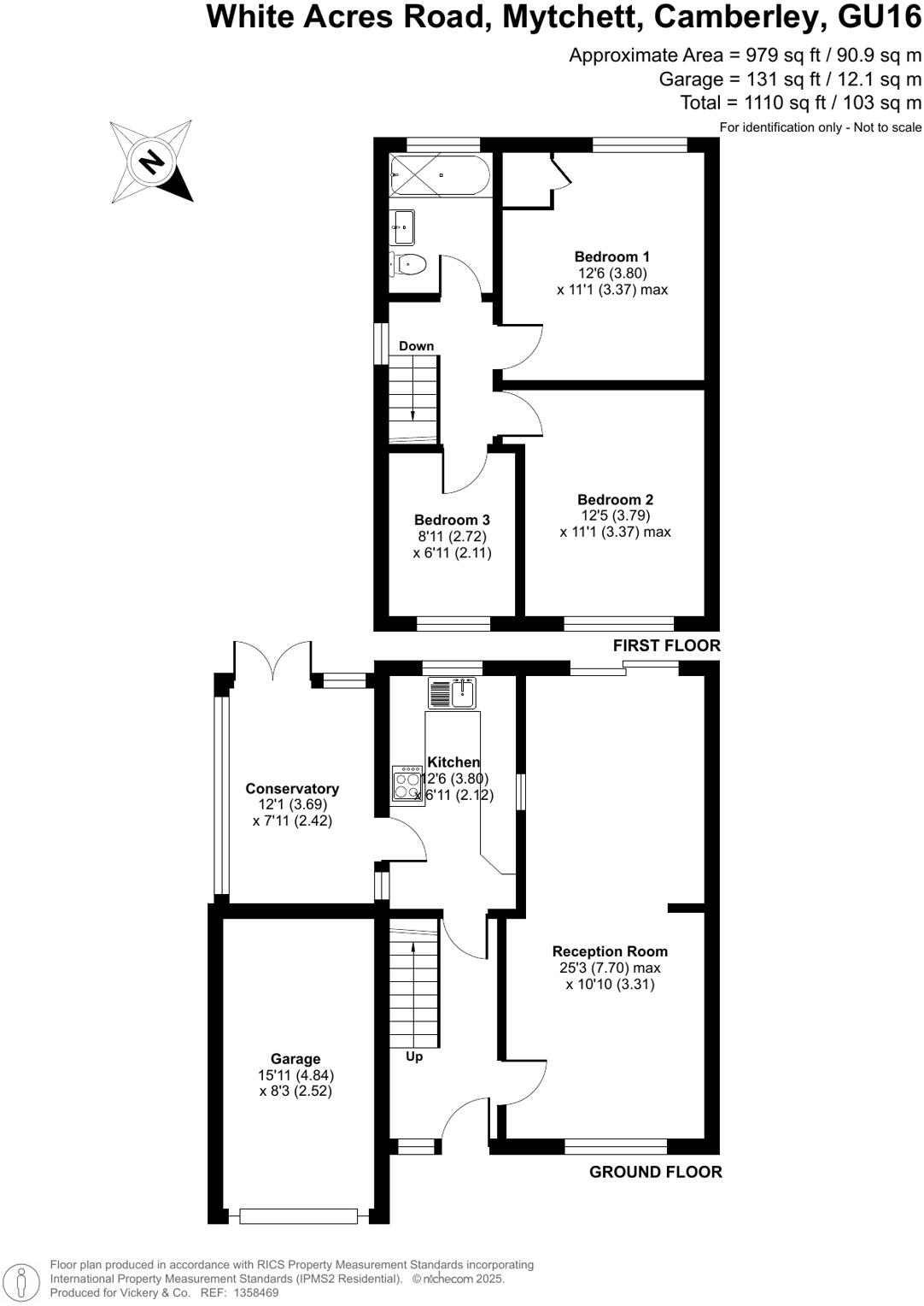
*** OFFERED FOR SALE WITH NO ONWARD CHAIN *** Vickery are pleased to offer to the market this semi-detached property, situated within close proximity of Frimley Lodge Park, shops, restaurants and other local amenities. Internally, the property comprises of three bedrooms, one bathroom, kitchen an...
Property Oracle says ..
This is a three-bedroom semi-detached property located on White Acres Road in Mytchett, Camberley. The property is in a good location, close to schools and transport links. The property is in need of some modernisation, but has a good-sized garden. The listing price seems reasonable given the condition of the property and local market data.
Therefore, we give this property 6 / 10. *Disclaimer: This is our option and does constitute a recommendation or financial advice. Do your own research. *
- Price
- 7
- Condition
- 5
- Location
- 7
- Land
- 7
- Bedrooms
- 3
- Bathrooms
- 1
- Sqft (est)
- 90.35
The heatmap indicates the level of crime in the area. The color of the heatmap indicates the crime severity and recency.
Metrics Year-on-Year
- Average area value
- 602,000.00 £Increased by 36.20 %
- Est sale value
- 41,922.40 £Increased by 10.21 %
- Average area rental value
- 1,100.00 £/moDecreased by 51.92 %
- Est letting value
- 0.00 £/moDecreased by 100.00 %
- Est rental Yield
- 2.19 %Decreased by 64.73 %
- Crime Rate
- 2.00 %Unchanged by 0.00 %
Agent Activity
Vickery created the listing.
Nearby Schools
| Name | Type | Ofsted | Distance |
|---|---|---|---|
| Mytchett Primary & Nursery Academy | Academy Converter | Good | 0.13 KM |
| Mytchett Sure Start Children'S Centre | Children's Centre | 0.13 KM | |
| Cross Farm Infant Academy | Academy Converter | 1.24 KM | |
| Sycamore Children'S Centre | Children's Centre | 1.66 KM | |
| Frimley Cofe Junior School | Academy Converter | 1.67 KM |
Images
Nearby Streets
| Name | Average Price | Average Sqft | Distance |
|---|---|---|---|
| Huntsman's Mews | £ 0 | 0 | 0.00 KM |
| Burgess Close | £ 400,000 | 0 | 0.00 KM |
| Mytchett Farm Park | £ 180,000 | 0 | 0.00 KM |
| The Green | £ 0 | 0 | 0.00 KM |
| Woodland Glade | £ 236,000 | 0 | 0.00 KM |
Nearby Transport
| Name | NLC | TLC | Distance |
|---|---|---|---|
| Farnborough North | 5688 | FNN | 1.82 KM |
| North Camp | 5636 | NCM | 2.00 KM |
| Ash Vale | 5547 | AHV | 2.51 KM |
| Frimley | 5683 | FML | 2.85 KM |
| Farnborough (Main) | 5521 | FNB | 2.99 KM |
Nearby Listings
| Address | Price | Type | Score | Distance |
|---|---|---|---|---|
| White Acres Road, Mytchett, Camberley, Surrey, GU16 | £ 450,000 | BUY | 6 / 10 | 0.00 KM |
| White Acres Road, Mytchett, Camberley, Surrey, GU16 | £ 500,000 | BUY | 6 / 10 | 0.00 KM |
| White Acres Road, Mytchett, Camberley, Surrey, GU16 | £ 525,000 | BUY | Unknown | 0.05 KM |
| Hamesmoor Way, Mytchett, GU16 | £ 845,000 | BUY | 7 / 10 | 0.10 KM |
| Minehurst Road, Mytchett, Camberley, Surrey, GU16 | £ 600,000 | BUY | 6 / 10 | 0.13 KM |
Nearby Properties
| Address | Price | Distance |
|---|---|---|
| 47 White Acres Road | £ 228,250 | 0.01 KM |
| 41 White Acres Road | £ 500,000 | 0.01 KM |
| 25a White Acres Road | £ 472,500 | 0.01 KM |
| 45 White Acres Road | £ 230,000 | 0.01 KM |
| 39 White Acres Road | £ 245,000 | 0.01 KM |