Building Plot with Planning, New Hedges
By Birt & Co
£ 135,000
Reviews
3 out of 5 stars
Birt & Co says ..
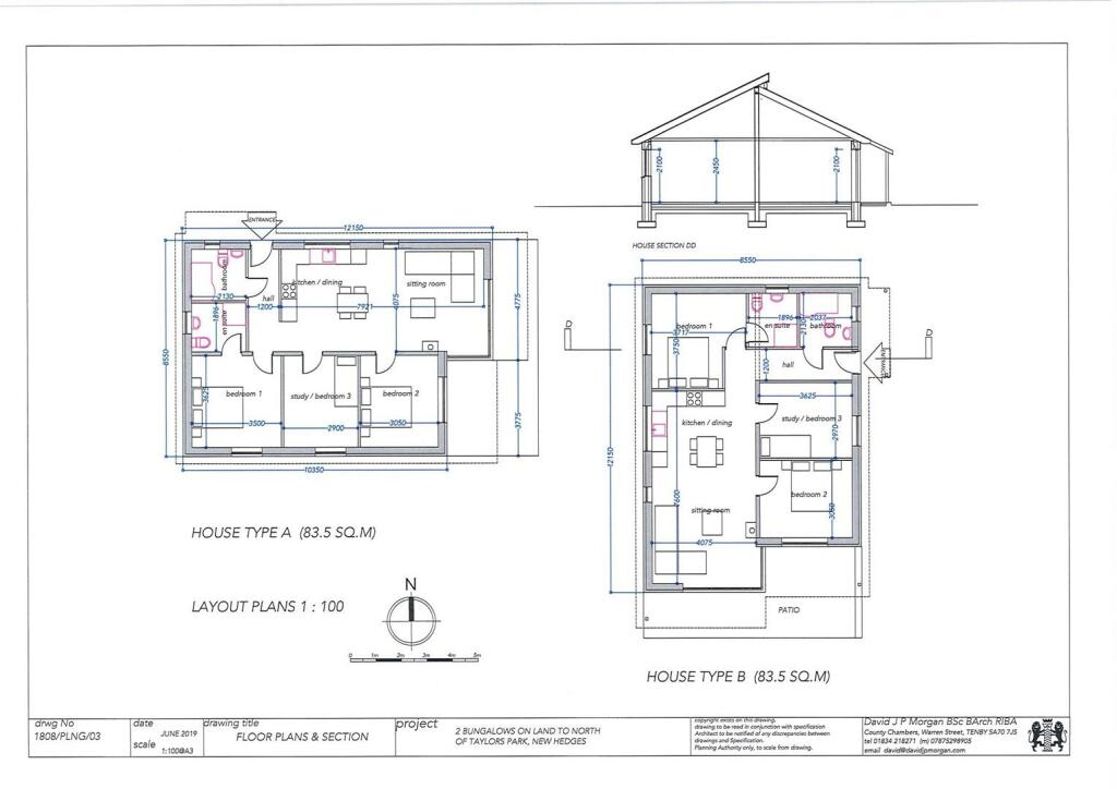
A rare opportunity to buy a *building plot* in the centre of New Hedges village with full detailed planning permission in place to build a modern/contemporary style three bedroom bungalow. The style of the build can be modified subject to the necessary planning considerations. Water...
Property Oracle says ..
This listing presents a building plot in New Hedges, Pembrokeshire, with approved plans for a contemporary three-bedroom bungalow. The location offers a balance of village tranquility and proximity to the amenities of Tenby, including a railway station for convenient travel. The design of the proposed bungalow is appealing, showcasing a modern architectural style. The provided images and plans show a well-conceived layout, including a spacious living area and three bedrooms. The plot itself appears adequately sized for the construction of the planned bungalow. The asking price reflects the convenience of the planning permission already in place; this removes the considerable cost and uncertainty associated with obtaining planning permission independently. However, the absence of specific square footage measurements for the land makes a precise comparison to other plots challenging. Overall, this presents a good opportunity to build a modern property in an attractive location, although buyers should verify the exact plot size and conduct additional site-specific checks prior to purchasing.
Therefore, we give this property 6 / 10. *Disclaimer: This is our option and does constitute a recommendation or financial advice. Do your own research. *
- Price
- 7
- Condition
- 9
- Location
- 7
- Land
- 4
- Bedrooms
- 0
- Bathrooms
- 0
- Sqft (est)
- 898.79
The heatmap indicates the level of crime in the area. The color of the heatmap indicates the crime severity and recency.
Metrics Year-on-Year
- Average area value
- 278,905.00 £Increased by 2.67 %
- Est sale value
- 247,167.25 £Increased by 50.27 %
- Average area rental value
- 800.00 £/moDecreased by 34.53 %
- Est letting value
- 0.00 £/mo
- Est rental Yield
- 3.44 %Decreased by 36.30 %
- Crime Rate
- 34.00 %Unchanged by 0.00 %
Agent Activity
Birt & Co created the listing.
Nearby Schools
| Name | Type | Ofsted | Distance |
|---|---|---|---|
| Saundersfoot C.P. School | Welsh Establishment | 2.24 KM | |
| St Teilos V.R.C. School | Welsh Establishment | 2.37 KM | |
| The Greenhill School | Welsh Establishment | 2.50 KM | |
| Stepaside C.P. School | Welsh Establishment | 4.15 KM | |
| St Florence V.C. School | Welsh Establishment | 7.83 KM |
Images
Nearby Streets
| Name | Average Price | Average Sqft | Distance |
|---|---|---|---|
| Rowston Drive | £ 295,000 | 0 | 0.00 KM |
| Brookdale | £ 280,000 | 0 | 0.00 KM |
| Old Narberth Road | £ 0 | 0 | 0.00 KM |
| St. Bride's Lane | £ 0 | 0 | 0.00 KM |
| Saint Bride's Lane | £ 0 | 0 | 0.00 KM |
Nearby Transport
| Name | NLC | TLC | Distance |
|---|---|---|---|
| Tenby | 4110 | TEN | 2.48 KM |
| Saundersfoot | 4108 | SDF | 3.11 KM |
| Kilgetty | 4083 | KGT | 4.16 KM |
| Penally | 4129 | PNA | 4.28 KM |
| Manorbier | 4094 | MRB | 9.97 KM |
Nearby Listings
| Address | Price | Type | Score | Distance |
|---|---|---|---|---|
| Building Plot with Planning, New Hedges | £ 135,000 | BUY | 6 / 10 | 0.00 KM |
| New Hedges, Tenby | £ 299,950 | BUY | 6 / 10 | 0.03 KM |
| Cross Park, Twycross, Saundersfoot | £ 450,000 | BUY | 7 / 10 | 0.07 KM |
| New Hedges, Tenby, SA70 | £ 295,000 | BUY | 6 / 10 | 0.08 KM |
| Twycross, Saundersfoot, Pembrokeshire, SA69 | £ 450,000 | BUY | 7 / 10 | 0.10 KM |
Nearby Properties
| Address | Price | Distance |
|---|---|---|
| 2 High Grove | £ 167,250 | 0.10 KM |
| 6 High Grove | £ 146,000 | 0.10 KM |
| 3 High Grove | £ 182,500 | 0.10 KM |
| 5 High Grove | £ 185,000 | 0.10 KM |
| 9 St Annes Drive | £ 229,950 | 0.15 KM |