Hunters says ..
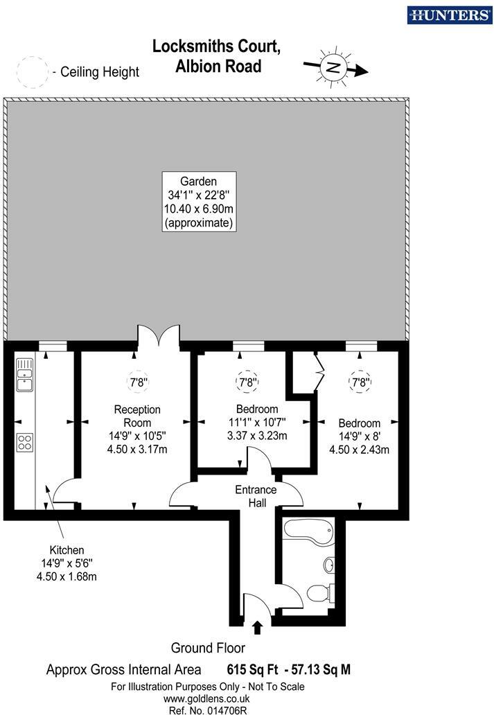
This stunning two bedroom garden apartment is presented in excellent decorative order and is set on the ground floor of a well maintained low rise building and offers 615 sq.ft. (57sq.m) of internal accommodation. Consisting of a 14'9 reception room with doors leading to a private west facing gar...
Property Oracle says ..
This two-bedroom apartment on Albion Road, Hackney, is presented as a well-maintained property in a desirable North London location. The interior photographs showcase a recently updated kitchen and bathroom, suggesting a modern and comfortable living space. The inclusion of a private garden is a significant advantage. The property’s proximity to well-regarded schools and several Overground stations enhances its appeal to families and commuters. The list price of £575,000 appears to be within the range of comparable properties in the area. However, a lack of precise square footage data for nearby sales prevents a definite determination of whether this represents exceptional value or just fair market value. A full professional survey would be necessary to thoroughly assess the property’s structural condition and potential maintenance requirements.
Therefore, we give this property 6 / 10. *Disclaimer: This is our option and does constitute a recommendation or financial advice. Do your own research. *
- Price
- 7
- Condition
- 8
- Location
- 7
- Land
- 4
- Bedrooms
- 2
- Bathrooms
- 1
- Sqft (est)
- 614.94
The heatmap indicates the level of crime in the area. The color of the heatmap indicates the crime severity and recency.
Metrics Year-on-Year
- Average area value
- 920,000.00 £Increased by 33.45 %
- Est sale value
- 559,595.40 £Increased by 8.98 %
- Average area rental value
- 2,550.00 £/moIncreased by 2.12 %
- Est letting value
- 1,229.88 £/moDecreased by 33.33 %
- Est rental Yield
- 3.33 %Decreased by 23.45 %
- Crime Rate
- 4.00 %Unchanged by 0.00 %
Agent Activity
Hunters created the listing.
Nearby Schools
| Name | Type | Ofsted | Distance |
|---|---|---|---|
| Stoke Newington School And Sixth Form | Community School | Good | 0.21 KM |
| Betty Layward Primary School | Community School | Good | 0.21 KM |
| Grasmere Primary School | Community School | Good | 0.35 KM |
| St Mary'S Church Of England Primary School, Stoke Newington | Voluntary Aided School | Good | 0.48 KM |
| The Garden School | Community Special School | Outstanding | 0.63 KM |
Images
Nearby Streets
| Name | Average Price | Average Sqft | Distance |
|---|---|---|---|
| Scholars' Place | £ 825,000 | 0 | 0.00 KM |
| Wordsworth Road | £ 0 | 0 | 0.00 KM |
| Green Lanes | £ 0 | 0 | 0.00 KM |
| Manor Road | £ 831,667 | 0 | 0.00 KM |
| Collins Road | £ 425,000 | 0 | 0.00 KM |
Nearby Transport
| Name | NLC | TLC | Distance |
|---|---|---|---|
| Stoke Newington | 6934 | SKW | 1.35 KM |
| Dalston Kingsland | 1429 | DLK | 1.35 KM |
| Canonbury | 1441 | CNN | 1.48 KM |
| Dalston Junction | 1443 | DLJ | 1.57 KM |
| Rectory Road | 6967 | REC | 1.60 KM |
Nearby Listings
| Address | Price | Type | Score | Distance |
|---|---|---|---|---|
| Albion Road, London, N16 | £ 575,000 | BUY | 6 / 10 | 0.00 KM |
| Albion Road, London, N16 | £ 800,000 | BUY | 4 / 10 | 0.02 KM |
| Albion Road, Stoke Newington, London, N16 | £ 750,000 | BUY | 5 / 10 | 0.04 KM |
| Noble Mews, Albion Road, N16 | £ 950,000 | BUY | 6 / 10 | 0.04 KM |
| Albion Road, London, N16 | £ 700,000 | BUY | 7 / 10 | 0.08 KM |
Nearby Properties
| Address | Price | Distance |
|---|---|---|
| 149a Albion Road | £ 432,000 | 0.04 KM |
| 145a Albion Road | £ 335,000 | 0.04 KM |
| 141 Albion Road | £ 405,000 | 0.04 KM |
| 145d Albion Road | £ 535,000 | 0.04 KM |
| 147b Albion Road | £ 517,500 | 0.04 KM |