Savills says ..
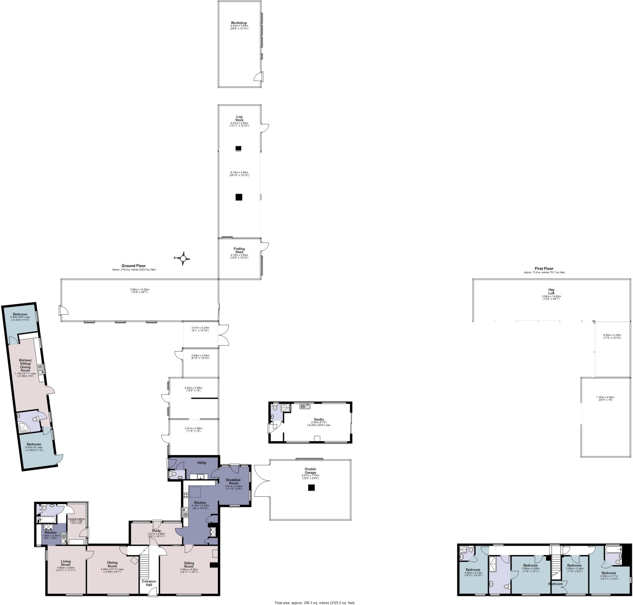
A Quintessential Country Home set in approximately 2.5 acres.
Property Oracle says ..
Therefore, we give this property 8 / 10. *Disclaimer: This is our option and does constitute a recommendation or financial advice. Do your own research. *
- Price
- 7
- Condition
- 9
- Location
- 8
- Land
- 9
- Bedrooms
- 6
- Bathrooms
- 6
The heatmap indicates the level of crime in the area. The color of the heatmap indicates the crime severity and recency.
Metrics Year-on-Year
- Average area value
- 622,500.00 £Decreased by 32.15 %
- Average area rental value
- 1,150.00 £/moDecreased by 16.79 %
- Est rental Yield
- 2.22 %Increased by 22.65 %
- Crime Rate
- 0.00 %
from 917,500.00 £
from 1,382.00 £/mo
from 1.81 %
from 0.00 %
Agent Activity
Savills created the listing.
Nearby Schools
| Name | Type | Ofsted | Distance |
|---|---|---|---|
| Payhembury Church Of England Primary School | Voluntary Controlled School | Good | 2.56 KM |
| Plymtree Church Of England Primary School | Voluntary Controlled School | Good | 3.20 KM |
| The Wildings | Other Independent Special School | 3.54 KM | |
| K-Hq | Other Independent Special School | Good | 3.94 KM |
| Broadhembury Church Of England Primary School | Voluntary Controlled School | Good | 4.60 KM |
Images
Nearby Streets
| Name | Average Price | Average Sqft | Distance |
|---|---|---|---|
| Raymonds | £ 895,000 | 0 | 0.00 KM |
| Colliton Barton Cottages | £ 0 | 0 | 0.00 KM |
| Colliton Cross | £ 0 | 0 | 0.00 KM |
Nearby Transport
| Name | NLC | TLC | Distance |
|---|---|---|---|
| Feniton | 5808 | FNT | 5.03 KM |
| Whimple | 5759 | WHM | 7.17 KM |
Nearby Listings
| Address | Price | Type | Score | Distance |
|---|---|---|---|---|
| Plymtree, Cullompton, Devon, EX15 | £ 925,000 | BUY | 8 / 10 | 0.00 KM |
| The Old Orchard, Payhembury | £ 920,000 | BUY | 8 / 10 | 1.32 KM |
| Payhembury, Honiton | £ 850,000 | BUY | 8 / 10 | 1.36 KM |
| Payhembury, Honiton, Devon, EX14 | £ 750,000 | BUY | 7 / 10 | 1.43 KM |
| Payhembury, Honiton, Devon | £ 800,000 | BUY | 7 / 10 | 1.43 KM |
Nearby Properties
| Address | Price | Distance |
|---|---|---|
| 2 Woodbeer Gardens | £ 309,000 | 1.86 KM |