Lee Road, Lynton
EX

Lee Road, Lynton

By Exmoor Property

£ 280,000

Reviews

3 out of 5 stars

Exmoor Property says ..

A three-bedroom house with a south-facing patio and garden, located a short level walk from the shops, amenities and attractions of Lynton, one of Exmoor's beautiful twin coastal villages.

Property Oracle says ..

This three-bedroom terraced house in Lynton, North Devon, presents a mixed bag of opportunities and challenges. Situated on Lee Road, its location is a strong selling point. Lynton & Lynmouth offers stunning coastal scenery and attracts tourists, contributing to a potentially healthy rental market or strong resale value once renovations are complete. A nearby well-regarded primary school enhances its family appeal.

However, the property’s condition requires significant attention. The interior photographs reveal a need for comprehensive refurbishment. The dated decor, wall damage, and carpeting all indicate the need for a substantial financial investment to bring the property up to modern standards.

The presence of a garden is a bonus, adding to the property’s overall livability and potential appeal. Though requiring maintenance, it adds a desirable outdoor space.

Overall, the property represents a project for a buyer willing to undertake renovations. While the location and potential of the land are attractive, buyers must realistically account for the renovation costs when assessing its value for money.

Therefore, we give this property 6 / 10. *Disclaimer: This is our option and does constitute a recommendation or financial advice. Do your own research. *

Price
7
Condition
4
Location
7
Land
6
Bedrooms
3
Bathrooms
1
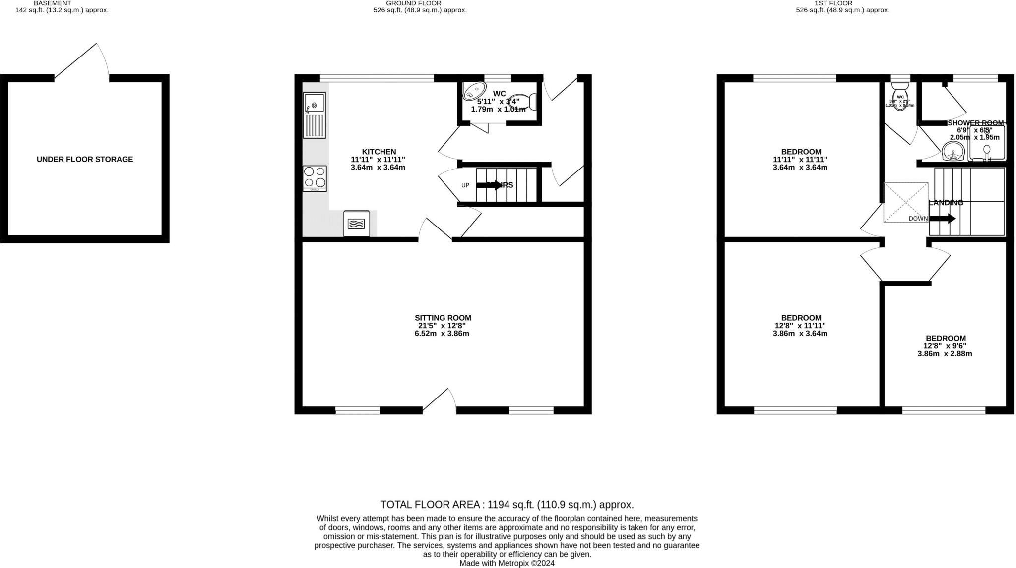
Sqft (est)
1,194.00

The heatmap indicates the level of crime in the area. The color of the heatmap indicates the crime severity and recency.

Metrics Year-on-Year

Average area value
661,000.00 £
Increased by 29.29 %
from 511,241.00 £
Est sale value
647,148.00 £
Increased by 47.28 %
from 439,392.00 £
Average area rental value
2,410.00 £/mo
Increased by 120.90 %
from 1,091.00 £/mo
Est letting value
1,194.00 £/mo
from 0.00 £/mo
Est rental Yield
4.38 %
Increased by 71.09 %
from 2.56 %
Crime Rate
103.00 %
Unchanged by 0.00 %
from 103.00 %

Agent Activity

  • Exmoor Property created the listing.

Nearby Schools

NameTypeOfstedDistance
Lynton Church Of England Primary SchoolVoluntary Aided SchoolGood0.37 KM
Parracombe Church Of England Primary SchoolVoluntary Controlled SchoolGood8.61 KM

Images

Photo 2 Photo 17 Photo 1 Photo 19 Photo 15 Photo 13 Photo 3 Photo 4 Photo 18 Photo 9 Photo 5 Photo 10 Photo 11 Photo 6 Photo 7 Photo 8 Photo 16 Photo 12 Photo 14

Nearby Streets

NameAverage PriceAverage SqftDistance
Cross Street £ 285,00000.00 KM
Queen Street £ 000.00 KM

Nearby Listings

AddressPriceTypeScoreDistance
Lee Road, Lynton £ 280,000BUY6 / 100.00 KM
Lee Road, Lynton £ 275,000BUY6 / 100.01 KM
Burvill Street, Lynton, Devon, EX35 £ 187,500BUY5 / 100.06 KM
Lee Road, Lynton £ 260,000BUY6 / 100.07 KM
Park Street, Lynton £ 375,000BUY6 / 100.07 KM

Nearby Properties

AddressPriceDistance
22 Lee Road £ 220,0000.07 KM
24 Lee Road £ 227,0000.07 KM
21 Lee Road £ 455,0000.07 KM
14 Park Street £ 215,0000.09 KM
Clifton House £ 279,0000.09 KM