Garfield Avenue, Bellshill, ML4
LA

Garfield Avenue, Bellshill, ML4

By Lanarkshire Law Estate Agents Limited

£ 285,000

Reviews

3 out of 5 stars

Lanarkshire Law Estate Agents Limited says ..

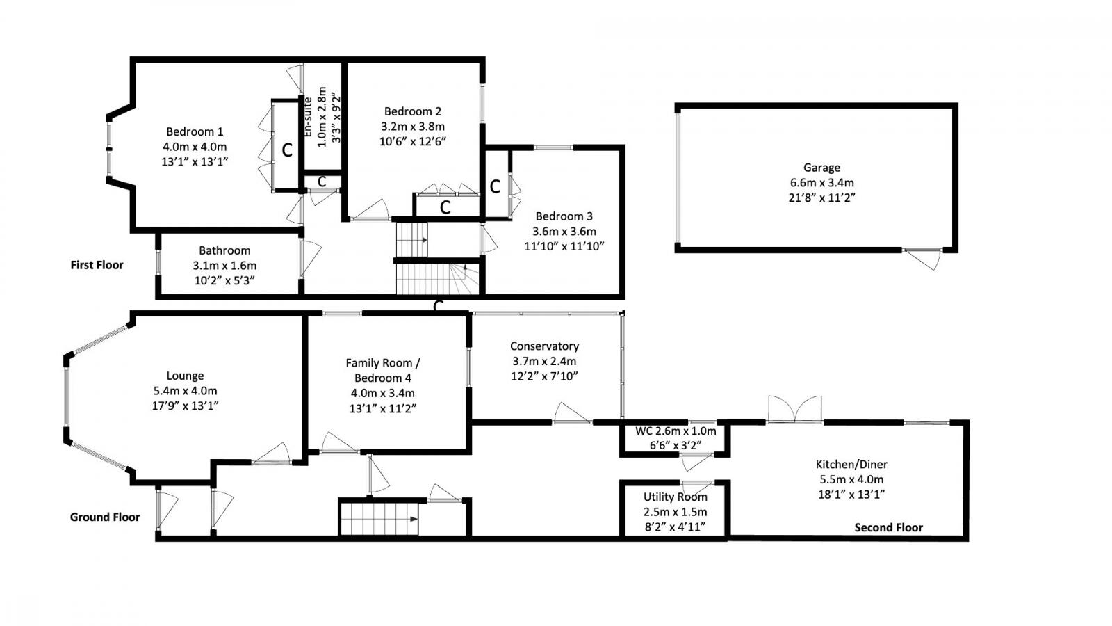
Lanarkshire Law Estate Agents are delighted to present this lovely four-bedroom Victorian sandstone semi-detached villa, ideally positioned in the highly sought-after Mossend area. Perfectly placed within walking distance of local amenities and excellent schooling, this property seamlessly combin...

Property Oracle says ..

This is a well-presented semi-detached property in Bellshill, offering four bedrooms and three bathrooms. The house benefits from a modern kitchen, a conservatory, and a well-maintained garden with a decked area. The property’s location provides good access to local amenities and transportation links, making it suitable for families and commuters. While the asking price is slightly above the average for the area, the property’s size, condition, and features justify the cost. Overall, this property offers comfortable and stylish living in a convenient location.

Therefore, we give this property 7 / 10. *Disclaimer: This is our option and does constitute a recommendation or financial advice. Do your own research. *

Price
6
Condition
8
Location
7
Land
7
Bedrooms
4
Bathrooms
3
Sqft (est)
1,517.17

The heatmap indicates the level of crime in the area. The color of the heatmap indicates the crime severity and recency.

Metrics Year-on-Year

Average area value
204,776.00 £
Decreased by 22.85 %
from 265,442.00 £
Est sale value
474,874.21 £
Increased by 70.11 %
from 279,159.28 £
Average area rental value
638.00 £/mo
Decreased by 23.32 %
from 832.00 £/mo
Est letting value
0.00 £/mo
from 0.00 £/mo
Est rental Yield
3.74 %
Decreased by 0.53 %
from 3.76 %
Crime Rate
0.00 %
from 0.00 %

Agent Activity

  • Lanarkshire Law Estate Agents Limited created the listing.

Images

4 Bedroom Semi Detached For Sale Gallery Gallery Gallery Gallery Gallery Gallery Gallery Gallery Gallery Gallery Gallery Gallery Gallery Gallery Gallery Gallery Gallery Gallery Gallery Gallery Gallery Gallery Gallery Gallery Gallery Gallery Gallery

Nearby Streets

NameAverage PriceAverage SqftDistance
Beechwood Gardens £ 157,50000.00 KM
Unitas Road £ 80,25000.00 KM
Rosevale Crescent £ 52,00000.00 KM
Blackwoods Crescent £ 000.00 KM
Hawthorn Gardens £ 108,00000.00 KM

Nearby Transport

NameNLCTLCDistance
Bellshill9714BLH1.93 KM
Motherwell9691MTH3.16 KM
Holytown9738HLY3.69 KM
Airbles9695AIR4.07 KM
Whifflet9753WFF4.25 KM

Nearby Listings

AddressPriceTypeScoreDistance
Garfield Avenue, Bellshill, ML4 £ 285,000BUY7 / 100.00 KM
16 Ella Gardens, Bellshill, ML4 2NT £ 265,000BUY7 / 100.15 KM
Garfield Avenue, Bellshill, ML4 £ 139,995BUY6 / 100.26 KM
Garfield Avenue, Bellshill £ 175,000BUY7 / 100.28 KM
Clyde Drive, Bellshill, ML4 £ 135,000BUY6 / 100.33 KM