Period Homes says ..
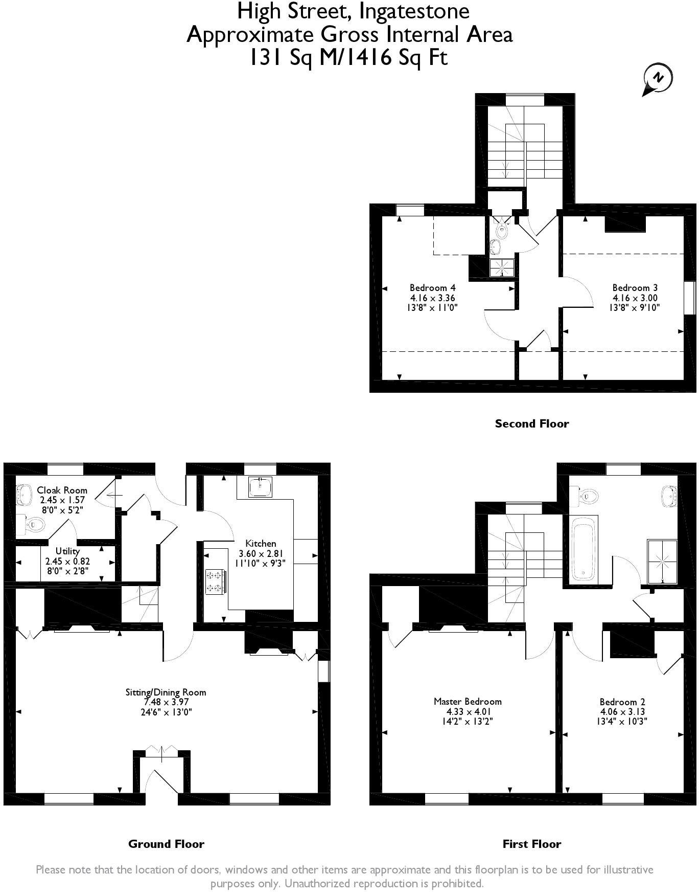
Guide Price £650,000 - £675,000. An iconic Grade II listed period residence, The Old Surgery stands proudly in the centre of Ingatestone village, directly beside St. Edmund & St. Mary Church and benefitting from outstanding views of its historic grounds. Four bedrooms, two bathrooms ...
Property Oracle says ..
Therefore, we give this property 7 / 10. *Disclaimer: This is our option and does constitute a recommendation or financial advice. Do your own research. *
- Price
- 8
- Condition
- 8
- Location
- 9
- Land
- 5
- Bedrooms
- 4
- Bathrooms
- 2
- Sqft (est)
- 1,100.07
The heatmap indicates the level of crime in the area. The color of the heatmap indicates the crime severity and recency.
Metrics Year-on-Year
- Average area value
- 651,912.00 £Decreased by 11.74 %
- Est sale value
- 804,151.17 £Increased by 53.57 %
- Average area rental value
- 2,000.00 £/moIncreased by 21.07 %
- Est letting value
- 2,200.14 £/moIncreased by 100.00 %
- Est rental Yield
- 3.68 %Increased by 37.31 %
- Crime Rate
- 135.00 %Unchanged by 0.00 %
from 738,601.00 £
from 523,633.32 £
from 1,652.00 £/mo
from 1,100.07 £/mo
from 2.68 %
from 135.00 %
Agent Activity
Period Homes created the listing.
Nearby Schools
| Name | Type | Ofsted | Distance |
|---|---|---|---|
| Anglo European School | Academy Converter | Good | 0.23 KM |
| Ingatestone Infant School | Community School | Outstanding | 0.86 KM |
| Ingatestone And Fryerning Church Of England Voluntary Aided Junior School | Voluntary Aided School | Good | 1.01 KM |
| Margaretting Church Of England Voluntary Controlled Primary School | Academy Converter | 3.21 KM | |
| Mountnessing Church Of England Primary School | Academy Converter | 4.08 KM |
Images
Nearby Streets
| Name | Average Price | Average Sqft | Distance |
|---|---|---|---|
| Mellor Close | £ 199,995 | 0 | 0.00 KM |
| Hall Lane | £ 0 | 0 | 0.00 KM |
| Chantry Drive | £ 0 | 0 | 0.00 KM |
| Poplar Close | £ 0 | 0 | 0.00 KM |
| Heybridge Link | £ 0 | 0 | 0.00 KM |
Nearby Transport
| Name | NLC | TLC | Distance |
|---|---|---|---|
| Ingatestone | 6882 | INT | 0.50 KM |
| Billericay | 6871 | BIC | 5.94 KM |
| Shenfield | 6888 | SNF | 7.65 KM |
Nearby Listings
| Address | Price | Type | Score | Distance |
|---|---|---|---|---|
| High Street, Ingatestone | £ 650,000 | BUY | 7 / 10 | 0.00 KM |
| The Old Surgery, High Street, Ingatestone | £ 650,000 | BUY | 6 / 10 | 0.02 KM |
| 23 High Street, Ingatestone, CM4 | £ 425,000 | BUY | 6 / 10 | 0.02 KM |
| Star Mews, Ingatestone, Essex | £ 300,000 | BUY | 7 / 10 | 0.04 KM |
| Stonegate, The Limes, Ingatestone | £ 525,000 | BUY | 6 / 10 | 0.08 KM |
Nearby Properties
| Address | Price | Distance |
|---|---|---|
| 86a High Street | £ 187,000 | 0.02 KM |
| 74a High Street | £ 194,000 | 0.03 KM |
| 86 High Street | £ 80,500 | 0.03 KM |
| 78 High Street | £ 867,500 | 0.03 KM |
| 1 Star Lane | £ 537,500 | 0.06 KM |