HA
Redesdale Gardens, Leeds, West Yorkshire, UK, LS16
By Hardisty & co
£ 165,000
Reviews
3 out of 5 stars
Hardisty & co says ..
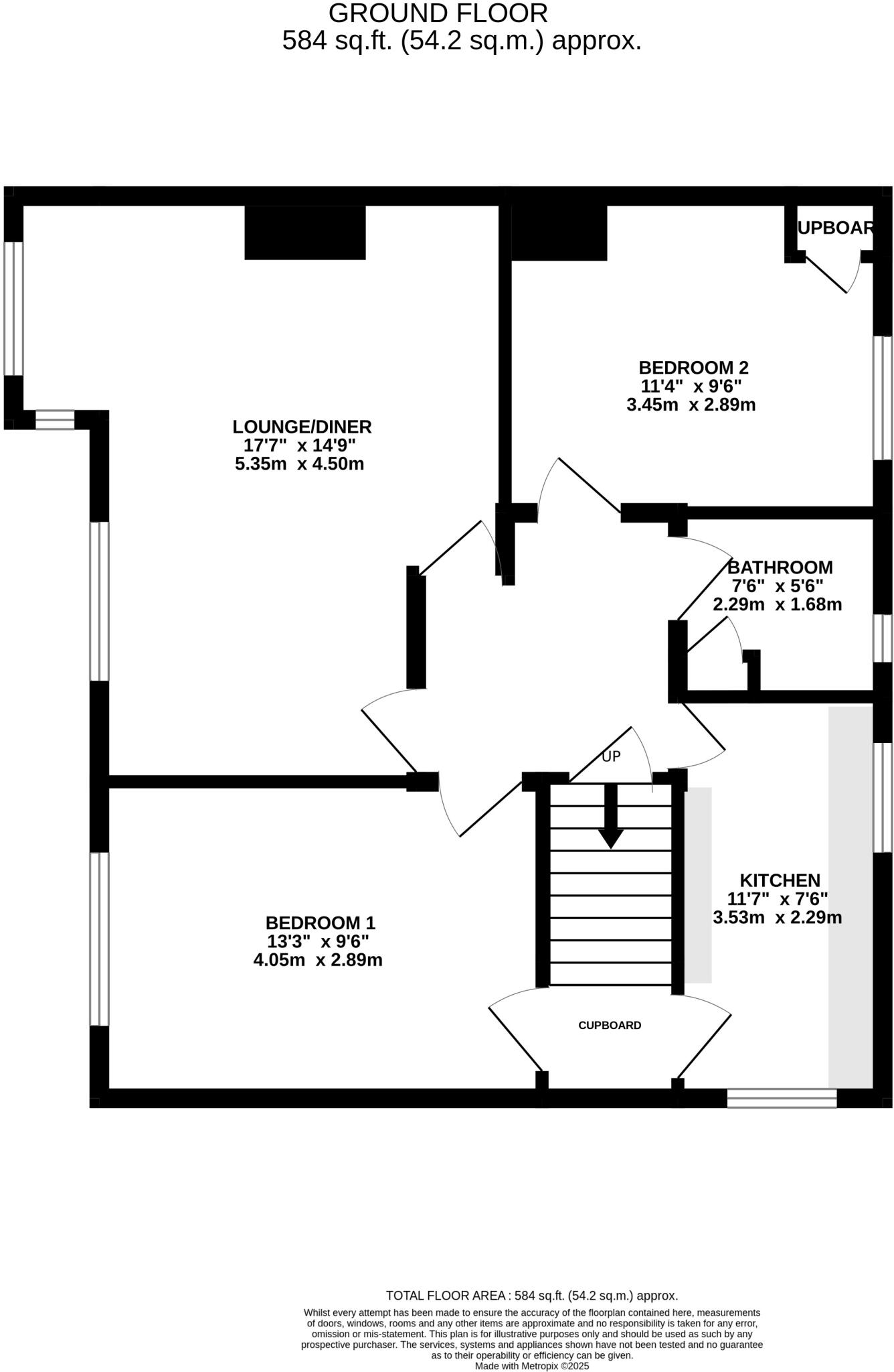
A well-presented two double bedroom first floor apartment providing spacious accommodation throughout and situated in a popular and convenient location. The property is ideally located close to local shopping and transport facilities and offers communal outdoor areas and on street parking. ...
Property Oracle says ..
Therefore, we give this property 7 / 10. *Disclaimer: This is our option and does constitute a recommendation or financial advice. Do your own research. *
- Price
- 8
- Condition
- 8
- Location
- 7
- Land
- 6
- Bedrooms
- 2
- Bathrooms
- 1
- Sqft (est)
- 584.00
The heatmap indicates the level of crime in the area. The color of the heatmap indicates the crime severity and recency.
Metrics Year-on-Year
- Average area value
- 444,966.00 £Increased by 5.54 %
- Est sale value
- 262,800.00 £Increased by 32.35 %
- Average area rental value
- 1,480.00 £/moDecreased by 0.34 %
- Est letting value
- 584.00 £/moUnchanged by 0.00 %
- Est rental Yield
- 3.99 %Decreased by 5.67 %
- Crime Rate
- 10.00 %Unchanged by 0.00 %
from 421,604.00 £
from 198,560.00 £
from 1,485.00 £/mo
from 584.00 £/mo
from 4.23 %
from 10.00 %
Agent Activity
Hardisty & co created the listing.
Nearby Schools
| Name | Type | Ofsted | Distance |
|---|---|---|---|
| Ireland Wood Children'S Centre | Children's Centre | 0.89 KM | |
| Holy Name Catholic Voluntary Academy | Academy Sponsor Led | Good | 0.92 KM |
| Ireland Wood Primary School | Foundation School | Good | 0.94 KM |
| Iveson Primary School | Foundation School | Good | 1.26 KM |
| Ralph Thoresby School | Foundation School | Good | 1.40 KM |
Images
Nearby Streets
| Name | Average Price | Average Sqft | Distance |
|---|---|---|---|
| St Helen's Lane | £ 1,037,500 | 0 | 0.00 KM |
| Woodlands Grove | £ 435,000 | 0 | 0.00 KM |
| Chestnut Drive | £ 0 | 0 | 0.00 KM |
| The Meadows | £ 1,150,000 | 0 | 0.00 KM |
| Holt Avenue | £ 0 | 0 | 0.00 KM |
Nearby Transport
| Name | NLC | TLC | Distance |
|---|---|---|---|
| Headingley | 8498 | HDY | 3.63 KM |
| Horsforth | 8499 | HRS | 3.71 KM |
| Kirkstall Forge | 6544 | KLF | 4.12 KM |
| Burley Park | 8500 | BUY | 4.77 KM |
| Bramley (West Yorkshire) | 8496 | BLE | 6.72 KM |
Nearby Listings
| Address | Price | Type | Score | Distance |
|---|---|---|---|---|
| Redesdale Gardens, Leeds, West Yorkshire, UK, LS16 | £ 165,000 | BUY | 7 / 10 | 0.00 KM |
| Redesdale Gardens, Leeds | £ 170,000 | BUY | 6 / 10 | 0.02 KM |
| Rothbury Gardens, Adel, Leeds | £ 165,000 | BUY | 7 / 10 | 0.06 KM |
| Redesdale Gardens, Leeds, West Yorkshire | £ 160,000 | BUY | 7 / 10 | 0.09 KM |
| New Adel Lane, Leeds, West Yorkshire | £ 160,000 | BUY | 6 / 10 | 0.10 KM |
Nearby Properties
| Address | Price | Distance |
|---|---|---|
| 90 New Adel Lane | £ 92,500 | 0.10 KM |
| 76 New Adel Lane | £ 141,256 | 0.10 KM |
| 74 New Adel Lane | £ 120,000 | 0.10 KM |
| 68 New Adel Lane | £ 142,000 | 0.10 KM |
| 86 New Adel Lane | £ 115,000 | 0.10 KM |