Dukes Place Cottages, Mereworth Road, West Peckham, Maidstone, Kent, ME18
By Jackson-Stops
£ 1,595,000
Reviews
3 out of 5 stars
Jackson-Stops says ..
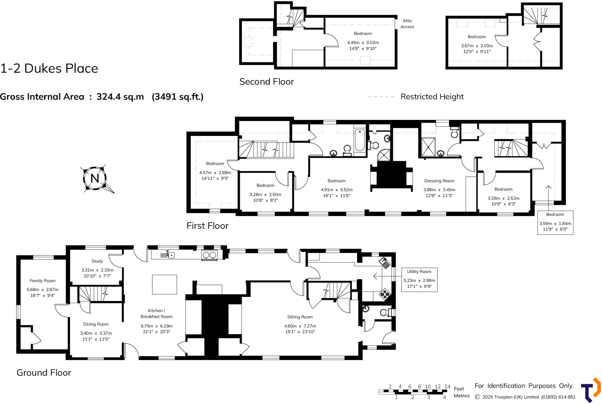
Distinguished period residence, offering over 3,400 sq ft with original features and stylish interiors. In a rural setting yet conveniently close to the village and its amenities, the property is framed by beautifully landscaped gardens. ...
Property Oracle says ..
This is a substantial detached property located in West Peckham, Maidstone, Kent. The location benefits from nearby schools and transportation. From the images, the property appears to be in good condition, showcasing a blend of traditional features and modern updates. The property includes a well-maintained garden. Considering the size, condition, and location, the price appears reasonable.
Therefore, we give this property 7 / 10. *Disclaimer: This is our option and does constitute a recommendation or financial advice. Do your own research. *
- Price
- 7
- Condition
- 8
- Location
- 7
- Land
- 8
- Bedrooms
- 7
- Bathrooms
- 0
- Sqft (est)
- 3,491.81
The heatmap indicates the level of crime in the area. The color of the heatmap indicates the crime severity and recency.
Metrics Year-on-Year
- Average area value
- 259,821.00 £Increased by 8.05 %
- Est sale value
- 1,106,903.77 £Increased by 23.83 %
- Average area rental value
- 1,011.00 £/moIncreased by 5.53 %
- Est letting value
- 3,491.81 £/moUnchanged by 0.00 %
- Est rental Yield
- 4.67 %Decreased by 2.30 %
- Crime Rate
- 9.00 %Unchanged by 0.00 %
Agent Activity
Jackson-Stops created the listing.
Nearby Schools
| Name | Type | Ofsted | Distance |
|---|---|---|---|
| Mereworth Community Primary School | Community School | Good | 1.47 KM |
| Hadlow Primary School | Community School | Good | 3.71 KM |
| Hadlow College | Further Education | Outstanding | 4.36 KM |
| East Peckham Primary School | Community School | Good | 4.42 KM |
| Hadlow Rural Community School | Free Schools | Good | 4.51 KM |
Images
Nearby Streets
| Name | Average Price | Average Sqft | Distance |
|---|---|---|---|
| Forge Lane | £ 2,175,000 | 0 | 0.00 KM |
| MR612 | £ 0 | 0 | 0.00 KM |
| MR360 | £ 0 | 0 | 0.00 KM |
| Swanton Road | £ 500,000 | 0 | 0.00 KM |
| Matthews Lane | £ 0 | 0 | 0.00 KM |
Nearby Transport
| Name | NLC | TLC | Distance |
|---|---|---|---|
| Yalding | 5232 | YAL | 6.32 KM |
| Wateringbury | 5241 | WTR | 6.92 KM |
| Beltring | 5227 | BEG | 6.93 KM |
| Borough Green And Wrotham | 5130 | BRG | 7.68 KM |
| West Malling | 5129 | WMA | 8.04 KM |
Nearby Listings
| Address | Price | Type | Score | Distance |
|---|---|---|---|---|
| Dukes Place Cottages, Mereworth Road, West Peckham, Maidstone, Kent, ME18 | £ 1,595,000 | BUY | 7 / 10 | 0.00 KM |
| West Peckham, ME18 | £ 1,650,000 | BUY | 7 / 10 | 0.10 KM |
| The Green, West Peckham, Maidstone, Kent, ME18 | £ 1,500,000 | BUY | 7 / 10 | 0.60 KM |
| Forge Lane, West Peckham, Maidstone | £ 850,000 | BUY | 7 / 10 | 0.68 KM |
| The Green, West Peckham | £ 1,350,000 | BUY | 7 / 10 | 0.73 KM |
Nearby Properties
| Address | Price | Distance |
|---|---|---|
| Meadow House | £ 880,000 | 0.11 KM |
| Dukes Place | £ 2,600,000 | 0.11 KM |
| The Brambles | £ 420,000 | 0.11 KM |
| Ladyfields | £ 500,000 | 0.11 KM |
| Church View | £ 420,000 | 0.46 KM |