TH
Malthouse Crescent, Heacham, King's Lynn, Norfolk, PE31
By The Norfolk Agents
£ 475,000
Reviews
3 out of 5 stars
The Norfolk Agents says ..
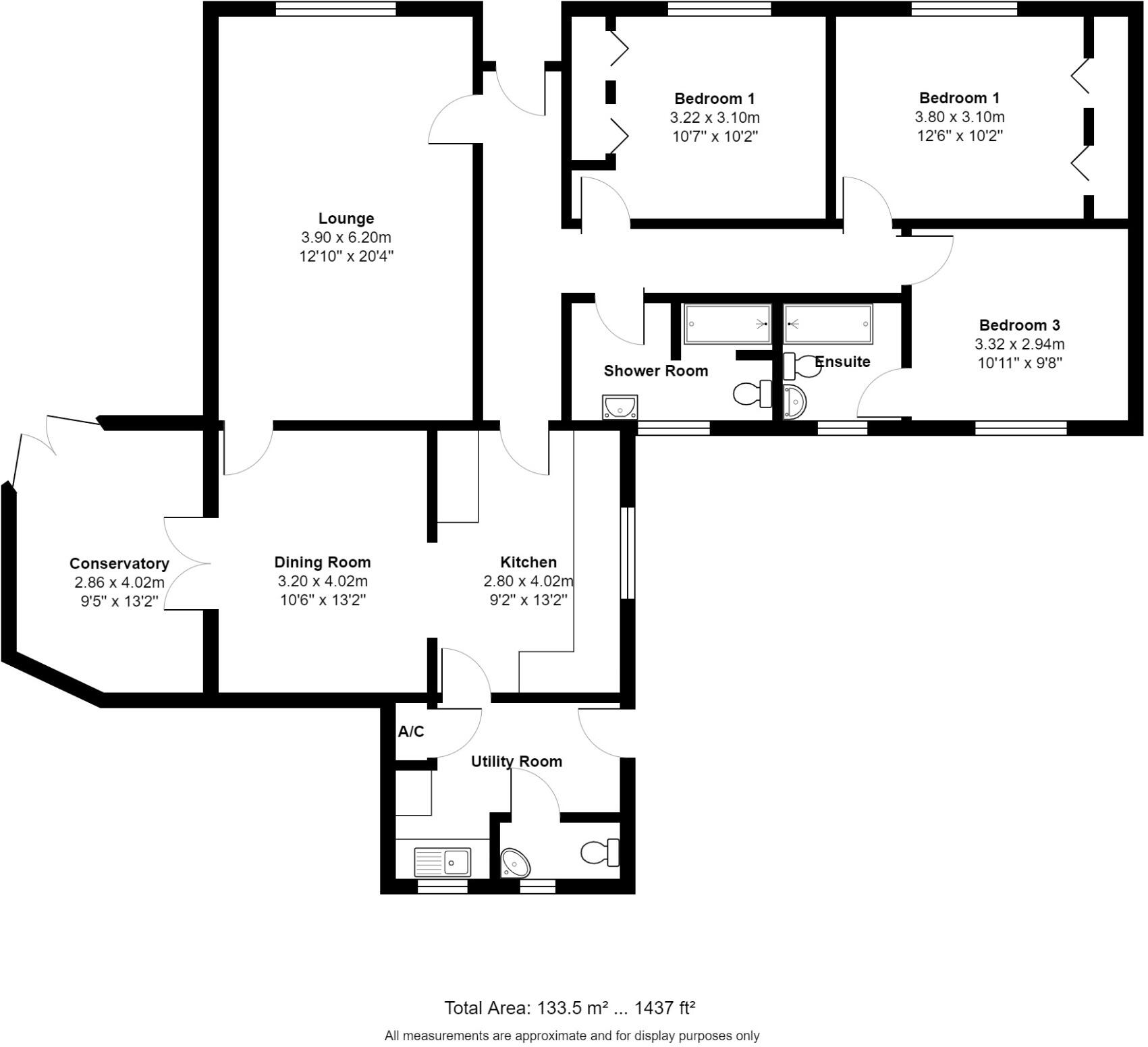
A spacious bungalow with well-proportioned accommodation, occupying a mature plot of wrap around gardens.
Property Oracle says ..
Therefore, we give this property 7 / 10. *Disclaimer: This is our option and does constitute a recommendation or financial advice. Do your own research. *
- Price
- 6
- Condition
- 8
- Location
- 7
- Land
- 8
- Bedrooms
- 3
- Bathrooms
- 2
- Lot (est)
- 1,437.00
The heatmap indicates the level of crime in the area. The color of the heatmap indicates the crime severity and recency.
Metrics Year-on-Year
- Average area value
- 245,074.00 £Decreased by 15.93 %
- Average area rental value
- 1,254.00 £/moDecreased by 5.43 %
- Est rental Yield
- 6.14 %Increased by 12.45 %
- Crime Rate
- 22.00 %Unchanged by 0.00 %
from 291,529.00 £
from 1,326.00 £/mo
from 5.46 %
from 22.00 %
Agent Activity
The Norfolk Agents created the listing.
Nearby Schools
| Name | Type | Ofsted | Distance |
|---|---|---|---|
| Heacham Infant And Nursery School | Academy Converter | Good | 0.42 KM |
| Heacham Junior School | Academy Converter | Good | 0.46 KM |
| Hunstanton Primary School | Foundation School | Good | 3.01 KM |
| Smithdon High School | Academy Sponsor Led | Requires improvement | 3.40 KM |
| Snettisham Primary School | Academy Sponsor Led | Good | 3.45 KM |
Images
Nearby Streets
| Name | Average Price | Average Sqft | Distance |
|---|---|---|---|
| Malthouse Close | £ 0 | 0 | 0.00 KM |
| The Drift | £ 0 | 0 | 0.00 KM |
| Blackthorn Close | £ 0 | 0 | 0.00 KM |
Nearby Listings
| Address | Price | Type | Score | Distance |
|---|---|---|---|---|
| Malthouse Crescent, Heacham, King's Lynn, Norfolk, PE31 | £ 475,000 | BUY | 7 / 10 | 0.00 KM |
| Collins Lane, Heacham | £ 550,000 | BUY | 7 / 10 | 0.10 KM |
| Heacham | £ 275,000 | BUY | 7 / 10 | 0.10 KM |
| Lords Lane, Heacham | £ 365,000 | BUY | 8 / 10 | 0.14 KM |
| Benstead Close, Heacham, King's Lynn, Norfolk, PE31 | £ 290,000 | BUY | Unknown | 0.14 KM |
Nearby Properties
| Address | Price | Distance |
|---|---|---|
| 16 Malthouse Crescent | £ 37,000 | 0.07 KM |
| 13 Malthouse Crescent | £ 114,950 | 0.07 KM |
| 11 Malthouse Crescent | £ 150,000 | 0.07 KM |
| 10 Malthouse Crescent | £ 179,950 | 0.08 KM |
| 4a Malthouse Crescent | £ 97,500 | 0.08 KM |