17 Danefield Road
CR

17 Danefield Road

By Craven & Company

£ 560,000

Reviews

3 out of 5 stars

Craven & Company says ..

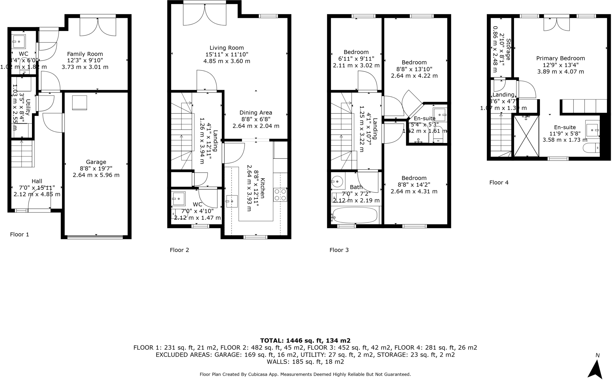
Step into elegance with this modern 5-bedroom, 3-bathroom townhouse, thoughtfully designed for modern families and professionals seeking both comfort and style. Spanning multiple floors, this spacious home features: Five generously sized bedrooms. Three sleek bathrooms with ...

Property Oracle says ..

17 Danefield Road is a terraced property located in the desirable Priory area of Trafford, Greater Manchester. The house features five bedrooms and three bathrooms, offering ample space for a family. The property is in excellent condition, showcasing modern interiors and well-maintained living spaces. The location is advantageous due to its proximity to highly-rated schools and convenient transportation links. The property includes a private outdoor decked area, enhancing its appeal. While the asking price of £560,000 is slightly above the average price per square foot for the area, the property’s condition and features justify the valuation. Overall, this property presents a well-rounded offering in a sought-after location, making it an attractive option for potential buyers looking for a modern, family-friendly home with good access to amenities and transport links.

Therefore, we give this property 7 / 10. *Disclaimer: This is our option and does constitute a recommendation or financial advice. Do your own research. *

Price
6
Condition
9
Location
7
Land
6
Bedrooms
5
Bathrooms
3
Sqft (est)
1,657.89

The heatmap indicates the level of crime in the area. The color of the heatmap indicates the crime severity and recency.

Metrics Year-on-Year

Average area value
456,240.00 £
Increased by 13.67 %
from 401,367.00 £
Est sale value
611,761.41 £
Decreased by 7.29 %
from 659,840.22 £
Average area rental value
1,149.00 £/mo
Decreased by 10.09 %
from 1,278.00 £/mo
Est letting value
0.00 £/mo
Decreased by 100.00 %
from 1,657.89 £/mo
Est rental Yield
3.02 %
Decreased by 20.94 %
from 3.82 %
Crime Rate
0.00 %
from 0.00 %

Agent Activity

  • Craven & Company created the listing.

Nearby Schools

NameTypeOfstedDistance
St Matthew'S Cofe Primary SchoolVoluntary Controlled SchoolGood1.00 KM
Stretford Children'S CentreChildren's Centre1.04 KM
Lostock & Gorsehill Children'S CentreChildren's Centre Linked Site1.04 KM
Springfield Primary SchoolCommunity SchoolOutstanding1.08 KM
St Joseph'S Catholic Primary SchoolVoluntary Aided SchoolOutstanding1.16 KM

Images

Entrance Kitchen Kitchen Lounge Lounge Living area Master Bedroom Master Bedroom Master ensuite double bedroom double bedroom double bedroom En suite Stairs/Landing Bedroom WC Entrance Bedroom/living ar... WC Patio Patio Outside Front of property... Front of property Gated Off road parking Off road parking Charging port Ensuite master Family bathroom

Nearby Streets

NameAverage PriceAverage SqftDistance
Chester Road £ 000.00 KM
Bradley Lane £ 230,00000.00 KM
Bank Street £ 220,00000.00 KM
Priory Close £ 730,00000.00 KM
Brook Street £ 000.00 KM

Nearby Transport

NameNLCTLCDistance
Trafford Park2969TRA2.63 KM
Humphrey Park2937HUP2.74 KM
Manchester United Football Ground2996MUF4.30 KM
Urmston2938URM4.76 KM
Navigation Road2940NVR5.15 KM

Nearby Listings

AddressPriceTypeScoreDistance
17 Danefield Road £ 560,000BUY7 / 100.00 KM
Dane Road, Sale £ 255,000BUYUnknown0.09 KM
Dane Road, Sale £ 260,000BUY6 / 100.09 KM
Dane Road, Sale £ 385,000BUY6 / 100.10 KM
Dudley Road, Sale, M33 £ 325,000BUY6 / 100.14 KM

Nearby Properties

AddressPriceDistance
1 Danefield Road £ 375,0000.00 KM
9 Wellington Close £ 132,0000.07 KM
4 Wellington Close £ 152,9500.07 KM
10 Wellington Close £ 150,0000.07 KM
2 Wellington Close £ 169,9500.07 KM