Station Road, Parkstone, Poole, Dorset, BH14
By Austin & Wyatt
£ 190,000
Reviews
2 out of 5 stars
Austin & Wyatt says ..
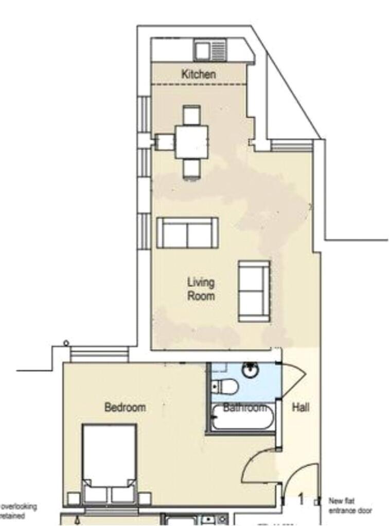
Spacious & Impressive Flat in Prime Ashley Cross Location Step into this truly exceptional and spacious one-bedroom flat, perfectly located in the heart of the highly sought-after and affluent area of Ashley Cross. Situated on Station Road, directly opposite the charming Ashley Cro...
Property Oracle says ..
This is a one-bedroom flat located on Station Road in Parkstone, Poole. The property appears to be in good condition, with a modern interior. It is situated in a location with convenient access to transportation and schools. The asking price of £190,000 seems reasonable when compared to the average property price in the area.
Therefore, we give this property 5 / 10. *Disclaimer: This is our option and does constitute a recommendation or financial advice. Do your own research. *
- Price
- 7
- Condition
- 8
- Location
- 7
- Land
- 1
- Bedrooms
- 1
- Bathrooms
- 1
The heatmap indicates the level of crime in the area. The color of the heatmap indicates the crime severity and recency.
Metrics Year-on-Year
- Average area value
- 463,333.00 £Decreased by 16.40 %
- Average area rental value
- 1,313.00 £/moDecreased by 24.06 %
- Est rental Yield
- 3.40 %Decreased by 9.09 %
- Crime Rate
- 20.00 %Unchanged by 0.00 %
Agent Activity
Austin & Wyatt created the listing.
Nearby Schools
| Name | Type | Ofsted | Distance |
|---|---|---|---|
| Baden-Powell And St Peter'S Church Of England Junior School | Academy Converter | Good | 0.31 KM |
| Ted Webster Children Centre | Children's Centre | 0.80 KM | |
| The Bournemouth And Poole College | Further Education | Requires improvement | 1.18 KM |
| Ocean Academy Poole | Academy Sponsor Led | Good | 1.42 KM |
| Livingstone Road Infant School | Academy Converter | 1.45 KM |
Images
Nearby Streets
| Name | Average Price | Average Sqft | Distance |
|---|---|---|---|
| Waterford Close | £ 550,000 | 0 | 0.00 KM |
| Seaview Roundabout | £ 0 | 0 | 0.00 KM |
| Crown Close | £ 0 | 0 | 0.00 KM |
| Blackburn Road | £ 0 | 0 | 0.00 KM |
| Fairview Park | £ 375,000 | 0 | 0.00 KM |
Nearby Transport
| Name | NLC | TLC | Distance |
|---|---|---|---|
| Parkstone (Dorset) | 5882 | PKS | 0.37 KM |
| Branksome | 5875 | BSM | 3.51 KM |
| Poole | 5883 | POO | 3.57 KM |
| Hamworthy | 5940 | HAM | 7.53 KM |
| Bournemouth | 5876 | BMH | 9.61 KM |
Nearby Listings
| Address | Price | Type | Score | Distance |
|---|---|---|---|---|
| Station Road, Parkstone, Poole, Dorset, BH14 | £ 210,000 | BUY | 6 / 10 | 0.00 KM |
| Station Road, Parkstone, Poole, Dorset, BH14 | £ 190,000 | BUY | 5 / 10 | 0.00 KM |
| Wessex Road, Ashley Cross, Poole, Dorset, BH14 | £ 375,000 | BUY | 6 / 10 | 0.04 KM |
| Commercial Road, Poole, Dorset, BH14 | £ 185,000 | BUY | 6 / 10 | 0.06 KM |
| Approach Road, Poole, Dorset, BH14 | £ 450,000 | BUY | 7 / 10 | 0.09 KM |
Nearby Properties
| Address | Price | Distance |
|---|---|---|
| 20 Station Road | £ 257,000 | 0.01 KM |
| 30b Station Road | £ 180,500 | 0.01 KM |
| 5 Wessex Road | £ 330,000 | 0.05 KM |
| 17 Wessex Road | £ 317,500 | 0.05 KM |
| 14 Wessex Road | £ 235,000 | 0.05 KM |