Cromwell Crescent, Kensington, London, SW5
By Foxtons
£ 1,125,000
Reviews
3 out of 5 stars
Foxtons says ..
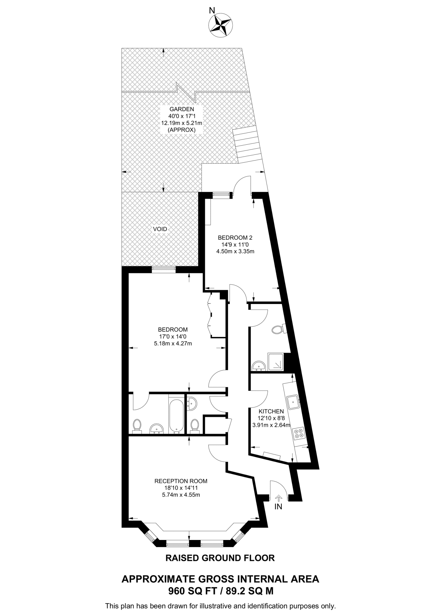
This lovely 2 bedroom flat boasts a spacious and light reception room, a main bedroom with en suite, smart eat-in kitchen and direct access to a charming private garden.
Property Oracle says ..
This is a well-presented two-bedroom flat in a sought-after Kensington location. The property is in good condition and benefits from a garden. The price appears to be in line with similar properties in the area. The flat is located close to local amenities, transportation links, and schools, making it an ideal purchase for professionals or families. Overall, this property represents a good investment opportunity.
Therefore, we give this property 7 / 10. *Disclaimer: This is our option and does constitute a recommendation or financial advice. Do your own research. *
- Price
- 7
- Condition
- 8
- Location
- 9
- Land
- 6
- Bedrooms
- 2
- Bathrooms
- 2
- Sqft (est)
- 960.14
The heatmap indicates the level of crime in the area. The color of the heatmap indicates the crime severity and recency.
Metrics Year-on-Year
- Average area value
- 1,716,071.00 £Decreased by 29.21 %
- Est sale value
- 1,723,451.30 £Decreased by 1.64 %
- Average area rental value
- 3,757.00 £/moIncreased by 47.28 %
- Est letting value
- 2,880.42 £/moIncreased by 200.00 %
- Est rental Yield
- 2.63 %Increased by 108.73 %
- Crime Rate
- 10.00 %Unchanged by 0.00 %
Agent Activity
Foxtons created the listing.
Nearby Schools
| Name | Type | Ofsted | Distance |
|---|---|---|---|
| Snowflake School | Other Independent Special School | Outstanding | 0.18 KM |
| St Barnabas And St Philip'S Cofe Primary School | Voluntary Aided School | Outstanding | 0.43 KM |
| The Fulham Boys School | Free Schools | Good | 0.66 KM |
| Kensington Wade | Other Independent School | Outstanding | 0.74 KM |
| St Cuthbert With St Matthias Cofe Primary School | Voluntary Aided School | Good | 0.75 KM |
Images
Nearby Streets
| Name | Average Price | Average Sqft | Distance |
|---|---|---|---|
| Melbury Court | £ 5,500,000 | 0 | 0.00 KM |
| Avonmore Road | £ 4,000,000 | 0 | 0.00 KM |
| Old Brompton Road | £ 0 | 0 | 0.00 KM |
| Kempsford Gardens | £ 0 | 0 | 0.00 KM |
| Thaxton Road | £ 0 | 0 | 0.00 KM |
Nearby Transport
| Name | NLC | TLC | Distance |
|---|---|---|---|
| West Brompton | 8875 | WBP | 0.83 KM |
| Kensington (Olympia) | 3092 | KPA | 1.35 KM |
| Shepherd'S Bush | 9587 | SPB | 2.44 KM |
| Imperial Wharf | 9586 | IMW | 2.75 KM |
| Paddington | 3087 | PAD | 3.52 KM |
Nearby Listings
| Address | Price | Type | Score | Distance |
|---|---|---|---|---|
| Cromwell Crescent, Kensington, London, SW5 | £ 1,125,000 | BUY | 7 / 10 | 0.00 KM |
| Cromwell Crescent, Earls Court, London, SW5 | £ 1,300,000 | BUY | 8 / 10 | 0.00 KM |
| Cromwell Crescent, London, SW5 | £ 650,000 | BUY | Unknown | 0.01 KM |
| Cromwell Crescent, Kensington, London, SW5 | £ 1,100,000 | BUY | 6 / 10 | 0.02 KM |
| Cromwell Crescent, SW5 | £ 1,000,000 | BUY | 7 / 10 | 0.02 KM |
Nearby Properties
| Address | Price | Distance |
|---|---|---|
| 8a Cromwell Crescent | £ 475,000 | 0.02 KM |
| 2 Cromwell Crescent | £ 1,380,000 | 0.02 KM |
| 58 West Cromwell Road | £ 297,000 | 0.05 KM |
| 60 Longridge Road | £ 625,000 | 0.11 KM |
| 40 West Cromwell Road | £ 875,000 | 0.13 KM |