Yopa says ..
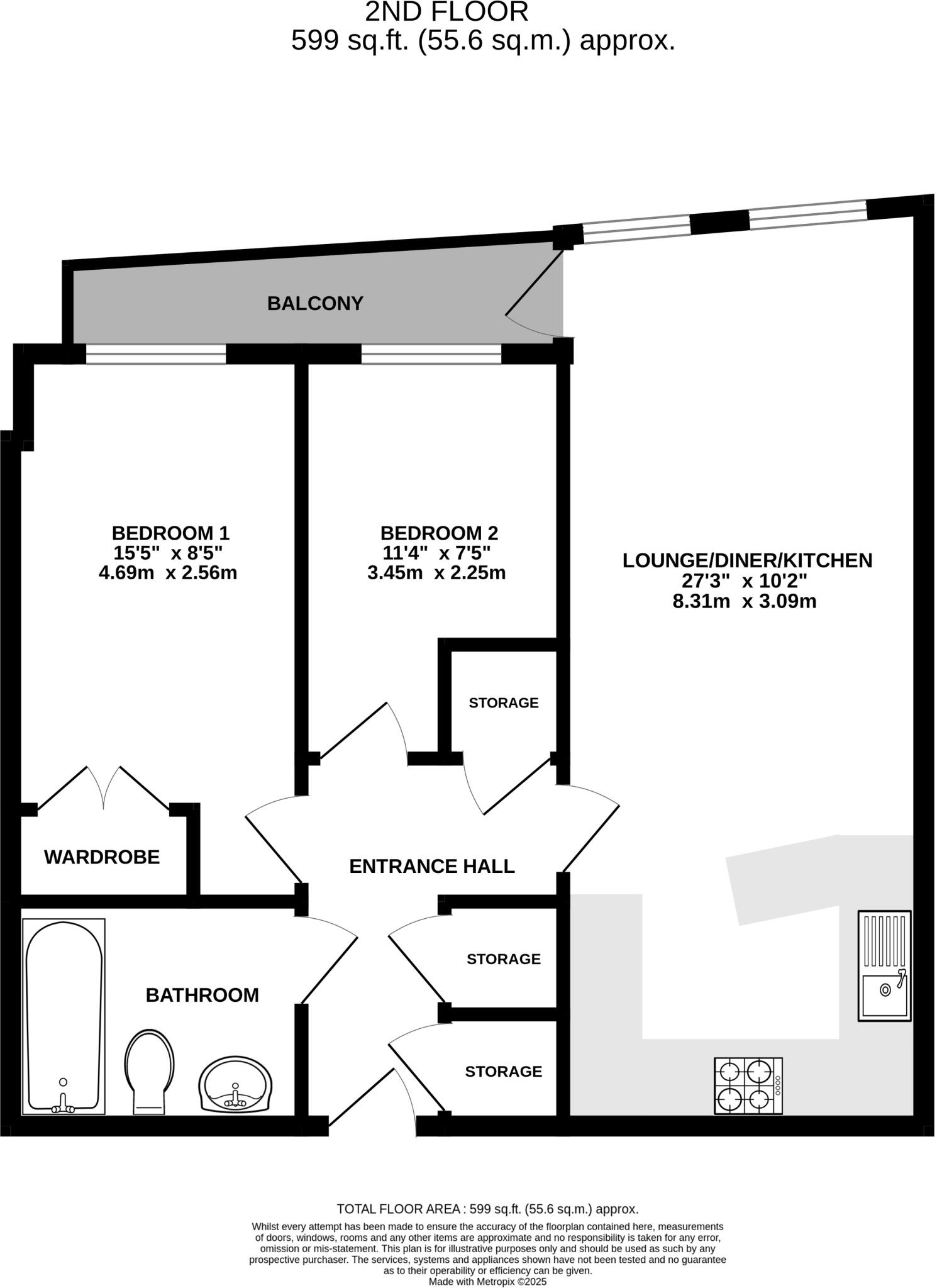
A spacious and stylish 2 double bedroom 2nd floor modern apartment offered for sale with no onward chain and an ideal first time purchase. Residents parking to the front and rear, secure entrance with lifts to all floors. 27ft lounge dining room and kitchen and a lease remaining of 111 years.
Property Oracle says ..
The property is a two-bedroom apartment located in Popley, Basingstoke. The apartment is part of a modern development, as shown in the provided images. It appears to be in good condition and benefits from a balcony. The internal photos suggest a modern, well-maintained interior. The location is reasonably convenient, with a nearby primary school (Marnel Community Infant School) rated as outstanding by Ofsted. Basingstoke train station is also within a reasonable distance providing access to other towns and cities. The lack of a private garden is a notable feature; however, the communal green space and playground visible in the photos may partially offset this. Considering the average price per square foot in the area is £431, and the apartment is 599 sqft, a rough estimate of the property value would be around £257,769. The list price of £180,000 is significantly below this estimate. However, it is important to consider that the average price and sqft data is for the wider area, and the provided nearby listings show a range of prices for flats in the same area. The lack of plot size data for the comparable properties makes a precise price comparison difficult. The list price may reflect the lack of a private garden or other factors not apparent from the provided information. Based on the images, the apartment appears modern and well-maintained. There is no evidence to suggest it is in need of renovation.
Therefore, we give this property 6 / 10. *Disclaimer: This is our option and does constitute a recommendation or financial advice. Do your own research. *
- Price
- 8
- Condition
- 9
- Location
- 7
- Land
- 3
- Bedrooms
- 2
- Bathrooms
- 1
- Sqft (est)
- 599.00
The heatmap indicates the level of crime in the area. The color of the heatmap indicates the crime severity and recency.
Metrics Year-on-Year
- Average area value
- 1,258,750.00 £Increased by 38.62 %
- Est sale value
- 352,811.00 £Decreased by 3.12 %
- Average area rental value
- 2,017.00 £/moDecreased by 42.17 %
- Est letting value
- 0.00 £/moDecreased by 100.00 %
- Est rental Yield
- 1.92 %Decreased by 58.35 %
- Crime Rate
- 21.00 %Unchanged by 0.00 %
Agent Activity
Yopa marked this listing as sold.
Yopa created the listing.
Nearby Schools
| Name | Type | Ofsted | Distance |
|---|---|---|---|
| The Austen Academy | Free Schools Special | 0.54 KM | |
| Pebbles Children'S Centre | Children's Centre | 0.58 KM | |
| Marnel Community Infant School | Community School | Outstanding | 0.70 KM |
| Marnel Junior School | Academy Sponsor Led | 0.71 KM | |
| Octopus Children'S Centre | Children's Centre | 0.99 KM |
Images
Nearby Streets
| Name | Average Price | Average Sqft | Distance |
|---|---|---|---|
| Mauritius Close | £ 0 | 0 | 0.00 KM |
| Reading Road | £ 0 | 0 | 0.00 KM |
| Wordsworth Close | £ 0 | 0 | 0.00 KM |
| Pear Tree Way | £ 0 | 0 | 0.00 KM |
| Walnut Way | £ 0 | 0 | 0.00 KM |
Nearby Transport
| Name | NLC | TLC | Distance |
|---|---|---|---|
| Basingstoke | 5520 | BSK | 2.31 KM |
| Bramley (Hampshire) | 5500 | BMY | 5.45 KM |
Nearby Listings
| Address | Price | Type | Score | Distance |
|---|---|---|---|---|
| Shetland Road, Basingstoke, RG24 | £ 180,000 | BUY | 6 / 10 | 0.00 KM |
| Shetland Road, Basingstoke, RG24 | £ 76,000 | BUY | 6 / 10 | 0.00 KM |
| Shetland Road, Basingstoke, RG24 | £ 90,000 | BUY | 5 / 10 | 0.01 KM |
| Shetland Road, Basingstoke, RG24 | £ 150,000 | BUY | 5 / 10 | 0.01 KM |
| Shetland Road, Basingstoke, Hampshire, RG24 9WH | £ 155,000 | BUY | Unknown | 0.01 KM |
Nearby Properties
| Address | Price | Distance |
|---|---|---|
| 69 Aspire Place | £ 132,000 | 0.01 KM |
| 68 Aspire Place | £ 161,000 | 0.01 KM |
| 52 Aspire Place | £ 147,500 | 0.01 KM |
| 77 Aspire Place | £ 185,000 | 0.01 KM |
| 59 Aspire Place | £ 187,000 | 0.01 KM |