Pedder says ..
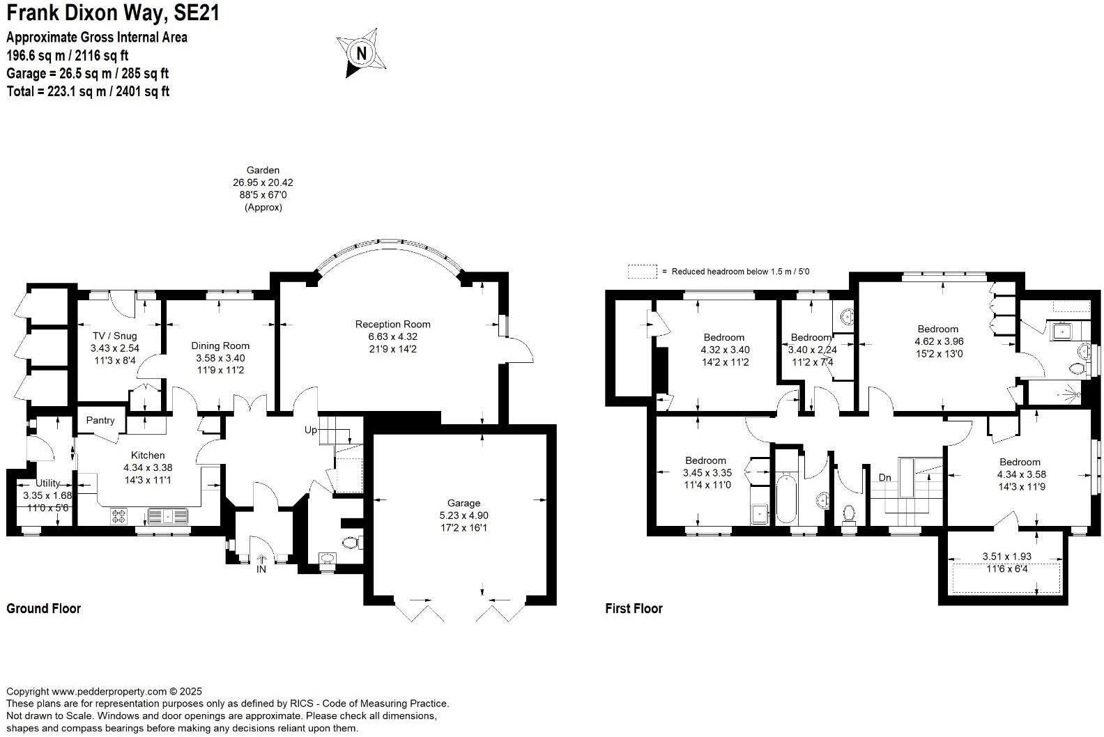
Located in one of the most popular roads in Dulwich Village, a detached house built in the 1950's, The property offers enormous scope for extension, improvement or redevelopment subject to any necessary planning consent and Dulwich Estate licence. The property currently has a gross inter...
Property Oracle says ..
Therefore, we give this property 6 / 10. *Disclaimer: This is our option and does constitute a recommendation or financial advice. Do your own research. *
- Price
- 4
- Condition
- 6
- Location
- 9
- Land
- 8
- Bedrooms
- 5
- Bathrooms
- 2
- Sqft (est)
- 1,654.11
The heatmap indicates the level of crime in the area. The color of the heatmap indicates the crime severity and recency.
Metrics Year-on-Year
- Average area value
- 1,158,333.00 £Decreased by 5.42 %
- Est sale value
- 1,604,486.70 £Increased by 15.48 %
- Average area rental value
- 2,794.00 £/moDecreased by 10.39 %
- Est letting value
- 3,308.22 £/moUnchanged by 0.00 %
- Est rental Yield
- 2.89 %Decreased by 5.25 %
- Crime Rate
- 3.00 %Unchanged by 0.00 %
from 1,224,768.00 £
from 1,389,452.40 £
from 3,118.00 £/mo
from 3,308.22 £/mo
from 3.05 %
from 3.00 %
Agent Activity
Pedder created the listing.
Nearby Schools
| Name | Type | Ofsted | Distance |
|---|---|---|---|
| Dulwich College | Other Independent School | 0.40 KM | |
| Dulwich Hamlet Junior School | Academy Converter | 0.82 KM | |
| Dulwich Village Church Of England Infants' School | Voluntary Aided School | Outstanding | 0.94 KM |
| Oakfield Preparatory School | Other Independent School | 1.05 KM | |
| Dulwich Prep London | Other Independent School | 1.07 KM |
Images
Nearby Streets
| Name | Average Price | Average Sqft | Distance |
|---|---|---|---|
| Park Hall Road | £ 0 | 0 | 0.00 KM |
| Townley Road | £ 1,625,000 | 0 | 0.00 KM |
| Thurlow Park Road | £ 0 | 0 | 0.00 KM |
| Jennings Road | £ 525,000 | 0 | 0.00 KM |
| Firemans Alley | £ 366,000 | 0 | 0.00 KM |
Nearby Transport
| Name | NLC | TLC | Distance |
|---|---|---|---|
| West Dulwich | 5086 | WDU | 0.87 KM |
| North Dulwich | 5429 | NDL | 1.27 KM |
| Sydenham Hill | 5085 | SYH | 1.30 KM |
| East Dulwich | 5358 | EDW | 2.02 KM |
| Gipsy Hill | 5363 | GIP | 2.15 KM |
Nearby Listings
| Address | Price | Type | Score | Distance |
|---|---|---|---|---|
| Frank Dixon Way, Dulwich, SE21 | £ 3,500,000 | BUY | 6 / 10 | 0.00 KM |
| Frank Dixon Close, London, SE21 | £ 10,000,000 | BUY | Unknown | 0.11 KM |
| College Road, Dulwich Village, SE21 7BA | £ 5,250,000 | BUY | Unknown | 0.15 KM |
| Frank Dixon Close, London, SE21 | £ 4,500,000 | BUY | 7 / 10 | 0.18 KM |
| College Road, Dulwich, London, SE21 | £ 660,000 | BUY | 7 / 10 | 0.24 KM |
Nearby Properties
| Address | Price | Distance |
|---|---|---|
| 1b Allison Grove | £ 1,750,000 | 0.14 KM |
| 1a Allison Grove | £ 1,800,000 | 0.14 KM |
| 6 Allison Grove | £ 1,350,000 | 0.14 KM |
| 5 Allison Grove | £ 453,000 | 0.14 KM |
| 31 College Road | £ 7,500,000 | 0.16 KM |