Carlton Road, Walton-On-Thames, KT12
By Curchods Estate Agents
£ 995,000
Reviews
3 out of 5 stars
Curchods Estate Agents says ..
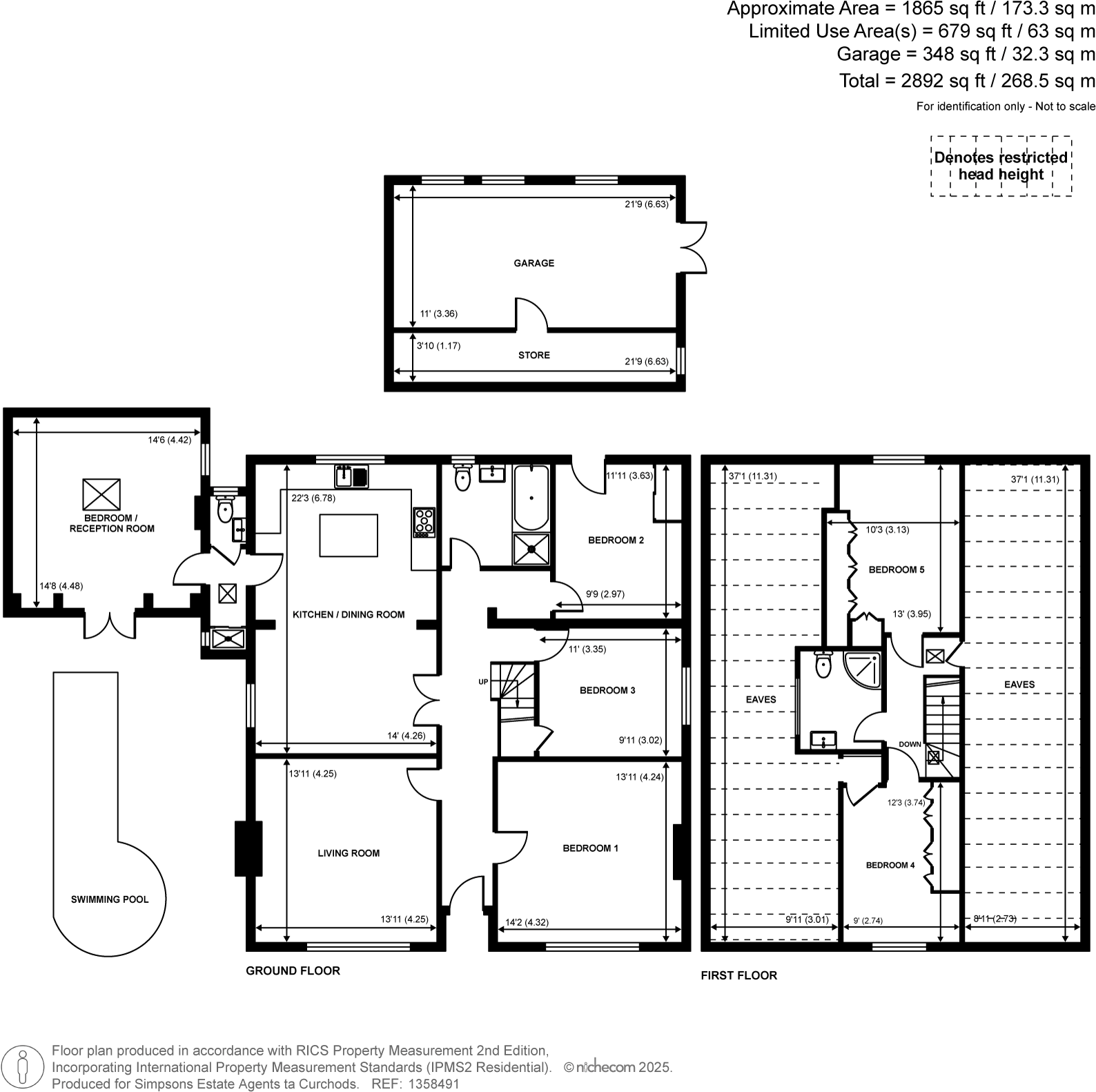
A detached chalet style home offering deceptive and particularly flexible five bedroom, three bath/shower room accommodation which defies its' front appearance and is convenient for numerous local amenities.
Property Oracle says ..
This detached property in Walton-on-Thames offers five bedrooms and three bathrooms, making it suitable for a family. The property features a large garden with a decking area, providing ample outdoor space. While the interior is generally well-maintained, some areas could benefit from modernization. The location is good, with proximity to schools and transportation, but not in the immediate town center. The asking price of £995,000 appears somewhat high compared to the local market, considering the average property prices in the area. Overall, the property has potential but may require some investment to bring it up to modern standards.
Therefore, we give this property 6 / 10. *Disclaimer: This is our option and does constitute a recommendation or financial advice. Do your own research. *
- Price
- 6
- Condition
- 6
- Location
- 7
- Land
- 8
- Bedrooms
- 5
- Bathrooms
- 3
- Sqft (est)
- 135.93
The heatmap indicates the level of crime in the area. The color of the heatmap indicates the crime severity and recency.
Metrics Year-on-Year
- Average area value
- 499,167.00 £Decreased by 5.70 %
- Est sale value
- 77,887.89 £Increased by 14.60 %
- Average area rental value
- 1,525.00 £/moDecreased by 16.12 %
- Est letting value
- 135.93 £/moUnchanged by 0.00 %
- Est rental Yield
- 3.67 %Decreased by 10.92 %
- Crime Rate
- 3.00 %Unchanged by 0.00 %
Agent Activity
Curchods Estate Agents created the listing.
Nearby Schools
| Name | Type | Ofsted | Distance |
|---|---|---|---|
| Grovelands Primary School | Community School | Good | 0.46 KM |
| Walton Sure Start Children'S Centre | Children's Centre | 0.46 KM | |
| Walton Oak Primary School | Academy Converter | 1.20 KM | |
| The Danesfield Manor School | Other Independent School | 1.25 KM | |
| Ashley Church Of England Primary School | Academy Converter | 1.26 KM |
Images
Nearby Streets
| Name | Average Price | Average Sqft | Distance |
|---|---|---|---|
| Nelson Close | £ 412,490 | 0 | 0.00 KM |
| Kings Close | £ 662,500 | 0 | 0.00 KM |
| Kings Gardens | £ 0 | 0 | 0.00 KM |
| Poppins Close | £ 0 | 0 | 0.00 KM |
| Naseby Court | £ 0 | 0 | 0.00 KM |
Nearby Transport
| Name | NLC | TLC | Distance |
|---|---|---|---|
| Walton-On-Thames | 5575 | WAL | 2.03 KM |
| Hersham | 5590 | HER | 2.55 KM |
| Sunbury | 5608 | SUU | 3.29 KM |
| Kempton Park Racecourse | 5678 | KMP | 3.43 KM |
| Upper Halliford | 5613 | UPH | 3.54 KM |
Nearby Listings
| Address | Price | Type | Score | Distance |
|---|---|---|---|---|
| Carlton Road, Walton-On-Thames, KT12 | £ 995,000 | BUY | 6 / 10 | 0.00 KM |
| Carlton Road, Walton On Thames, Surrey, KT12 | £ 260,000 | BUY | 7 / 10 | 0.07 KM |
| Carlton Road, Walton On Thames, Surrey, KT12 | £ 475,000 | BUY | 7 / 10 | 0.07 KM |
| Carlton Road, Walton-On-Thames, Surrey, KT12 | £ 479,950 | BUY | 6 / 10 | 0.07 KM |
| Carlton Road, Walton-on-Thames, KT12 | £ 410,000 | BUY | 6 / 10 | 0.08 KM |
Nearby Properties
| Address | Price | Distance |
|---|---|---|
| 77 Garden Road | £ 480,000 | 0.06 KM |
| 75 Garden Road | £ 249,500 | 0.06 KM |
| 73 Garden Road | £ 250,000 | 0.06 KM |
| 49 The Grove | £ 575,000 | 0.06 KM |
| 66 Garden Road | £ 275,000 | 0.06 KM |