Brian Cox says ..
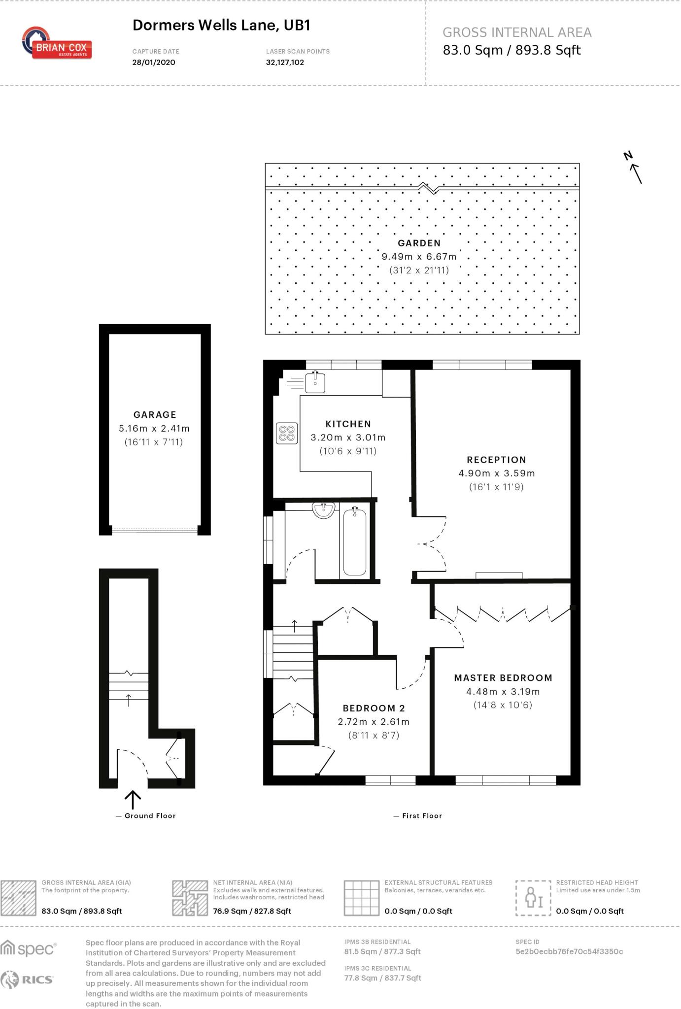
An excellent two double bedroom fisrt floor maisonette. This spacious property boasts two large bedrooms, a new modern kitchen/ diner, bright living room and bathroom suite. Further benefits include double glazing, ample storage, garage and a large private garden with off street parking. Call ear...
Property Oracle says ..
This maisonette is located in Dormers Wells, Southall, a suburb of Ealing in Greater London. The area benefits from being close to several schools, including Dormers Wells Infant School, Dormers Wells Junior School, and Dormers Wells High School, all within a short distance of the property. Transportation links are also good, with Southall TfL Rail station approximately 1.87km away. The property itself appears to be in good condition based on the provided images. It is a two-bedroom, one-bathroom maisonette with a garden. The property has had some modernisation, as shown in the images of the kitchen and bathroom. While the exact square footage is not provided, the list price of £375,000 seems reasonable in comparison to other nearby properties of similar size and type, although it is lower than the average price for the area. The average price per square foot in the area is £564, but without the square footage of this property, a precise comparison is difficult. The presence of a garden is a positive feature. Overall, this property appears to be a good value for money in a convenient location.
Therefore, we give this property 7 / 10. *Disclaimer: This is our option and does constitute a recommendation or financial advice. Do your own research. *
- Price
- 7
- Condition
- 8
- Location
- 7
- Land
- 7
- Bedrooms
- 2
- Bathrooms
- 1
- Lot (est)
- 893.80
The heatmap indicates the level of crime in the area. The color of the heatmap indicates the crime severity and recency.
Metrics Year-on-Year
- Average area value
- 523,317.00 £Increased by 7.74 %
- Average area rental value
- 1,867.00 £/moDecreased by 17.83 %
- Est rental Yield
- 4.28 %Decreased by 23.71 %
- Crime Rate
- 1.00 %Unchanged by 0.00 %
Agent Activity
Brian Cox created the listing.
Nearby Schools
| Name | Type | Ofsted | Distance |
|---|---|---|---|
| Dormers Wells Children'S Centre | Children's Centre Linked Site | 0.21 KM | |
| Dormers Wells Infant School | Academy Sponsor Led | 0.27 KM | |
| Dormers Wells High School | Academy Converter | 0.31 KM | |
| Dormers Wells Junior School | Academy Sponsor Led | 0.34 KM | |
| Allenby Primary School | Community School | Good | 0.45 KM |
Images
Nearby Streets
| Name | Average Price | Average Sqft | Distance |
|---|---|---|---|
| Faraday Road | £ 400,000 | 0 | 0.00 KM |
| Thurston Road | £ 600,000 | 0 | 0.00 KM |
| Grove Terrace | £ 0 | 0 | 0.00 KM |
| Boyd Avenue | £ 650,000 | 0 | 0.00 KM |
| King Georges Drive | £ 0 | 0 | 0.00 KM |
Nearby Transport
| Name | NLC | TLC | Distance |
|---|---|---|---|
| Southall | 3187 | STL | 1.87 KM |
| Hanwell | 3191 | HAN | 2.96 KM |
| Greenford | 3136 | GFD | 3.62 KM |
| South Greenford | 3138 | SGN | 3.71 KM |
| Castle Bar Park | 3098 | CBP | 3.79 KM |
Nearby Listings
| Address | Price | Type | Score | Distance |
|---|---|---|---|---|
| Dormers Wells Lane, Southall | £ 375,000 | BUY | 7 / 10 | 0.00 KM |
| Dormers Wells Lane, Southall | £ 280,000 | BUY | 5 / 10 | 0.08 KM |
| Dormers Wells Lane, Southall | £ 310,000 | BUY | 5 / 10 | 0.11 KM |
| Burns Avenue, Southall | £ 635,000 | BUY | 6 / 10 | 0.11 KM |
| Burns Avenue, Southall, UB1 | £ 650,000 | BUY | 6 / 10 | 0.12 KM |
Nearby Properties
| Address | Price | Distance |
|---|---|---|
| 106a Dormers Wells Lane | £ 221,000 | 0.01 KM |
| 85 Dormers Wells Lane | £ 325,000 | 0.01 KM |
| 104 Dormers Wells Lane | £ 112,500 | 0.01 KM |
| 106 Dormers Wells Lane | £ 310,000 | 0.01 KM |
| 100 Dormers Wells Lane | £ 242,500 | 0.01 KM |