Barn with Planning Permission for Conversion, Holbeach Road, Spalding
By Longstaff
£ 130,000
Reviews
2 out of 5 stars
Longstaff says ..
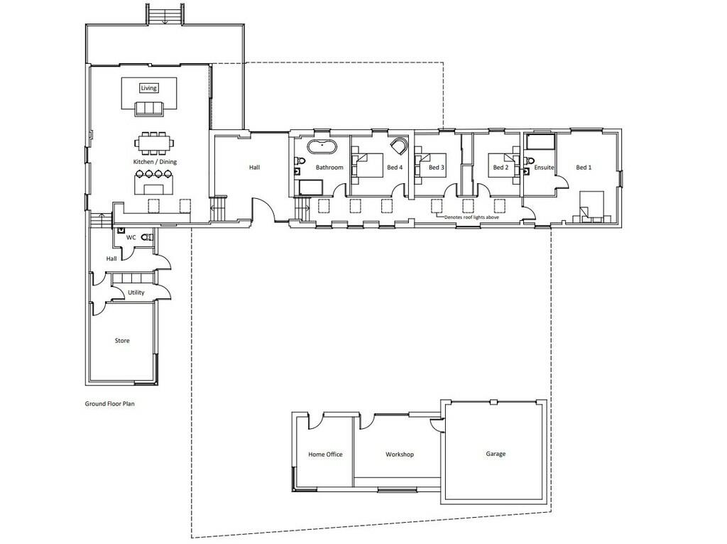
Planning Permission has been granted on the former agricultural storage buildings off Holbeach Road, Spalding for a detached dwelling with garage with details of the Approved Planning Application is available from South Holland District Council Planning website under Reference No. H16-0465-22. Th...
Property Oracle says ..
This property is a barn with planning permission for conversion into a residential dwelling located on Holbeach Road, Spalding, Lincolnshire. The barn itself is currently in a state of disrepair and requires extensive renovation. The provided images show significant wear and tear, requiring substantial work to bring it to a habitable standard. However, the planning permission provides a clear pathway for converting the property into a family home, which could prove to be a valuable project for a buyer willing to undertake renovations.
The location is a few kilometers from Spalding town center, offering access to amenities, transportation (Spalding train station), and schools. The exact distances may vary for the nearest school. However, the distance from the town center does reduce the level of immediacy and convenience in terms of shopping and services.
The land is quite substantial. The plans show considerable space for a new build as per the planning permission, with potential for a substantial garden. This is a significant benefit, particularly in the UK market where properties with good plots of land command higher prices. However, one must keep in mind that the current structure would need demolition or integration into the newly built home.
The asking price of £130,000 is a critical aspect. While lower than other properties in the area, the significant renovation costs will undoubtedly need to be considered. Therefore, the actual cost of bringing the property to a habitable state might be much higher, changing how one might view the value proposition. This would necessitate careful budgeting and financial planning. A potential buyer should factor in the total cost of the renovation project before making a purchase decision. The absence of square footage information for the property makes it difficult to offer a more exact appraisal of price per square foot.
Therefore, we give this property 5 / 10. *Disclaimer: This is our option and does constitute a recommendation or financial advice. Do your own research. *
- Price
- 7
- Condition
- 3
- Location
- 4
- Land
- 6
- Bedrooms
- 0
- Bathrooms
- 0
The heatmap indicates the level of crime in the area. The color of the heatmap indicates the crime severity and recency.
Metrics Year-on-Year
- Average area value
- 238,562.00 £Decreased by 19.94 %
- Average area rental value
- 1,250.00 £/moIncreased by 47.06 %
- Est rental Yield
- 6.29 %Increased by 83.92 %
- Crime Rate
- 0.00 %
Agent Activity
Longstaff created the listing.
Nearby Schools
| Name | Type | Ofsted | Distance |
|---|---|---|---|
| Spalding And Deeping St Nicholas Centre | Children's Centre | 1.69 KM | |
| St Paul'S Community Primary And Nursery School, Spalding | Academy Sponsor Led | 1.81 KM | |
| The Priory School | Academy Special Converter | Outstanding | 2.48 KM |
| Spalding Academy | Academy Converter | Good | 2.62 KM |
| Springwell Alternative Academy Spalding | Free Schools Alternative Provision | 3.06 KM |
Images
Nearby Streets
| Name | Average Price | Average Sqft | Distance |
|---|---|---|---|
| Holbeach Road | £ 396,650 | 0 | 0.00 KM |
| Dawson Avenue | £ 0 | 0 | 0.00 KM |
| Spalding Bypass | £ 1,000,000 | 0 | 0.00 KM |
| Windmill Court | £ 0 | 0 | 0.00 KM |
Nearby Transport
| Name | NLC | TLC | Distance |
|---|---|---|---|
| Spalding | 6388 | SPA | 4.39 KM |
Nearby Listings
| Address | Price | Type | Score | Distance |
|---|---|---|---|---|
| Barn with Planning Permission for Conversion, Holbeach Road, Spalding | £ 130,000 | BUY | 5 / 10 | 0.00 KM |
| Holbeach Road, Spalding | £ 415,000 | BUY | 5 / 10 | 0.08 KM |
| Holbeach Road, Spalding | £ 475,000 | BUY | 6 / 10 | 0.09 KM |
| Holbeach Road, Spalding | £ 610,000 | BUY | 7 / 10 | 0.89 KM |
| Pilmore Lane, Low Fulney, Spalding | £ 315,000 | BUY | 6 / 10 | 1.36 KM |
Nearby Properties
| Address | Price | Distance |
|---|---|---|
| Sycamore Farm House | £ 415,000 | 0.09 KM |
| Bellevue Farm | £ 165,000 | 0.68 KM |
| Whitegate | £ 148,000 | 1.10 KM |
| Glenfield | £ 165,000 | 1.11 KM |
| 63 Holbeach Road | £ 145,000 | 1.45 KM |