Oak Fields, Lawshall
By David Burr Estate Agents
£ 425,000
Reviews
3 out of 5 stars
David Burr Estate Agents says ..
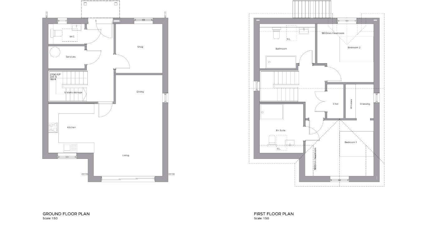
Experience luxury living at Oak Fields - an exclusive collection of five private, detached homes nestled in the heart of the highly sought-after village of Lawshall, Suffolk. Each stunning home is designed for modern comfort, featuring a spacious master bedroom with an en-suite, generous rear ga...
Property Oracle says ..
The property is a modern two bedroom detached house located in Lawshall, Suffolk. The location benefits from being close to All Saints’ Church of England Voluntary Controlled Primary School, which is rated as Outstanding by Ofsted. While the plot size is listed as 0.00 sqft, the images suggest there is some outside space. The property itself appears to be in excellent condition, with a modern kitchen and bathrooms. The list price of £425,000 is slightly higher than the average price for the area (£384,444), but given the size of the property (3,811 sqft) and its modern condition, it could be considered reasonable. The average price per sqft in the area is £379, making this property slightly above average in terms of price per sqft. However, the modern condition and potentially larger plot size could justify the higher price. More information on the plot size and local comparable properties would help to further refine this assessment.
Therefore, we give this property 7 / 10. *Disclaimer: This is our option and does constitute a recommendation or financial advice. Do your own research. *
- Price
- 7
- Condition
- 9
- Location
- 8
- Land
- 6
- Bedrooms
- 2
- Bathrooms
- 2
- Sqft (est)
- 3,811.00
The heatmap indicates the level of crime in the area. The color of the heatmap indicates the crime severity and recency.
Metrics Year-on-Year
- Average area value
- 382,651.00 £Decreased by 11.61 %
- Est sale value
- 948,939.00 £Increased by 14.22 %
- Average area rental value
- 1,307.00 £/moIncreased by 22.84 %
- Est letting value
- 0.00 £/mo
- Est rental Yield
- 4.10 %Increased by 38.98 %
- Crime Rate
- 0.00 %
Agent Activity
David Burr Estate Agents created the listing.
Nearby Schools
| Name | Type | Ofsted | Distance |
|---|---|---|---|
| All Saints' Church Of England Voluntary Controlled Primary School, Lawshall | Voluntary Controlled School | Outstanding | 0.53 KM |
| Great Whelnetham Church Of England Primary School | Academy Sponsor Led | 5.42 KM | |
| Cockfield Church Of England Voluntary Controlled Primary School | Voluntary Controlled School | Good | 5.86 KM |
| Hartest Church Of England Primary School | Academy Sponsor Led | 6.13 KM | |
| Riverwalk School | Academy Special Converter | 7.95 KM |
Images
Nearby Streets
| Name | Average Price | Average Sqft | Distance |
|---|---|---|---|
| Little Chad Close | £ 0 | 0 | 0.00 KM |
Nearby Listings
| Address | Price | Type | Score | Distance |
|---|---|---|---|---|
| Oak Fields, Lawshall | £ 425,000 | BUY | 7 / 10 | 0.00 KM |
| Oak Fields, Lawshall | £ 400,000 | BUY | 7 / 10 | 0.00 KM |
| Oak Fields, Lawshall | £ 485,000 | BUY | 7 / 10 | 0.00 KM |
| Swanfield, Lawshall | £ 400,000 | BUY | 7 / 10 | 0.02 KM |
| Plot 4, Oak Fields, Lawshall, Bury St Edmunds | £ 485,000 | BUY | 7 / 10 | 0.04 KM |
Nearby Properties
| Address | Price | Distance |
|---|---|---|
| Fuddle Cottage | £ 598,600 | 0.64 KM |
| Bowater Fours | £ 285,000 | 0.64 KM |
| 5 Hall Mead | £ 247,500 | 0.64 KM |
| 3 Hall Mead | £ 236,000 | 0.64 KM |
| 6 Hall Mead | £ 268,500 | 0.64 KM |