FR
Cross Way, Harpenden, Hertfordshire, AL5
By Frost's Estate Agents
£ 325,000
Reviews
3 out of 5 stars
Frost's Estate Agents says ..
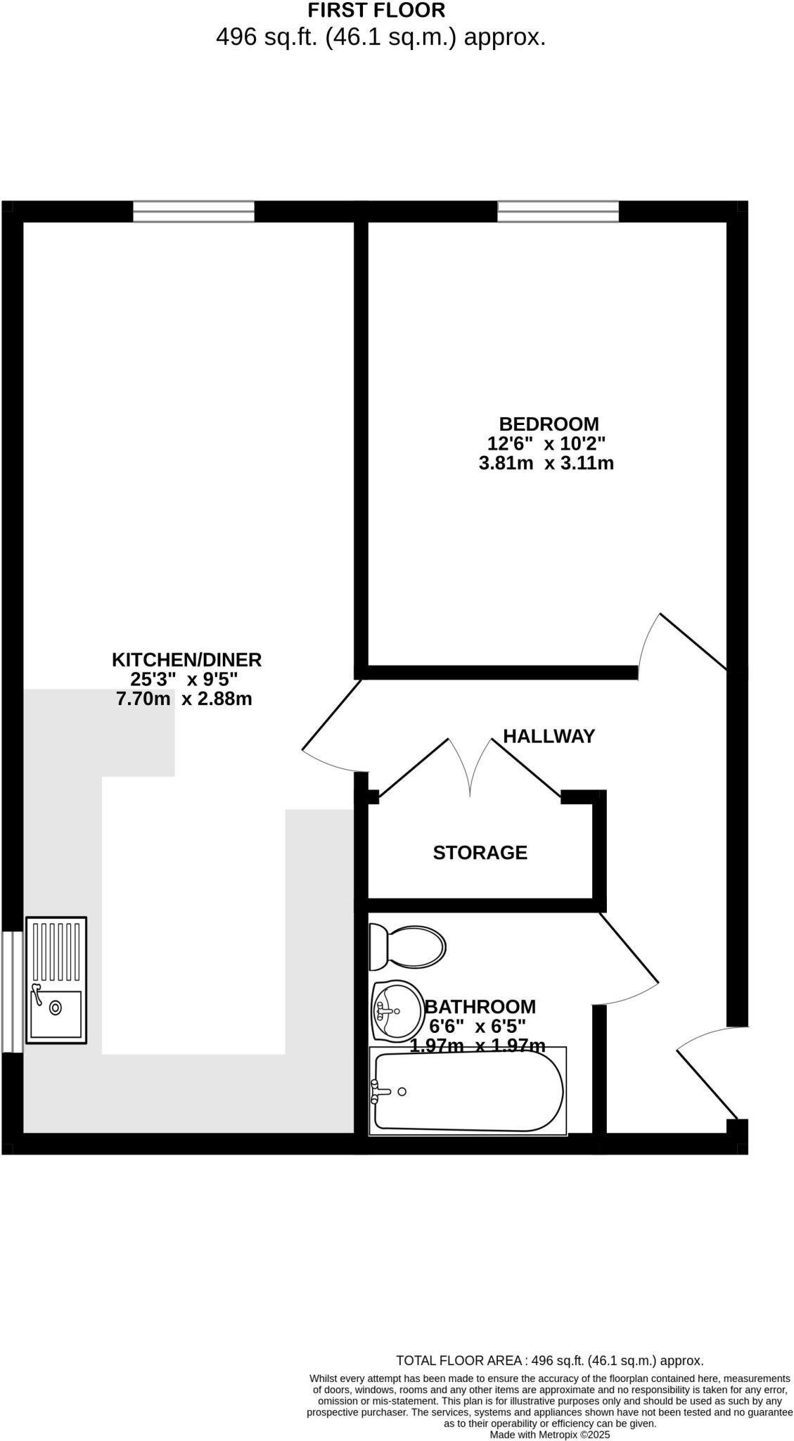
Flat 8, St. Margarets Court, 5 Cross Way, AL5 4FN is a modern and well-presented one-bedroom first-floor apartment, offered to the market with no upper chain. Ideal for first-time buyers, investors, or those looking to downsize, the property features a bright open-plan living area, contemporary k...
Property Oracle says ..
Therefore, we give this property 6 / 10. *Disclaimer: This is our option and does constitute a recommendation or financial advice. Do your own research. *
- Price
- 7
- Condition
- 9
- Location
- 8
- Land
- 1
- Bedrooms
- 1
- Bathrooms
- 1
- Sqft (est)
- 408.15
The heatmap indicates the level of crime in the area. The color of the heatmap indicates the crime severity and recency.
Metrics Year-on-Year
- Average area value
- 696,167.00 £Decreased by 17.95 %
- Est sale value
- 254,277.45 £Decreased by 14.42 %
- Average area rental value
- 2,133.00 £/moDecreased by 1.25 %
- Est letting value
- 408.15 £/moUnchanged by 0.00 %
- Est rental Yield
- 3.68 %Increased by 20.26 %
- Crime Rate
- 3.00 %Unchanged by 0.00 %
from 848,431.00 £
from 297,133.20 £
from 2,160.00 £/mo
from 408.15 £/mo
from 3.06 %
from 3.00 %
Agent Activity
Frost's Estate Agents created the listing.
Nearby Schools
| Name | Type | Ofsted | Distance |
|---|---|---|---|
| Sir John Lawes School | Academy Converter | 0.45 KM | |
| Katherine Warington School | Free Schools | 0.58 KM | |
| Crabtree Junior School | Academy Converter | 0.66 KM | |
| Manland Primary School | Community School | Good | 0.69 KM |
| Crabtree Infants' School | Academy Converter | 0.70 KM |
Images
Nearby Streets
| Name | Average Price | Average Sqft | Distance |
|---|---|---|---|
| Walnut Close | £ 750,000 | 0 | 0.00 KM |
| Browning Road | £ 2,150,000 | 0 | 0.00 KM |
| Lower Luton Road | £ 425,000 | 0 | 0.00 KM |
| Millstone Way | £ 300,000 | 0 | 0.00 KM |
| Amberley Close | £ 899,950 | 0 | 0.00 KM |
Nearby Transport
| Name | NLC | TLC | Distance |
|---|---|---|---|
| Harpenden | 1543 | HPD | 1.33 KM |
| St Albans City | 1548 | SAC | 8.11 KM |
| Luton Airport Parkway | 3645 | LTN | 8.20 KM |
| St Albans Abbey | 1562 | SAA | 8.59 KM |
Nearby Listings
| Address | Price | Type | Score | Distance |
|---|---|---|---|---|
| Cross Way, Harpenden, Hertfordshire, AL5 | £ 325,000 | BUY | 6 / 10 | 0.00 KM |
| Cross Way, Harpenden, Hertfordshire, AL5 | £ 475,000 | BUY | 6 / 10 | 0.00 KM |
| St Margarets Court, Cross Way, Harpenden, Hertfordshire, AL5 | £ 345,000 | BUY | 6 / 10 | 0.02 KM |
| Waveney Road, Harpenden, AL5 | £ 699,950 | BUY | 6 / 10 | 0.10 KM |
| West Way, Harpenden, AL5 | £ 1,800,000 | BUY | 7 / 10 | 0.11 KM |
Nearby Properties
| Address | Price | Distance |
|---|---|---|
| 29 Hickling Way | £ 327,000 | 0.05 KM |
| 7 Hickling Way | £ 335,000 | 0.05 KM |
| 27 Hickling Way | £ 330,000 | 0.05 KM |
| 35 Hickling Way | £ 370,000 | 0.05 KM |
| 39 Hickling Way | £ 210,000 | 0.05 KM |