Strathmore Gardens, South Shields, Tyne and Wear, NE34 0LH
By Browns Estate Agents
£ 249,995
Reviews
3 out of 5 stars
Browns Estate Agents says ..
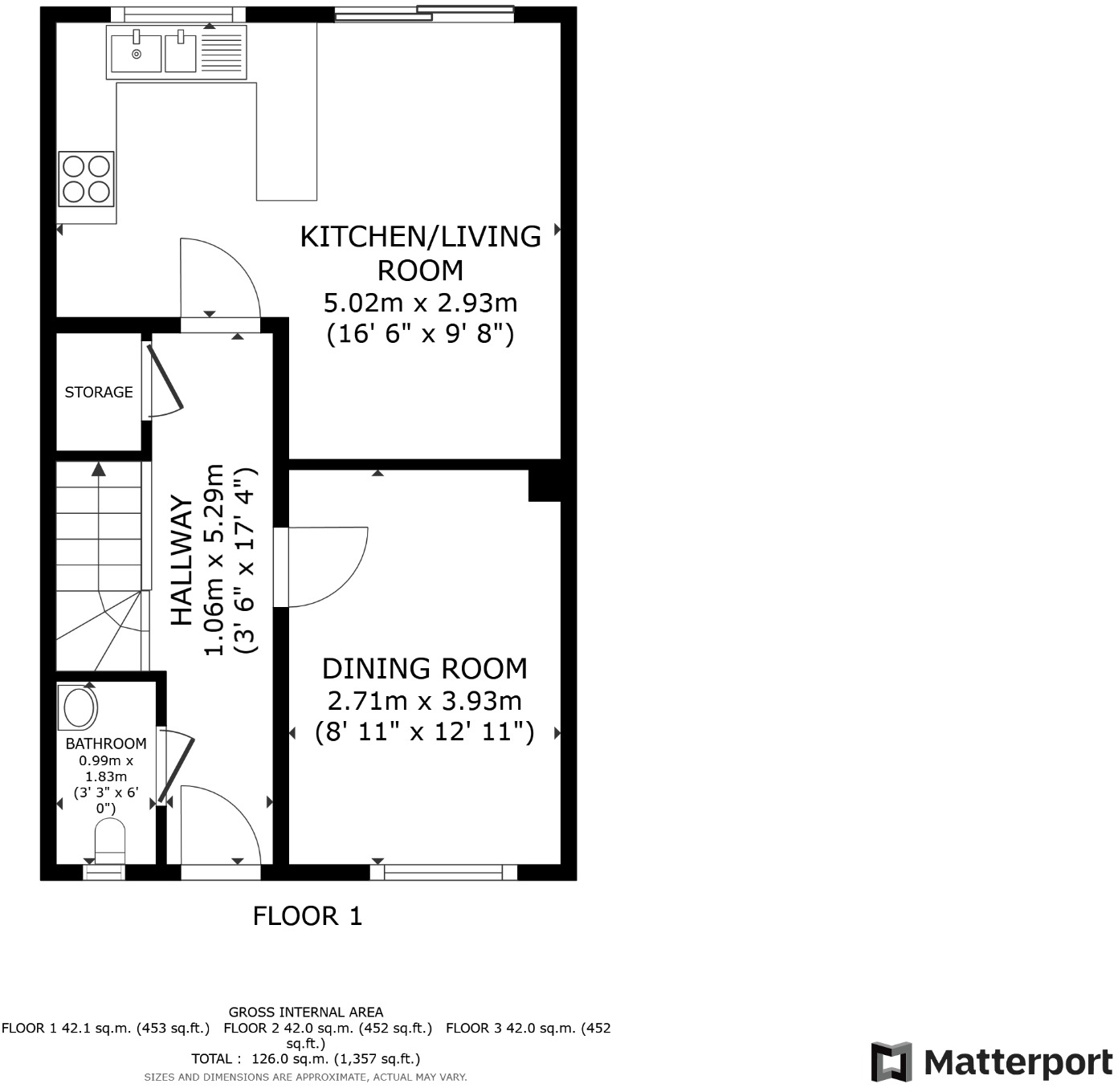
Spacious 5 Bedroom Townhouse - Perfect For Any Growing Families
Property Oracle says ..
This five-bedroom townhouse in Strathmore Gardens, South Shields offers a modern and well-maintained interior. The kitchen and bathrooms are recently updated and presented in excellent condition. The property boasts a good-sized garden which includes a paved patio and artificial grass, offering a private outdoor space. The location is family-friendly with several well-regarded schools within a reasonable distance. While detailed information about local amenities and transport links beyond Sunderland is missing, the overall picture is one of a potentially attractive property for a family seeking a home in a relatively convenient location. The asking price appears competitive in light of similar properties on the market in the area, although the lack of precise comparable data limits detailed price analysis. Potential buyers should still conduct independent research to verify the exact value of the property and ensure that their needs concerning amenities and transport are met before making an offer.
Therefore, we give this property 7 / 10. *Disclaimer: This is our option and does constitute a recommendation or financial advice. Do your own research. *
- Price
- 7
- Condition
- 8
- Location
- 7
- Land
- 6
- Bedrooms
- 5
- Bathrooms
- 2
- Sqft (est)
- 1,356.25
The heatmap indicates the level of crime in the area. The color of the heatmap indicates the crime severity and recency.
Metrics Year-on-Year
- Average area value
- 410,714.00 £Increased by 0.52 %
- Est sale value
- 569,625.00 £Increased by 4.48 %
- Average area rental value
- 1,363.00 £/moDecreased by 8.52 %
- Est letting value
- 1,356.25 £/moUnchanged by 0.00 %
- Est rental Yield
- 3.98 %Decreased by 9.13 %
- Crime Rate
- 5.00 %Unchanged by 0.00 %
Agent Activity
Browns Estate Agents marked this listing as sold.
Browns Estate Agents created the listing.
Nearby Schools
| Name | Type | Ofsted | Distance |
|---|---|---|---|
| Holy Trinity Church Of England Academy (South Shields) | Academy Converter | Good | 0.62 KM |
| Ss Peter And Paul Catholic Primary School, South Shields | Academy Converter | 0.80 KM | |
| Biddick Hall Junior School | Community School | Good | 0.84 KM |
| All Saints Centre | Children's Centre | 1.10 KM | |
| Stanhope Primary School | Community School | Good | 1.14 KM |
Images
Nearby Streets
| Name | Average Price | Average Sqft | Distance |
|---|---|---|---|
| Strathmore Gardens | £ 249,995 | 0 | 0.00 KM |
| Douglas Close | £ 0 | 0 | 0.00 KM |
| Coxfoot Close | £ 0 | 0 | 0.00 KM |
| Egerton Road | £ 0 | 0 | 0.00 KM |
| Belle Vue Crescent | £ 45,000 | 0 | 0.00 KM |
Nearby Transport
| Name | NLC | TLC | Distance |
|---|---|---|---|
| Sunderland | 7640 | SUN | 9.31 KM |
Nearby Listings
| Address | Price | Type | Score | Distance |
|---|---|---|---|---|
| Strathmore Gardens, South Shields, Tyne and Wear, NE34 0LH | £ 249,995 | BUY | 7 / 10 | 0.00 KM |
| Mackley Close, South Shields | £ 249,950 | BUY | 7 / 10 | 0.08 KM |
| Low Lane, South Shields | £ 63,750 | BUY | Unknown | 0.12 KM |
| Low Lane, South Shields | £ 73,750 | BUY | 6 / 10 | 0.12 KM |
| Strathmore Gardens, South Shields | £ 350,000 | BUY | Unknown | 0.14 KM |
Nearby Properties
| Address | Price | Distance |
|---|---|---|
| 18 Mackley Close | £ 127,950 | 0.09 KM |
| 11 Mackley Close | £ 95,000 | 0.09 KM |
| 12 Mackley Close | £ 124,950 | 0.09 KM |
| 7 Mackley Close | £ 119,950 | 0.09 KM |
| 14 Mackley Close | £ 124,950 | 0.09 KM |