Rutland Road, Southport, Merseyside, PR8 6PB
By Flexi-Agent
£ 595,000
Reviews
4 out of 5 stars
Flexi-Agent says ..
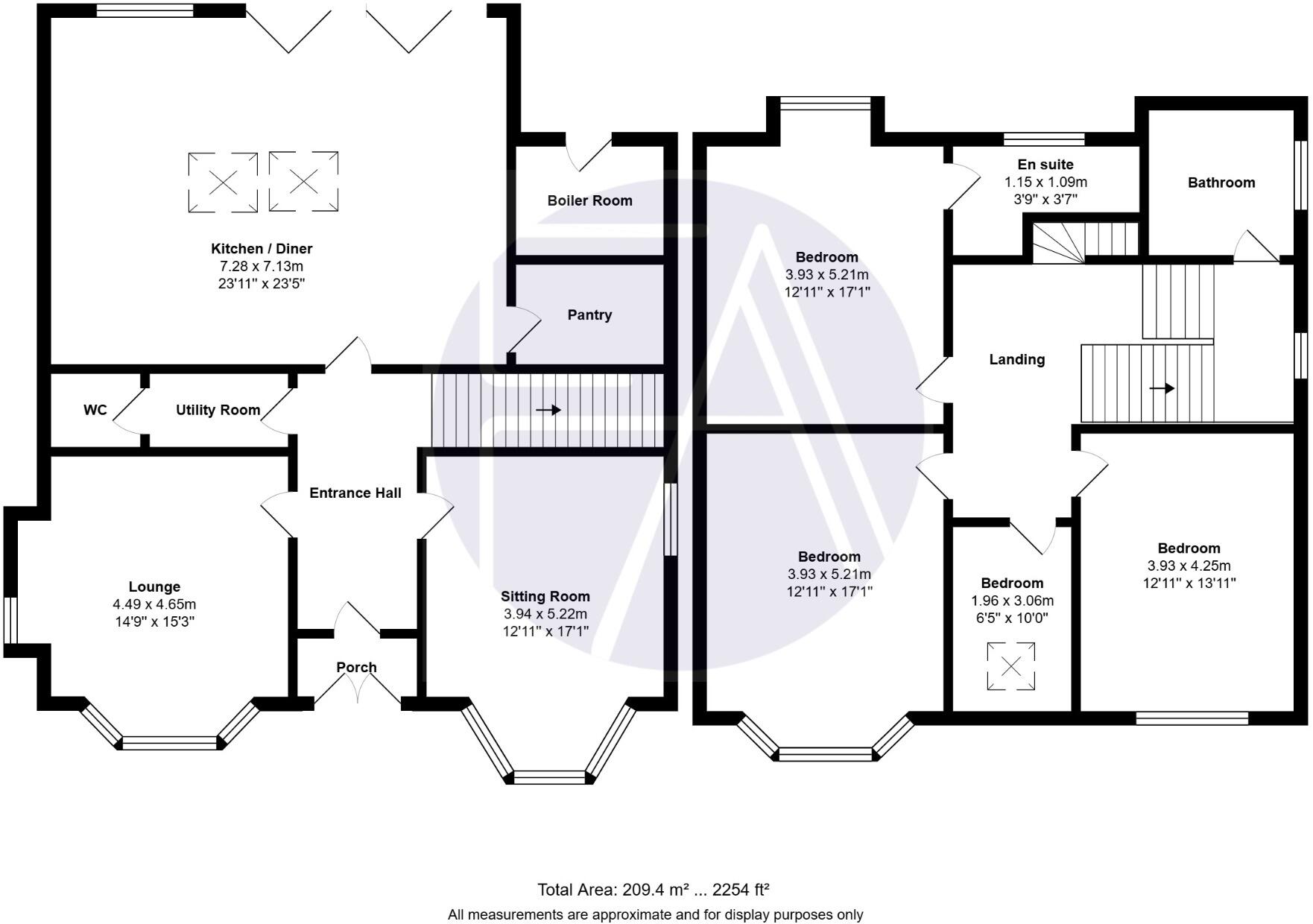
Discover this impressive 2254 sqft detached house on Rutland Road, Southport, offering spacious living, a sun-catching garden, and driveway parking. Nestled on the highly sought-after Rutland Road in Southport, this magnificent four-bedroom detached house presents an exceptional opportunity for dis
Property Oracle says ..
Therefore, we give this property 8 / 10. *Disclaimer: This is our option and does constitute a recommendation or financial advice. Do your own research. *
- Price
- 9
- Condition
- 8
- Location
- 8
- Land
- 7
- Bedrooms
- 4
- Bathrooms
- 1
- Sqft (est)
- 2,253.96
The heatmap indicates the level of crime in the area. The color of the heatmap indicates the crime severity and recency.
Metrics Year-on-Year
- Average area value
- 566,147.00 £Decreased by 10.07 %
- Est sale value
- 1,075,138.92 £Decreased by 13.11 %
- Average area rental value
- 3,400.00 £/moIncreased by 28.11 %
- Est letting value
- 4,507.92 £/moUnchanged by 0.00 %
- Est rental Yield
- 7.21 %Increased by 42.49 %
- Crime Rate
- 3.00 %Unchanged by 0.00 %
from 629,523.00 £
from 1,237,424.04 £
from 2,654.00 £/mo
from 4,507.92 £/mo
from 5.06 %
from 3.00 %
Agent Activity
Flexi-Agent created the listing.
Nearby Schools
| Name | Type | Ofsted | Distance |
|---|---|---|---|
| St Philip'S Church Of England Primary School | Voluntary Aided School | Good | 0.64 KM |
| Arden College | Special Post 16 Institution | Good | 1.35 KM |
| Linaker Children'S Centre | Children's Centre | 1.38 KM | |
| Parenting 2000 Children'S Centre | Children's Centre Linked Site | 1.45 KM | |
| Linaker Primary School | Community School | Requires improvement | 1.53 KM |
Images
Nearby Streets
| Name | Average Price | Average Sqft | Distance |
|---|---|---|---|
| Pilkington Road | £ 280,000 | 0 | 0.00 KM |
| Tithebarn Road | £ 120,000 | 0 | 0.00 KM |
| Princes Gardens | £ 60,000 | 0 | 0.00 KM |
| Hall Street | £ 0 | 0 | 0.00 KM |
| Sussex Road | £ 0 | 0 | 0.00 KM |
Nearby Transport
| Name | NLC | TLC | Distance |
|---|---|---|---|
| Meols Cop | 2357 | MEC | 1.76 KM |
| Southport | 2262 | SOP | 1.80 KM |
| Birkdale | 2352 | BDL | 2.84 KM |
| Hillside | 2231 | HIL | 4.30 KM |
| Ainsdale | 2350 | ANS | 7.12 KM |
Nearby Listings
| Address | Price | Type | Score | Distance |
|---|---|---|---|---|
| Rutland Road, Southport, Merseyside, PR8 6PB | £ 595,000 | BUY | 6 / 10 | 0.00 KM |
| Rutland Road, Southport, Merseyside, PR8 6PB | £ 595,000 | BUY | 8 / 10 | 0.00 KM |
| Scarisbrick New Road, Southport | £ 70,000 | BUY | Unknown | 0.12 KM |
| Scarisbrick New Road, Southport, Merseyside, PR8 | £ 70,000 | BUY | 6 / 10 | 0.12 KM |
| Falkland Road, Southport, PR8 | £ 300,000 | BUY | 6 / 10 | 0.17 KM |
Nearby Properties
| Address | Price | Distance |
|---|---|---|
| 21 Rutland Road | £ 137,000 | 0.04 KM |
| 22 Rutland Road | £ 250,000 | 0.04 KM |
| 13 Rutland Road | £ 395,000 | 0.04 KM |
| 18 Rutland Road | £ 385,000 | 0.04 KM |
| 1 Rutland Road | £ 131,000 | 0.04 KM |