Fernbank Road, Ascot, Berkshire, SL5
By Berkshires
£ 450,000
Reviews
2 out of 5 stars
Berkshires says ..
A semi detached family home with parking for several vehicles with potential subject to planning. The property is located in this sought after area a short drive from local amenities and is within the catchment for the popular local schools and offered with no chain. SOLE AGENTS.
Property Oracle says ..
Ascot is a desirable location in Berkshire, known for its proximity to Windsor Great Park and Ascot Racecourse. The area benefits from good transport links via the South Western Railway line, with Ascot station being approximately 2.31 KM from the property. Several highly-rated schools are within a reasonable distance, including Ascot Heath Primary School (Outstanding Ofsted rating) located just 0.18 KM away. This positive aspect contributes to the desirability of the area for families. The property itself appears to be in need of significant modernisation and updating. The images reveal dated interiors, including carpets, kitchen units, and bathroom fixtures. The garden, while present, also requires considerable attention. The overall condition suggests a need for renovation, impacting its immediate livability. The property includes a garden, though it is currently overgrown and in need of landscaping. The presence of a garden is a positive feature, particularly in this area. Considering the list price of £450,000, the average price in the area (£885,538) and average price per sqft (£560), this property’s price seems relatively low. However, this is significantly influenced by the property’s condition. The need for extensive renovation work must be factored into any assessment of value. The lack of comparable properties with similar sqft and condition makes a precise price comparison difficult. The lower price could be justified by the required renovations, but it also presents an opportunity for a buyer willing to undertake the work.
Therefore, we give this property 5 / 10. *Disclaimer: This is our option and does constitute a recommendation or financial advice. Do your own research. *
- Price
- 6
- Condition
- 4
- Location
- 8
- Land
- 5
- Bedrooms
- 3
- Bathrooms
- 0
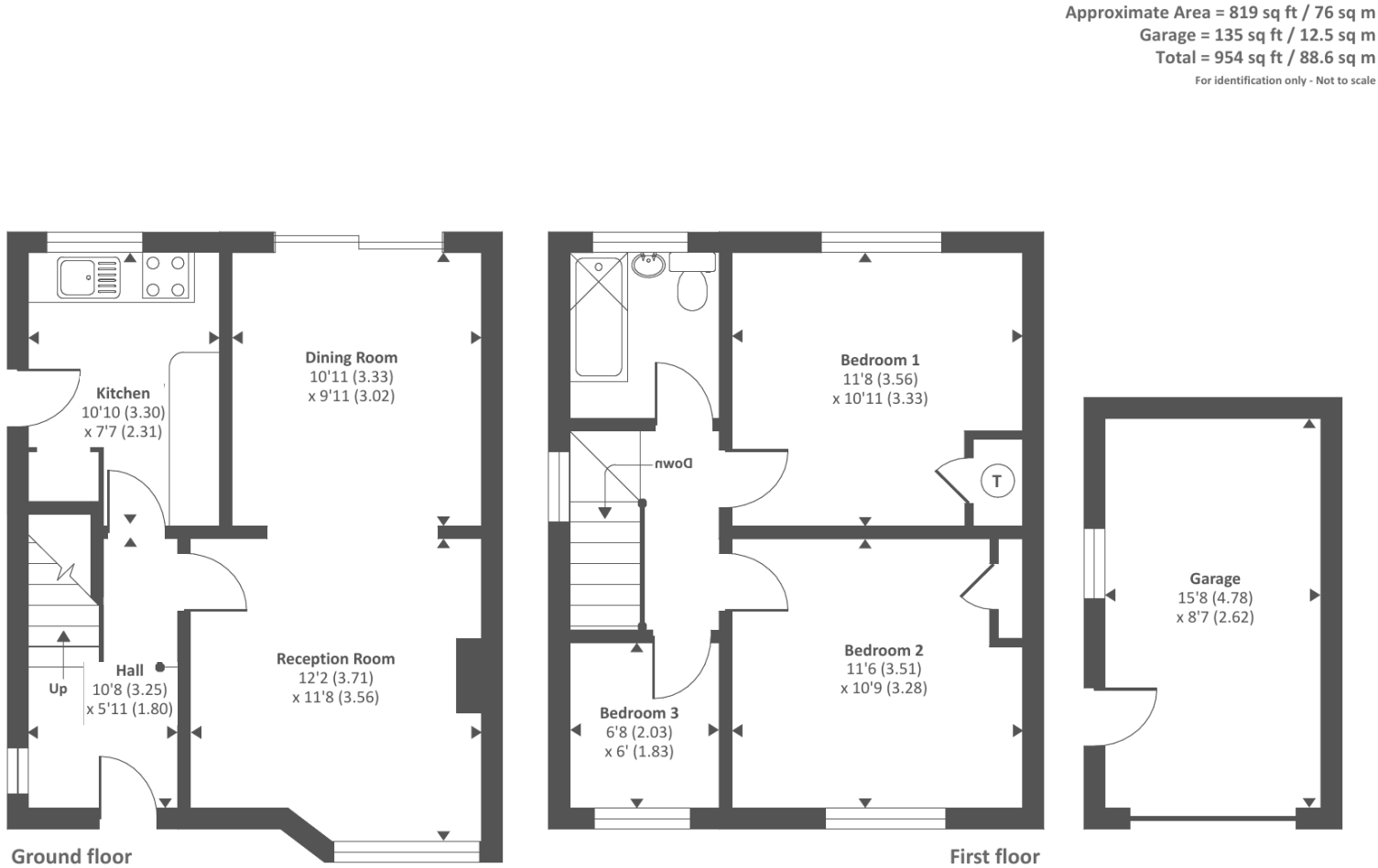
- Sqft (est)
- 954.00
The heatmap indicates the level of crime in the area. The color of the heatmap indicates the crime severity and recency.
Metrics Year-on-Year
- Average area value
- 458,571.00 £Decreased by 30.67 %
- Est sale value
- 499,896.00 £Increased by 3.15 %
- Average area rental value
- 2,700.00 £/moDecreased by 57.58 %
- Est letting value
- 2,862.00 £/moDecreased by 25.00 %
- Est rental Yield
- 7.07 %Decreased by 38.79 %
- Crime Rate
- 21.00 %Unchanged by 0.00 %
Agent Activity
Berkshires created the listing.
Nearby Schools
| Name | Type | Ofsted | Distance |
|---|---|---|---|
| Ascot Heath Primary School | Community School | Outstanding | 0.18 KM |
| Papplewick School | Other Independent School | 1.22 KM | |
| Lvs Ascot | Other Independent School | 1.84 KM | |
| Cranbourne Primary School | Community School | Outstanding | 2.11 KM |
| Winkfield St Mary'S Cofe Primary School | Voluntary Controlled School | Good | 2.39 KM |
Images
Nearby Streets
| Name | Average Price | Average Sqft | Distance |
|---|---|---|---|
| Woodend Close | £ 0 | 0 | 0.00 KM |
| Nursery Lane | £ 675,000 | 0 | 0.00 KM |
| Jones Corner | £ 0 | 0 | 0.00 KM |
| King's Ride | £ 717,500 | 0 | 0.00 KM |
| Forest Road | £ 0 | 0 | 0.00 KM |
Nearby Transport
| Name | NLC | TLC | Distance |
|---|---|---|---|
| Ascot (Berks) | 5666 | ACT | 2.31 KM |
| Martins Heron | 5692 | MAO | 4.17 KM |
| Bagshot | 5681 | BAG | 6.40 KM |
| Bracknell | 5693 | BCE | 6.94 KM |
| Sunningdale | 5671 | SNG | 7.08 KM |
Nearby Listings
| Address | Price | Type | Score | Distance |
|---|---|---|---|---|
| Fernbank Road, Ascot, Berkshire, SL5 | £ 450,000 | BUY | 5 / 10 | 0.00 KM |
| Fernbank Road, Ascot, Berkshire, SL5 | £ 260,000 | BUY | Unknown | 0.03 KM |
| King Edwards Rise, Ascot | £ 500,000 | BUY | 7 / 10 | 0.09 KM |
| Wood End Close, Ascot, Ascot | £ 625,000 | BUY | 7 / 10 | 0.14 KM |
| Fernbank Road, Ascot | £ 650,000 | BUY | 7 / 10 | 0.16 KM |
Nearby Properties
| Address | Price | Distance |
|---|---|---|
| 3 King Edwards Close | £ 185,000 | 0.09 KM |
| 3 Wood End Close | £ 555,000 | 0.12 KM |
| 5 Wood End Close | £ 590,000 | 0.12 KM |
| 4 Wood End Close | £ 285,000 | 0.12 KM |
| 186 Fernbank Road | £ 532,000 | 0.14 KM |