20 Park Street, Bridgend, CF31 4AX
By Herbert R Thomas
£ 285,000
Reviews
2 out of 5 stars
Herbert R Thomas says ..
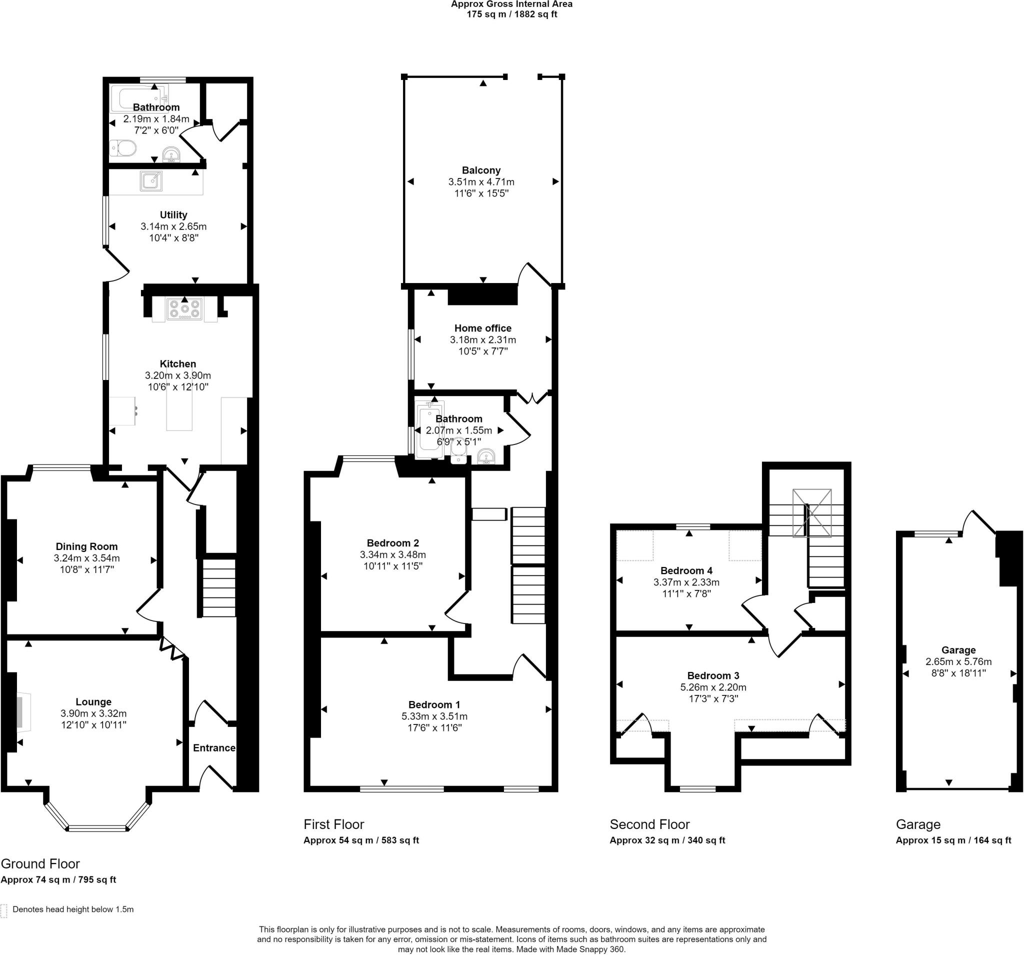
This well presented four bedroom townhouse benefitting from two reception rooms, kitchen/breakfast room, utility room, four bedrooms, garage, off-road parking and situated within close proximity to Bridgend Town Centre, local shops, schools and transport links. The property is entered via a PVCu...
Property Oracle says ..
This four-bedroom terraced house in Bridgend offers a blend of modern updates and period features. The kitchen and kitchen/breakfast room have clearly been recently modernised, presenting a contemporary and functional space. The property’s interior shows evidence of tasteful decoration and maintenance. The inclusion of a garage or outbuilding is an additional benefit. However, the available images only offer a limited perspective of the outside space; more information about the garden would be beneficial. The overall condition is good but there are areas such as one bathroom that could benefit from modernisation. The property’s location is convenient, being close to Bridgend town centre, the train station and various schools. However, it’s crucial to evaluate the listed price relative to comparable properties within the vicinity before concluding on its overall value. Considering similar properties in the area, this property’s price point appears above average given its size and the relative lack of exterior space. Further details regarding the property’s plot size and the extent of any recent renovations would be useful in conducting a more thorough assessment of the price relative to its overall value. A potential buyer should investigate the price per square foot in comparison to similar recently sold properties in the immediate area to make an informed purchase decision.
Therefore, we give this property 5 / 10. *Disclaimer: This is our option and does constitute a recommendation or financial advice. Do your own research. *
- Price
- 6
- Condition
- 7
- Location
- 7
- Land
- 3
- Bedrooms
- 4
- Bathrooms
- 2
- Sqft (est)
- 1,883.68
The heatmap indicates the level of crime in the area. The color of the heatmap indicates the crime severity and recency.
Metrics Year-on-Year
- Average area value
- 248,072.00 £Decreased by 9.58 %
- Est sale value
- 470,920.00 £Increased by 9.65 %
- Average area rental value
- 998.00 £/moIncreased by 13.41 %
- Est letting value
- 1,883.68 £/mo
- Est rental Yield
- 4.83 %Increased by 25.45 %
- Crime Rate
- 8.00 %Unchanged by 0.00 %
Agent Activity
Herbert R Thomas created the listing.
Nearby Schools
| Name | Type | Ofsted | Distance |
|---|---|---|---|
| St Mary'S Catholic Primary School | Welsh Establishment | 0.48 KM | |
| Ysgol Bryn Castell | Welsh Establishment | 0.90 KM | |
| Penybont Primary School | Welsh Establishment | 1.00 KM | |
| Brynteg Comprehensive School | Welsh Establishment | 1.12 KM | |
| Heronsbridge School | Welsh Establishment | 1.23 KM |
Images
Nearby Streets
| Name | Average Price | Average Sqft | Distance |
|---|---|---|---|
| The Square | £ 124,950 | 0 | 0.00 KM |
| Walters Road | £ 585,000 | 0 | 0.00 KM |
| Langenau Strasse | £ 0 | 0 | 0.00 KM |
| Cefn Coed | £ 0 | 0 | 0.00 KM |
| Pen Y Berllan Orchard Heights | £ 230,000 | 0 | 0.00 KM |
Nearby Transport
| Name | NLC | TLC | Distance |
|---|---|---|---|
| Bridgend | 3809 | BGN | 0.83 KM |
| Wildmill | 3965 | WMI | 1.63 KM |
| Sarn | 4270 | SRR | 3.66 KM |
| Tondu | 4271 | TDU | 4.75 KM |
| Pencoed | 3851 | PCD | 9.32 KM |
Nearby Listings
| Address | Price | Type | Score | Distance |
|---|---|---|---|---|
| 20 Park Street, Bridgend, CF31 4AX | £ 285,000 | BUY | 5 / 10 | 0.00 KM |
| 69 Park Street, Bridgend, CF31 4AX | £ 699,999 | BUY | Unknown | 0.00 KM |
| Park Street,Bridgend,CF31 4AX | £ 700,000 | BUY | 8 / 10 | 0.00 KM |
| Park Street, Bridgend | £ 150,000 | BUY | 5 / 10 | 0.01 KM |
| Park Street, Bridgend, CF31 | £ 150,000 | BUY | 6 / 10 | 0.01 KM |
Nearby Properties
| Address | Price | Distance |
|---|---|---|
| 34 Park Street | £ 188,500 | 0.01 KM |
| 39 Park Street | £ 59,995 | 0.01 KM |
| 20 Park Street | £ 190,000 | 0.01 KM |
| 57a Park Street | £ 33,750 | 0.01 KM |
| 47 Park Street | £ 145,000 | 0.01 KM |