Pearson Street, Bury, BL9
By The Auction Group Limited
£ 160,000
Reviews
2 out of 5 stars
The Auction Group Limited says ..
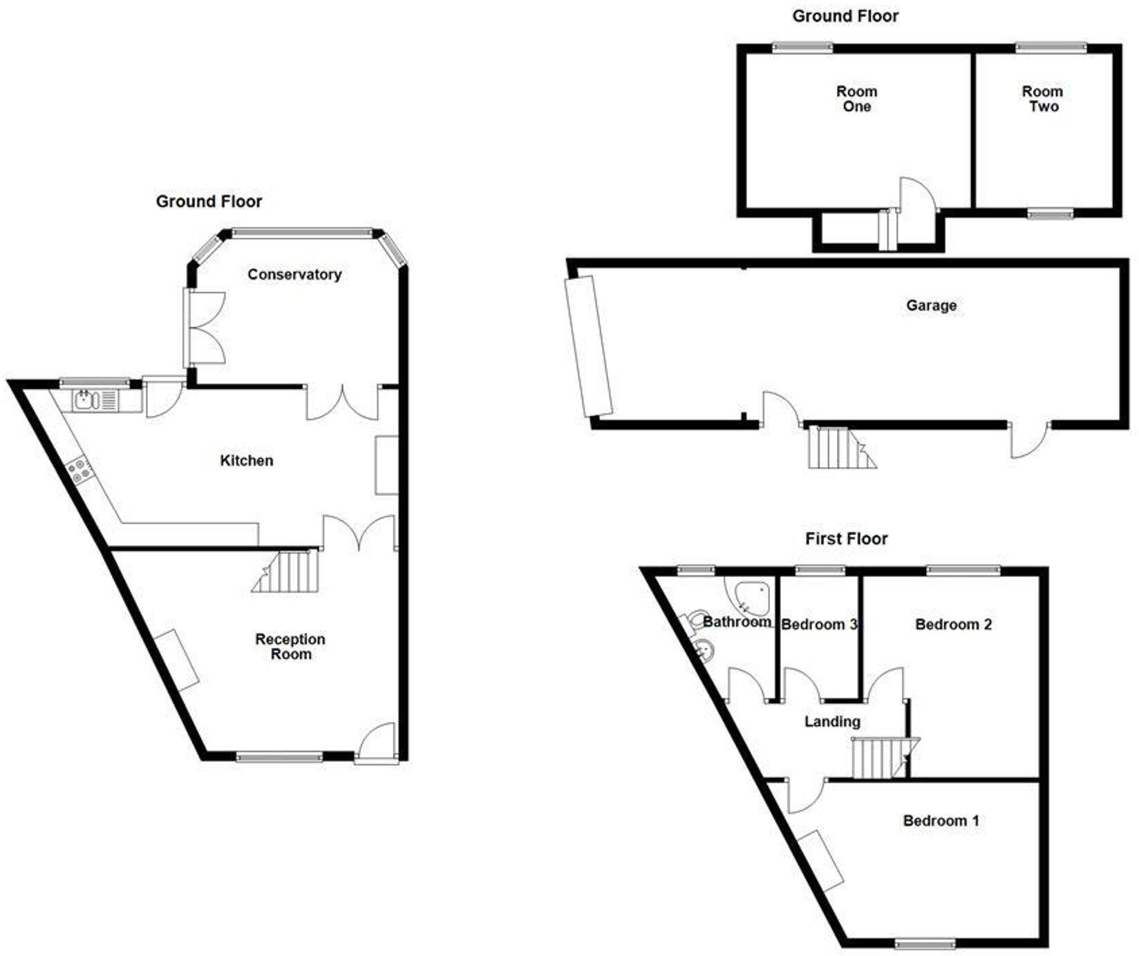
A SPACIOUS THREE BEDROOM END TERRACE WITH A DETACHED TWO STOREY GARAGE/WORKSHOPTo be sold via online auction - powered by The Auction GroupSituated on Pearson Street in the charming town of Bury, this deceptively spacious end-terraced house presents an excellent opportunity for those seeking a ho...
Property Oracle says ..
This end-of-terrace property in Bury presents a mixed bag of features. Its large square footage offers ample living space, including three bedrooms and a conservatory. However, the property’s condition suggests it requires significant renovation, with dated interiors and visible wear and tear. The location is a residential area with proximity to schools, but the Ofsted ratings are mixed, and transportation links are not ideal. The rear yard provides some outdoor space, but it’s not particularly large. Considering these factors, the list price of £160,000 appears reasonable, potentially offering good value for those willing to invest in renovations.
Therefore, we give this property 5 / 10. *Disclaimer: This is our option and does constitute a recommendation or financial advice. Do your own research. *
- Price
- 7
- Condition
- 4
- Location
- 6
- Land
- 5
- Bedrooms
- 3
- Bathrooms
- 1
- Sqft (est)
- 1,610.00
The heatmap indicates the level of crime in the area. The color of the heatmap indicates the crime severity and recency.
Metrics Year-on-Year
- Average area value
- 248,661.00 £Decreased by 6.33 %
- Est sale value
- 513,590.00 £Increased by 19.48 %
- Average area rental value
- 943.00 £/moDecreased by 1.87 %
- Est letting value
- 1,610.00 £/mo
- Est rental Yield
- 4.55 %Increased by 4.84 %
- Crime Rate
- 0.00 %
Agent Activity
The Auction Group Limited created the listing.
Nearby Schools
| Name | Type | Ofsted | Distance |
|---|---|---|---|
| St Paul'S Church Of England Primary School, Bury | Voluntary Aided School | Requires improvement | 0.26 KM |
| Cambian Chesham House School | Other Independent Special School | Good | 0.46 KM |
| St Joseph And St Bede Rc Primary School | Voluntary Aided School | Good | 0.54 KM |
| Hoyle Nursery School | Local Authority Nursery School | Outstanding | 0.56 KM |
| East Ward Community Primary School | Academy Converter | 0.56 KM |
Images
Nearby Streets
| Name | Average Price | Average Sqft | Distance |
|---|---|---|---|
| Gladstone Street | £ 0 | 0 | 0.00 KM |
| Back Lucas Street | £ 0 | 0 | 0.00 KM |
| Hawk Close | £ 0 | 0 | 0.00 KM |
| Back Cedar Street | £ 0 | 0 | 0.00 KM |
| Rowan Drive | £ 175,000 | 0 | 0.00 KM |
Nearby Transport
| Name | NLC | TLC | Distance |
|---|---|---|---|
| Clifton (Manchester) | 2795 | CLI | 9.31 KM |
Nearby Listings
| Address | Price | Type | Score | Distance |
|---|---|---|---|---|
| Pearson Street, Bury, BL9 | £ 160,000 | BUY | 5 / 10 | 0.00 KM |
| Pearson Street, Bury | £ 210,000 | BUY | 6 / 10 | 0.01 KM |
| Pearson Street, Bury, BL9 | 2-Bedroom Terraced with Dining Room, Spacious Bathroom & Convenient Location | £ 150,000 | BUY | 7 / 10 | 0.05 KM |
| Brighton Street, Bury | £ 170,000 | BUY | 7 / 10 | 0.05 KM |
| Bell Lane, Bury, Greater Manchester, BL9 6DG | £ 170,000 | BUY | 5 / 10 | 0.12 KM |
Nearby Properties
| Address | Price | Distance |
|---|---|---|
| 26 Pearson Street | £ 99,950 | 0.03 KM |
| 20 Pearson Street | £ 100,000 | 0.03 KM |
| 12 Pearson Street | £ 75,000 | 0.03 KM |
| 3 Pearson Street | £ 124,000 | 0.03 KM |
| 22 Pearson Street | £ 81,000 | 0.03 KM |