Acobas says ..
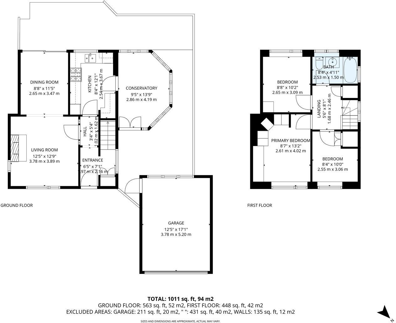
Nestled in the charming area of Conway Close, Knutsford, this semi-detached house presents a fantastic opportunity for those looking to create their ideal home. Built between 1967 and 1975, the property offers a generous 1,011 sq ft of living space, making it well-suited to families or individual...
Property Oracle says ..
This is a three-bedroom semi-detached house in Knutsford, Cheshire. The property offers 1,011 sqft of living space and includes a garden. While the house requires modernisation, it is located in a good area with access to schools and transportation. The price is competitive for the area, reflecting the condition of the property.
Therefore, we give this property 6 / 10. *Disclaimer: This is our option and does constitute a recommendation or financial advice. Do your own research. *
- Price
- 7
- Condition
- 5
- Location
- 7
- Land
- 7
- Bedrooms
- 3
- Bathrooms
- 1
- Sqft (est)
- 1,011.00
The heatmap indicates the level of crime in the area. The color of the heatmap indicates the crime severity and recency.
Metrics Year-on-Year
- Average area value
- 678,106.00 £Increased by 15.18 %
- Est sale value
- 592,446.00 £Increased by 35.96 %
- Average area rental value
- 1,651.00 £/moDecreased by 17.16 %
- Est letting value
- 1,011.00 £/moUnchanged by 0.00 %
- Est rental Yield
- 2.92 %Decreased by 28.08 %
- Crime Rate
- 5.00 %Unchanged by 0.00 %
Agent Activity
Acobas created the listing.
Nearby Schools
| Name | Type | Ofsted | Distance |
|---|---|---|---|
| Bexton Primary School | Academy Converter | 0.28 KM | |
| Yorston Lodge School | Other Independent School | 0.64 KM | |
| Egerton Primary School | Academy Converter | 0.80 KM | |
| Knutsford Academy | Academy Converter | Good | 0.82 KM |
| Cheshire Studio School | Studio Schools | Good | 0.82 KM |
Images
Nearby Streets
| Name | Average Price | Average Sqft | Distance |
|---|---|---|---|
| Gloucester Road | £ 0 | 0 | 0.00 KM |
| Malvern Road | £ 0 | 0 | 0.00 KM |
| Woodvale Road | £ 1,000,000 | 0 | 0.00 KM |
| Brook Lane | £ 0 | 0 | 0.00 KM |
| Hollow Lane | £ 235,000 | 0 | 0.00 KM |
Nearby Transport
| Name | NLC | TLC | Distance |
|---|---|---|---|
| Knutsford | 2848 | KNF | 0.78 KM |
| Plumley | 2308 | PLM | 5.40 KM |
| Mobberley | 2849 | MOB | 5.94 KM |
| Ashley | 2850 | ASY | 7.65 KM |
| Hale (Manchester) | 2845 | HAL | 9.72 KM |
Nearby Listings
| Address | Price | Type | Score | Distance |
|---|---|---|---|---|
| Conway Close, Knutsford | £ 425,000 | BUY | 6 / 10 | 0.00 KM |
| Ashworth Park, Knutsford | £ 599,950 | BUY | 7 / 10 | 0.07 KM |
| Ashworth Park, Knutsford | £ 950,000 | BUY | Unknown | 0.09 KM |
| Ashworth Park, Knutsford | £ 875,000 | BUY | Unknown | 0.09 KM |
| Ashworth Park, Knutsford | £ 630,000 | BUY | 6 / 10 | 0.12 KM |
Nearby Properties
| Address | Price | Distance |
|---|---|---|
| 5 Conway Close | £ 375,000 | 0.03 KM |
| 7 Conway Close | £ 225,000 | 0.03 KM |
| 16 Conway Close | £ 470,000 | 0.03 KM |
| 13 Conway Close | £ 78,000 | 0.03 KM |
| 10 Conway Close | £ 260,000 | 0.03 KM |