Rectory Close, Heswall, Wirral, CH60
By Bradshaw Farnham & Lea
£ 795,000
Reviews
3 out of 5 stars
Bradshaw Farnham & Lea says ..
Located in one of Lower Heswall’s most desirable areas, this beautifully presented detached bungalow is just minutes from the Wirral Way and the Dee Estuary, making it an ideal home for walkers and lovers of the outdoors
Property Oracle says ..
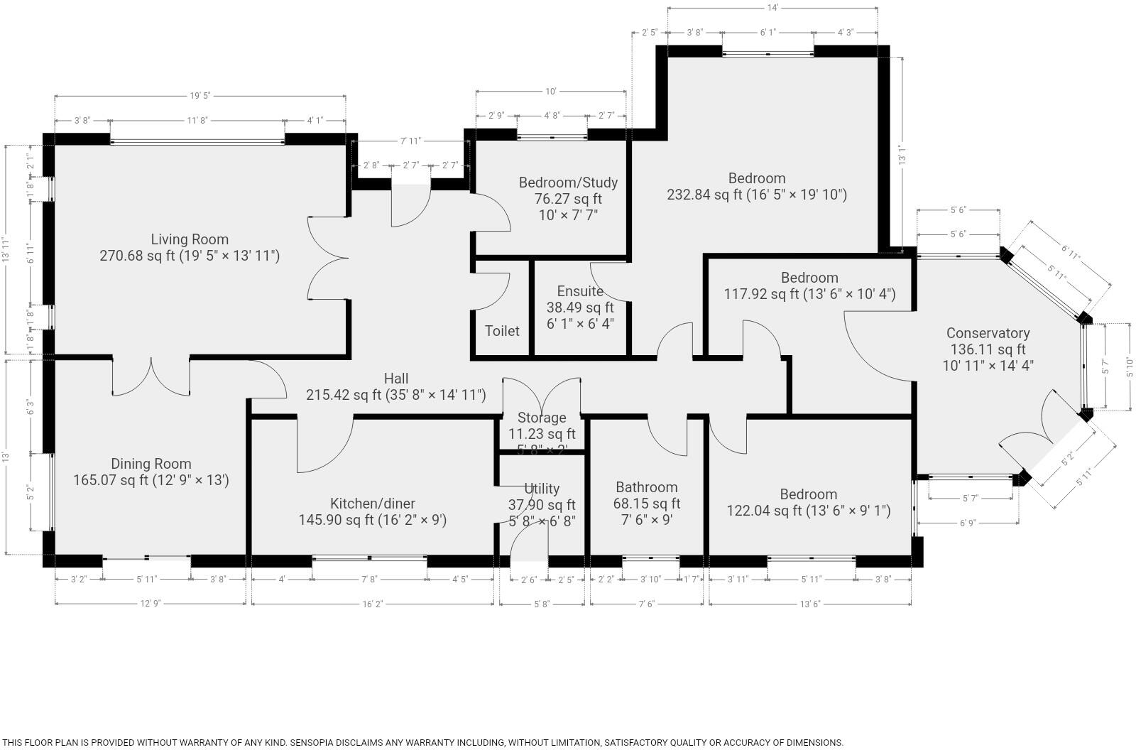
This is a well-presented four-bedroom bungalow in the desirable location of Heswall, Wirral. The property benefits from modern bathrooms, a well-maintained interior, and a good-sized garden with a patio. The location is convenient for local amenities and schools. While the asking price is higher than the average for the area, the property’s condition and features justify the premium. The property includes a study, utility room and garage.
Therefore, we give this property 7 / 10. *Disclaimer: This is our option and does constitute a recommendation or financial advice. Do your own research. *
- Price
- 6
- Condition
- 8
- Location
- 7
- Land
- 7
- Bedrooms
- 4
- Bathrooms
- 2
The heatmap indicates the level of crime in the area. The color of the heatmap indicates the crime severity and recency.
Metrics Year-on-Year
- Average area value
- 476,574.00 £Decreased by 12.58 %
- Average area rental value
- 1,200.00 £/moDecreased by 11.24 %
- Est rental Yield
- 3.02 %Increased by 1.34 %
- Crime Rate
- 3.00 %Unchanged by 0.00 %
Agent Activity
Bradshaw Farnham & Lea created the listing.
Nearby Schools
| Name | Type | Ofsted | Distance |
|---|---|---|---|
| Heswall St Peter'S Cofe Primary School | Voluntary Aided School | Good | 0.42 KM |
| Gayton Primary School | Community School | Good | 0.98 KM |
| Heswall Primary School | Community School | Good | 1.94 KM |
| Ladymount Catholic Primary School | Voluntary Aided School | Good | 2.17 KM |
| Pensby Primary School | Community School | Good | 2.30 KM |
Images
Nearby Streets
| Name | Average Price | Average Sqft | Distance |
|---|---|---|---|
| Rectory Close | £ 0 | 0 | 0.00 KM |
| Meadway | £ 600,000 | 0 | 0.00 KM |
| Brow Lane | £ 1,200,000 | 0 | 0.00 KM |
| Hessle Drive | £ 0 | 0 | 0.00 KM |
| Dawstone Court | £ 0 | 0 | 0.00 KM |
Nearby Transport
| Name | NLC | TLC | Distance |
|---|---|---|---|
| Heswall | 2138 | HSW | 3.50 KM |
| Neston | 2139 | NES | 5.67 KM |
| Upton (Merseyside) | 2141 | UPT | 7.51 KM |
| Flint | 2513 | FLN | 8.66 KM |
| Moreton (Merseyside) | 2151 | MRT | 9.52 KM |
Nearby Listings
| Address | Price | Type | Score | Distance |
|---|---|---|---|---|
| Rectory Close, Heswall, Wirral, CH60 | £ 795,000 | BUY | 7 / 10 | 0.00 KM |
| Rectory Lane, Lower Heswall, Wirral | £ 1,395,000 | BUY | 9 / 10 | 0.14 KM |
| Church Meadow Lane, Heswall, Wirral | £ 575,000 | BUY | 7 / 10 | 0.14 KM |
| Rectory Lane, Heswall, Wirral, CH60 | £ 950,000 | BUY | 7 / 10 | 0.14 KM |
| Rectory Lane, Heswall, Wirral | £ 1,295,000 | BUY | 8 / 10 | 0.14 KM |
Nearby Properties
| Address | Price | Distance |
|---|---|---|
| 1 Rectory Close | £ 575,000 | 0.01 KM |
| 2 Rectory Close | £ 650,000 | 0.01 KM |
| 6 Rectory Lane | £ 550,000 | 0.14 KM |
| 10 Rectory Lane | £ 785,000 | 0.14 KM |
| 30 Rectory Lane | £ 165,000 | 0.14 KM |