Marshalls Close, New Southgate, N11 1TG
By ML Estates
£ 480,000
Reviews
3 out of 5 stars
ML Estates says ..
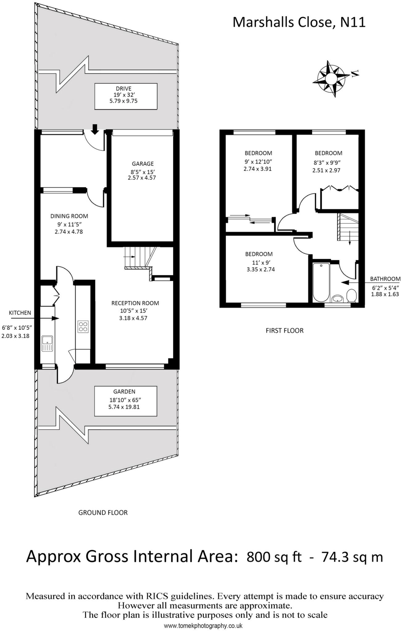
OPEN HOUSE FRIDAY 9 MAY 3-4PM BY APPOINTMENT. Being Sold via Secure Sale online bidding. Terms & Conditions apply. Starting Bid £480,000. For Sale by MODERN METHOD OF AUCTION. This spacious three-bedroom, two-reception room family home features a large open plan reception room wit...
Property Oracle says ..
This property is located in New Southgate, a suburb of London. The area benefits from good transport links, with New Southgate station providing access to the Great Northern line. Several primary schools with good Ofsted ratings are within a reasonable distance. The property itself is a three-bedroom house with a garden and a garage. While the property has had some modernisation, such as a new kitchen, the overall condition appears to be average. Some areas, like the staircase, show signs of needing attention. The list price is significantly below the average price for the area, making it potentially good value for money, considering the size of the property and the land.
Therefore, we give this property 7 / 10. *Disclaimer: This is our option and does constitute a recommendation or financial advice. Do your own research. *
- Price
- 8
- Condition
- 6
- Location
- 8
- Land
- 7
- Bedrooms
- 3
- Bathrooms
- 1
- Sqft (est)
- 2,783.87
- Lot (est)
- 799.76
The heatmap indicates the level of crime in the area. The color of the heatmap indicates the crime severity and recency.
Metrics Year-on-Year
- Average area value
- 875,000.00 £Increased by 18.07 %
- Est sale value
- 2,202,041.17 £Increased by 32.50 %
- Average area rental value
- 2,050.00 £/moDecreased by 21.70 %
- Est letting value
- 2,783.87 £/moDecreased by 50.00 %
- Est rental Yield
- 2.81 %Decreased by 33.73 %
- Crime Rate
- 0.00 %
Agent Activity
ML Estates created the listing.
Nearby Schools
| Name | Type | Ofsted | Distance |
|---|---|---|---|
| St Paul'S Cofe Primary School N11 | Voluntary Aided School | Good | 0.58 KM |
| Our Lady Of Lourdes Catholic Primary School | Voluntary Aided School | Good | 0.85 KM |
| Bowes And Garfield Children'S Centre | Children's Centre | 0.94 KM | |
| Garfield Primary School | Community School | Good | 0.99 KM |
| Focus 1St Academy | Other Independent School | Good | 1.03 KM |
Images
Nearby Streets
| Name | Average Price | Average Sqft | Distance |
|---|---|---|---|
| Cross Road | £ 0 | 0 | 0.00 KM |
| Beaconsfield Close | £ 0 | 0 | 0.00 KM |
| Regal Drive | £ 0 | 0 | 0.00 KM |
| Marlborough Avenue | £ 0 | 0 | 0.00 KM |
| Cecil Road | £ 275,000 | 0 | 0.00 KM |
Nearby Transport
| Name | NLC | TLC | Distance |
|---|---|---|---|
| New Southgate | 6019 | NSG | 0.76 KM |
| Bowes Park | 6027 | BOP | 2.81 KM |
| Oakleigh Park | 6020 | OKL | 3.28 KM |
| Palmers Green | 6021 | PAL | 3.49 KM |
| Alexandra Palace | 6025 | AAP | 3.50 KM |
Nearby Listings
| Address | Price | Type | Score | Distance |
|---|---|---|---|---|
| Marshalls Close, New Southgate, N11 1TG | £ 480,000 | BUY | 7 / 10 | 0.00 KM |
| Marshalls Close, London | £ 600,000 | BUY | 7 / 10 | 0.01 KM |
| Marshalls Close, London | £ 600,000 | BUY | 7 / 10 | 0.01 KM |
| Marshalls Close, Frien Barnet, ., London , N11 1TG | £ 450,000 | BUY | 7 / 10 | 0.09 KM |
| Marshalls Close, London | £ 325,000 | BUY | 6 / 10 | 0.10 KM |
Nearby Properties
| Address | Price | Distance |
|---|---|---|
| 93 Marshalls Close | £ 214,995 | 0.01 KM |
| 79 Marshalls Close | £ 400,000 | 0.01 KM |
| 95 Marshalls Close | £ 325,000 | 0.01 KM |
| 86 Marshalls Close | £ 250,000 | 0.01 KM |
| 97 Marshalls Close | £ 493,000 | 0.01 KM |