Brennan Ayre O'Neill says ..
An idyllic retirement FIRST FLOOR apartment enjoys a rural setting yet convenient for local shops and public transport with spacious accommodation and communal gardens with ample parking and the added benefit of being sold with NO CHAIN. This unit will require a scheme of updating.
Property Oracle says ..
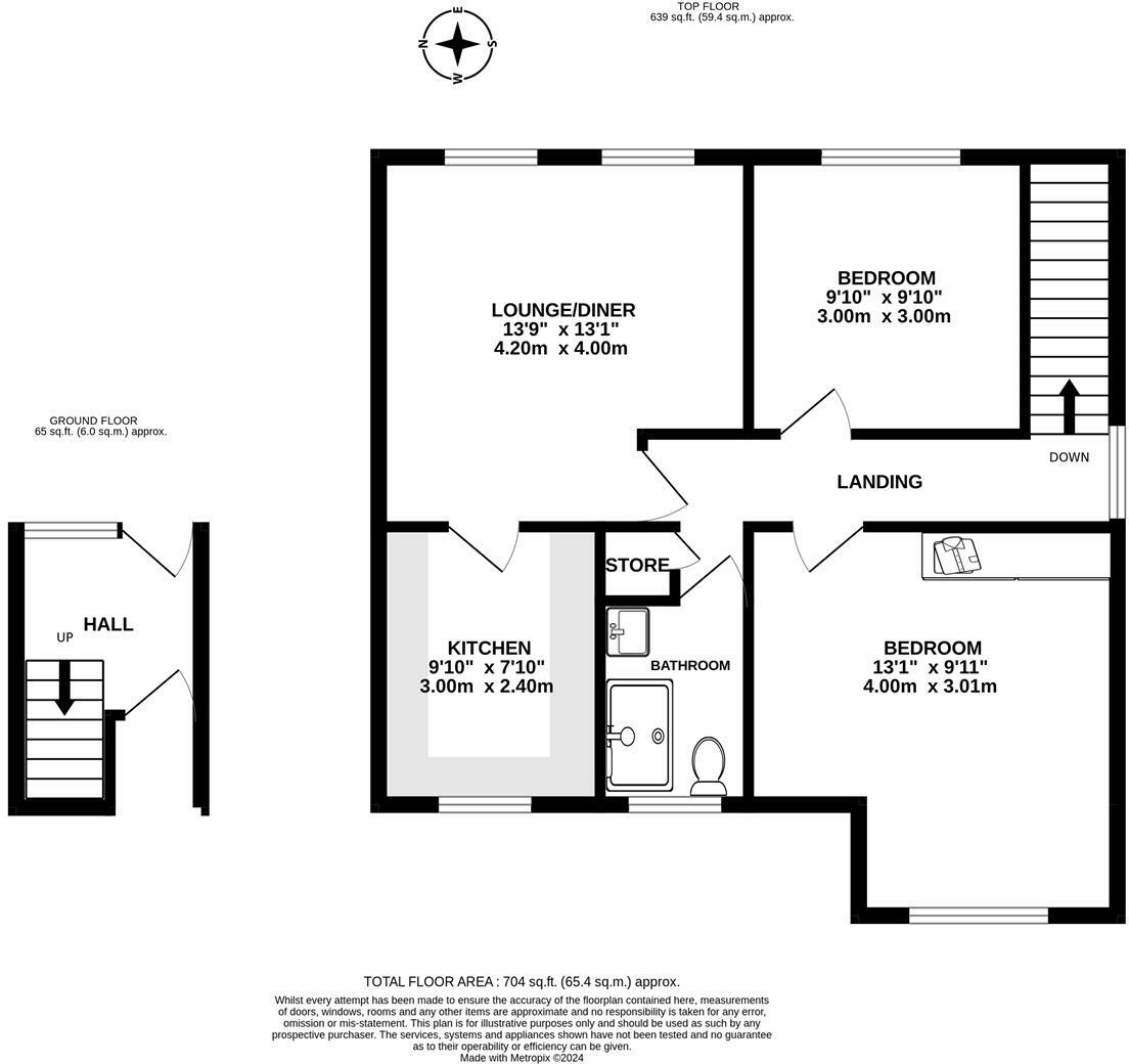
This 2-bedroom, 1-bathroom property located in Eastham Mews, Eastham, Wirral, is currently listed at £87,500. The property benefits from a convenient location with access to local transport, schools, and amenities. The external appearance of the property is good, with well-maintained brickwork and landscaping. However, the interior photos suggest the property may require some updating or refurbishment. The decor is dated, and modernizing the interior would likely increase its market value. The property also includes a relatively small, manageable garden offering open views of a field.
While the property may require some investment, the price appears reasonable for the location and compared to similar properties in the area. The proximity to public transport and schools makes this property a potentially attractive purchase for first-time buyers or those seeking a retirement property in a convenient location. The lack of precise plot size details prevents a comprehensive assessment of the land value. Additional information on the internal layout and condition of the property beyond what is visually apparent in the photos would improve the overall assessment.
Therefore, we give this property 5 / 10. *Disclaimer: This is our option and does constitute a recommendation or financial advice. Do your own research. *
- Price
- 7
- Condition
- 5
- Location
- 7
- Land
- 4
- Bedrooms
- 2
- Bathrooms
- 1
- Sqft (est)
- 703.96
The heatmap indicates the level of crime in the area. The color of the heatmap indicates the crime severity and recency.
Metrics Year-on-Year
- Average area value
- 264,090.00 £Increased by 9.78 %
- Est sale value
- 188,661.28 £Increased by 12.61 %
- Average area rental value
- 795.00 £/moDecreased by 30.93 %
- Est letting value
- 0.00 £/moDecreased by 100.00 %
- Est rental Yield
- 3.61 %Decreased by 37.11 %
- Crime Rate
- 4.00 %Unchanged by 0.00 %
Agent Activity
Brennan Ayre O'Neill marked this listing as sold.
Brennan Ayre O'Neill created the listing.
Nearby Schools
| Name | Type | Ofsted | Distance |
|---|---|---|---|
| Millfields Church Of England (Controlled) Primary School | Voluntary Controlled School | Good | 1.30 KM |
| Eastham Children'S Centre | Children's Centre | 1.30 KM | |
| Heygarth Primary School | Community School | Good | 1.58 KM |
| Childer Thornton Primary School | Academy Converter | 2.03 KM | |
| South Wirral High School | Foundation School | Requires improvement | 2.06 KM |
Images
Nearby Streets
| Name | Average Price | Average Sqft | Distance |
|---|---|---|---|
| Harrison Close | £ 279,375 | 0 | 0.00 KM |
| Stretton Close | £ 190,000 | 0 | 0.00 KM |
| New Chester Road | £ 0 | 0 | 0.00 KM |
| Clifton Avenue | £ 197,500 | 0 | 0.00 KM |
| Ashton Close | £ 190,000 | 0 | 0.00 KM |
Nearby Transport
| Name | NLC | TLC | Distance |
|---|---|---|---|
| Eastham Rake | 2128 | ERA | 2.36 KM |
| Hooton | 2193 | HOO | 2.42 KM |
| Bromborough | 2190 | BOM | 3.19 KM |
| Little Sutton | 2156 | LTT | 3.40 KM |
| Bromborough Rake | 2191 | BMR | 3.86 KM |
Nearby Listings
| Address | Price | Type | Score | Distance |
|---|---|---|---|---|
| Eastham Mews, Eastham Village | £ 99,950 | BUY | Unknown | 0.00 KM |
| Eastham Mews, Eastham | £ 89,950 | BUY | 6 / 10 | 0.00 KM |
| Eastham Mews, Eastham | £ 89,250 | BUY | 5 / 10 | 0.00 KM |
| Eastham Village Road, Eastham | £ 105,000 | BUY | 7 / 10 | 0.00 KM |
| Eastham Mews, Eastham | £ 87,500 | BUY | 5 / 10 | 0.00 KM |
Nearby Properties
| Address | Price | Distance |
|---|---|---|
| 133 Eastham Village Road | £ 225,000 | 0.11 KM |
| 111b Eastham Village Road | £ 155,000 | 0.11 KM |
| 118 Eastham Village Road | £ 507,000 | 0.14 KM |
| The Spinney | £ 390,000 | 0.14 KM |
| 134 Eastham Village Road | £ 176,500 | 0.14 KM |